GM Service Manual Online
For 1990-2009 cars only
Makes
🢒
Isuzu
🢒
2008
🢒
Ascender - 2WD
🢒
Power and Signal Distribution
🢒
Wiring Systems and Power Management
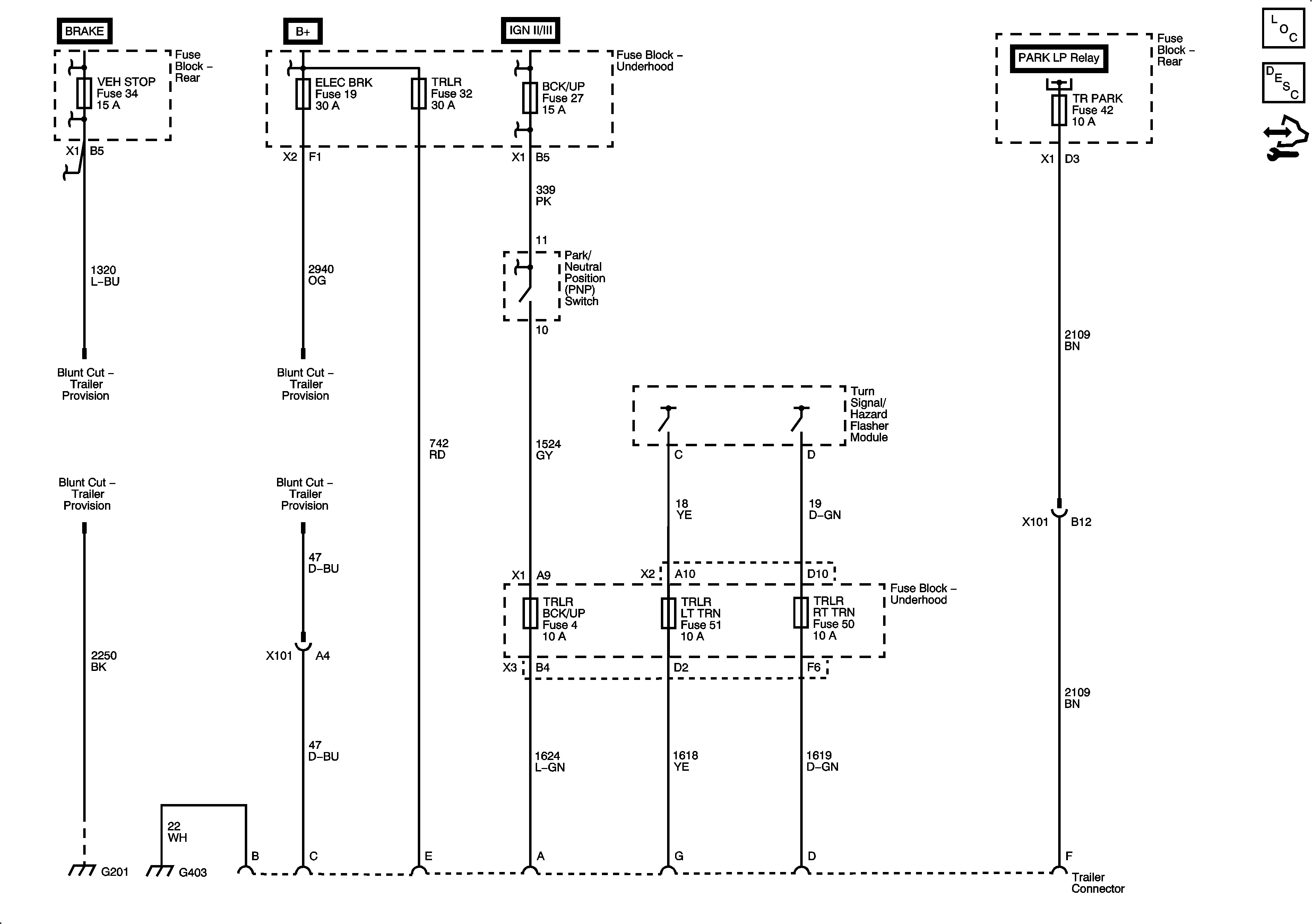
🢒 Trailer Connector/Provision Schematics
Trailer Wiring
Master Electrical Component List
Exterior Lighting Systems Description and Operation
Control Module References
Backup Lamps