GM Service Manual Online
For 1990-2009 cars only
Makes
🢒
Isuzu
🢒
2008
🢒
Ascender - 2WD
🢒
Safety and Security
🢒
Remote Functions
🢒 Remote Function Schematics
Figure
1:
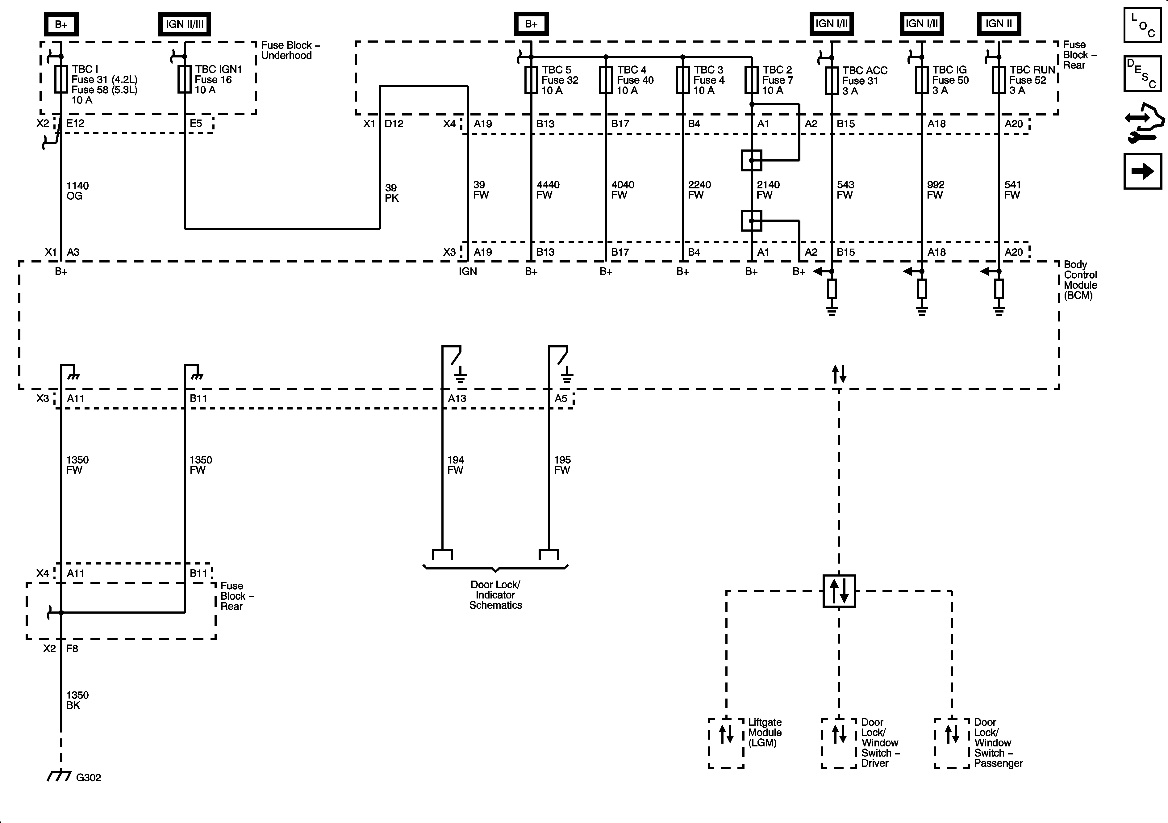
Keyless Entry
Master Electrical Component List
Keyless Entry System Description and Operation
Control Module References
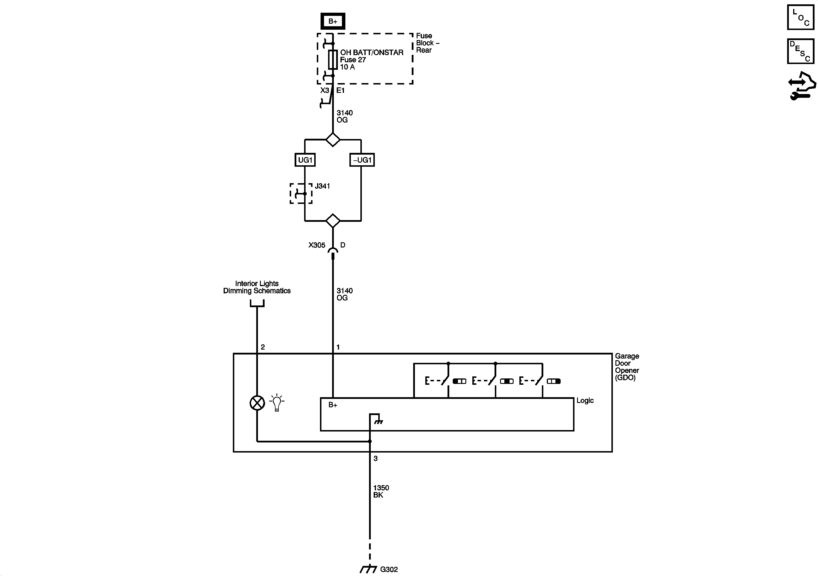
Garage Door Opener - UG1
Figure
2:
Garage Door Opener
Master Electrical Component List
Garage Door Opener Description and Operation
Control Module References
Keyless Entry