GM Service Manual Online
For 1990-2009 cars only
Makes
🢒
Isuzu
🢒
2003
🢒
Ascender - 4WD
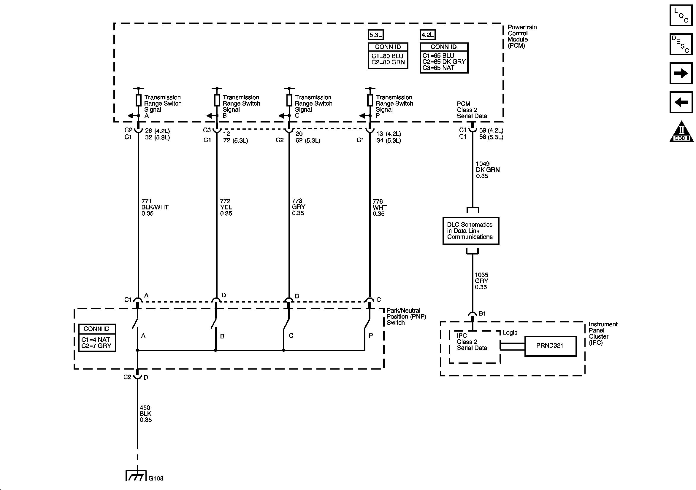
🢒 PNP Switch and Indicator
PNP Switch and Indicator
PNP Switch and Indicator
Master Electrical Component List
Transmission Component and System Description
Vehicle Speed Sensor
Automatic Transmission Controls
OBDII Symbol Description Notice
Data Link Connector
G108