GM Service Manual Online
For 1990-2009 cars only
Makes
🢒
Isuzu
🢒
1999
🢒
S/T Isuzu - 2WD
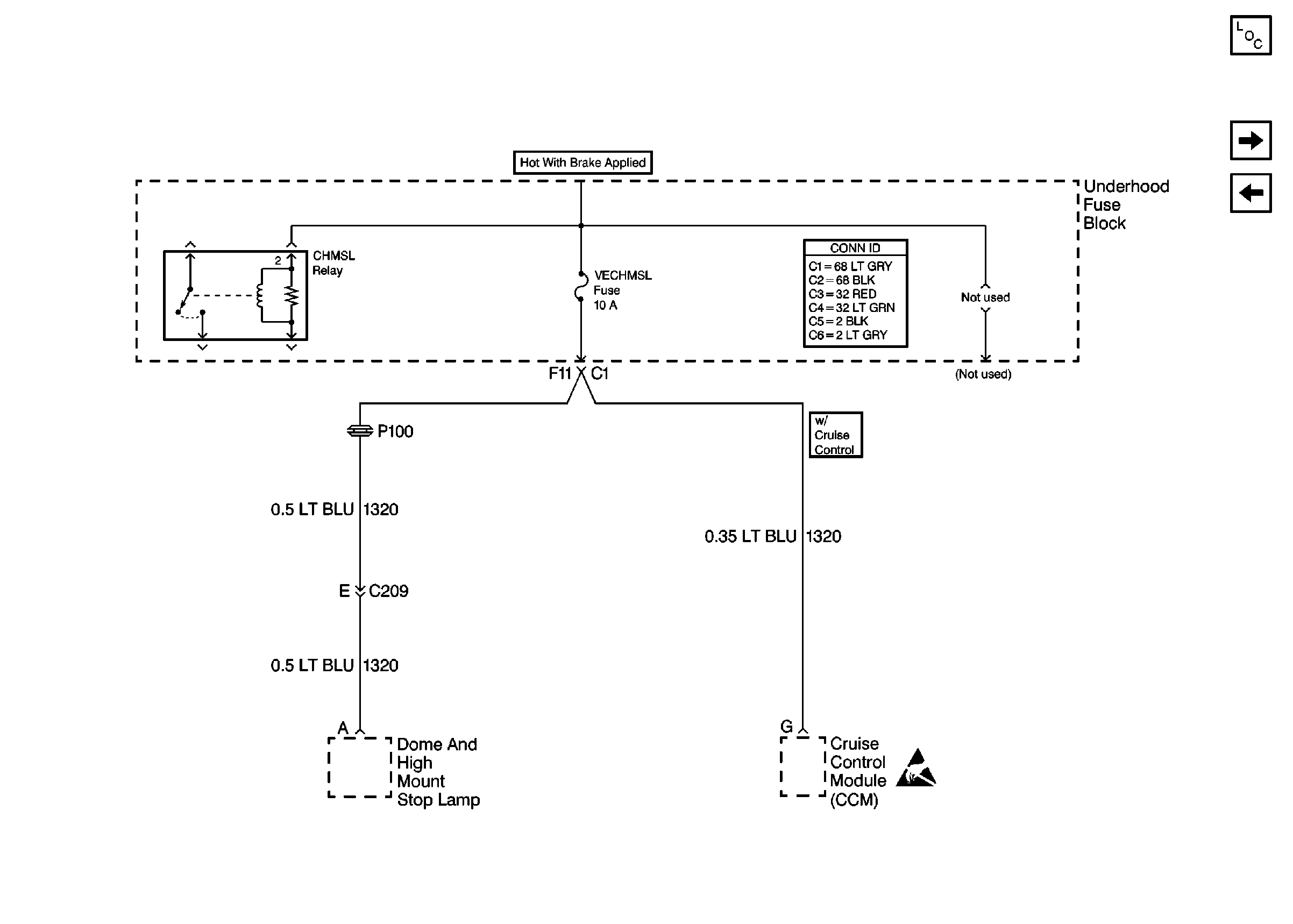
🢒 Cell 10: VECHMSL Fuse and CHMSL Relay
Cell 10: VECHMSL Fuse and CHMSL Relay
Cell 10: VECHMSL Fuse and CHMSL Relay
Power and Grounding Connector End Views
Power and Grounding Components
Cell 10: RT TURN and RT TRN Fuses
Cell 10: HVAC and CRUISE Fuses
Handling ESD Sensitive Parts Notice