GM Service Manual Online
For 1990-2009 cars only
Makes
🢒
Oldsmobile
🢒
1999
🢒
Aurora
🢒 Cell 117: VF Displays
Cell 117: VF Displays
Cell 117: VF Displays
Lighting Systems Components
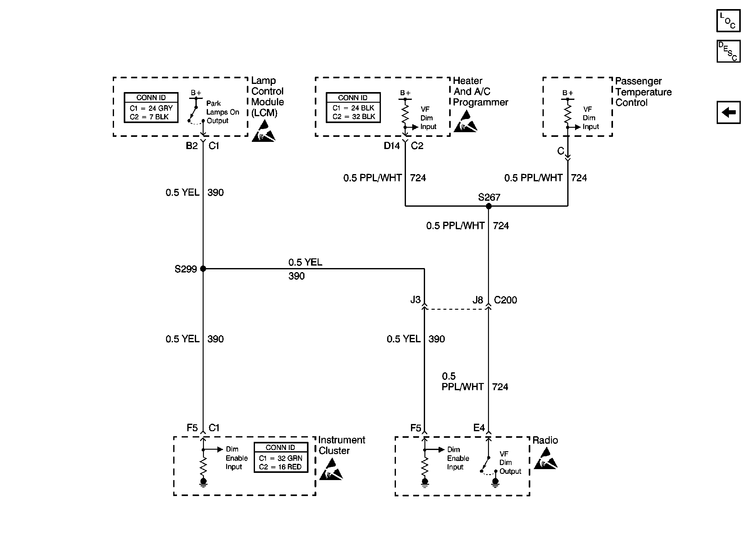
Interior Lights Dimming Circuit Description
Cell 117: Instrument Panel and Console Lamps
Handling ESD Sensitive Parts Notice
Handling ESD Sensitive Parts Notice
Handling ESD Sensitive Parts Notice
Handling ESD Sensitive Parts Notice
Lighting Systems Connector End Views
HVAC Connector End Views
Instrument Panel, Gages, and Console Connector End Views