GM Service Manual Online
For 1990-2009 cars only
Makes
🢒
Oldsmobile
🢒
2001
🢒
Aurora
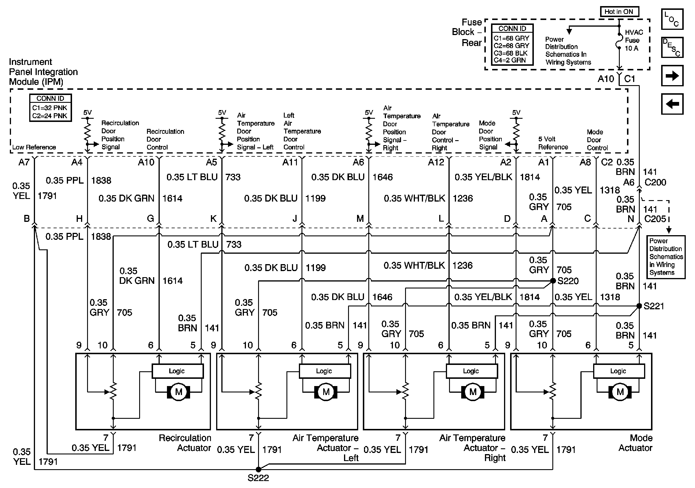
🢒 Air Delivery
Air Delivery
Air Delivery
Master Electrical Component List
Air Temperature Description and Operation
Air Temperature Sensors
Battery Feed to the Fuse Block-Rear
IGN 3 RR, ABS, HVAC Fuses (Fuse Block-Rear)
A/C Orifice Solenoid