GM Service Manual Online
For 1990-2009 cars only

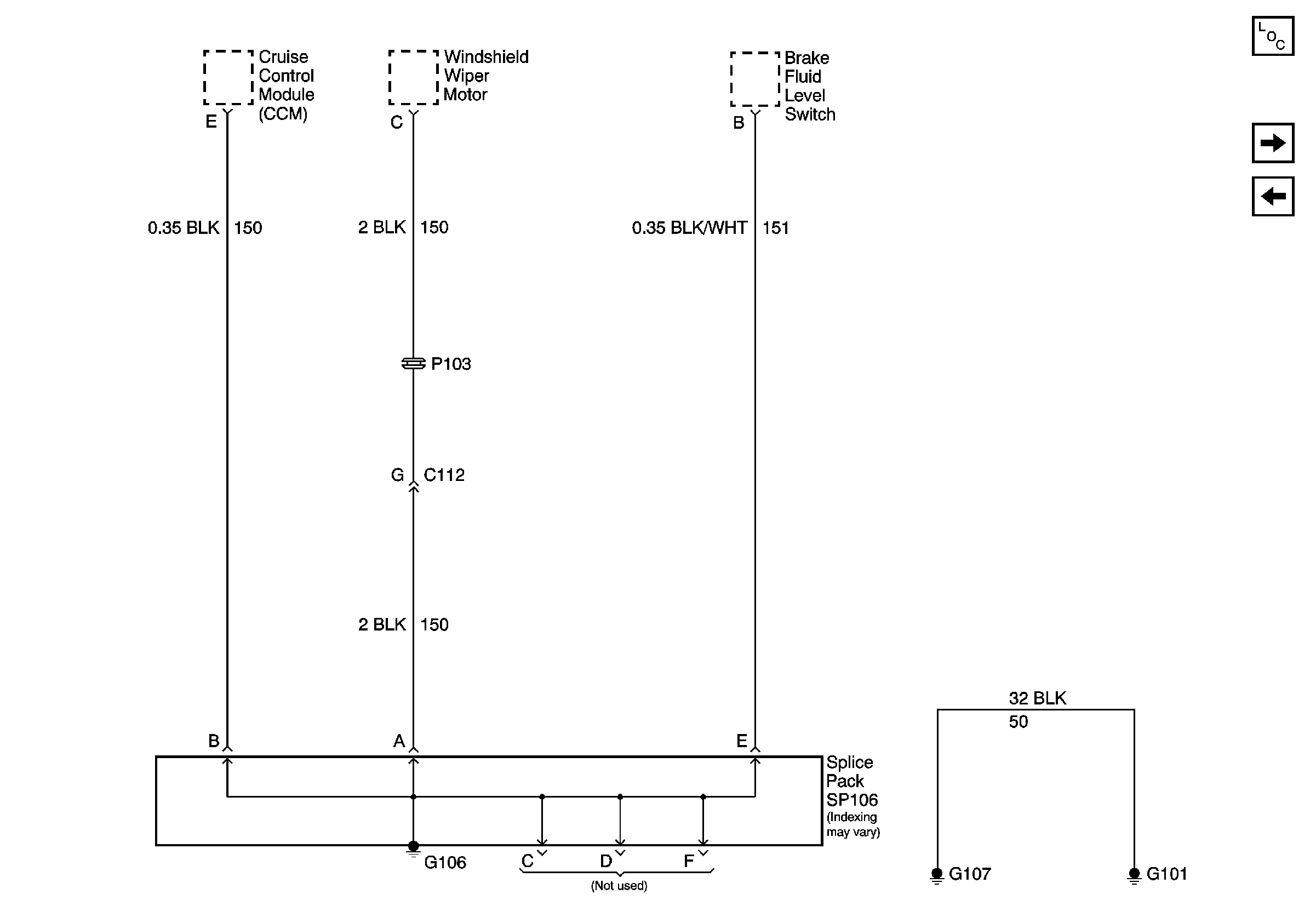
G106, G107 and G101

G106, G107 and G101


Object Number: 765373  Size: FS
Master Electrical Component List
G200
G104 and G105, L47