GM Service Manual Online
For 1990-2009 cars only

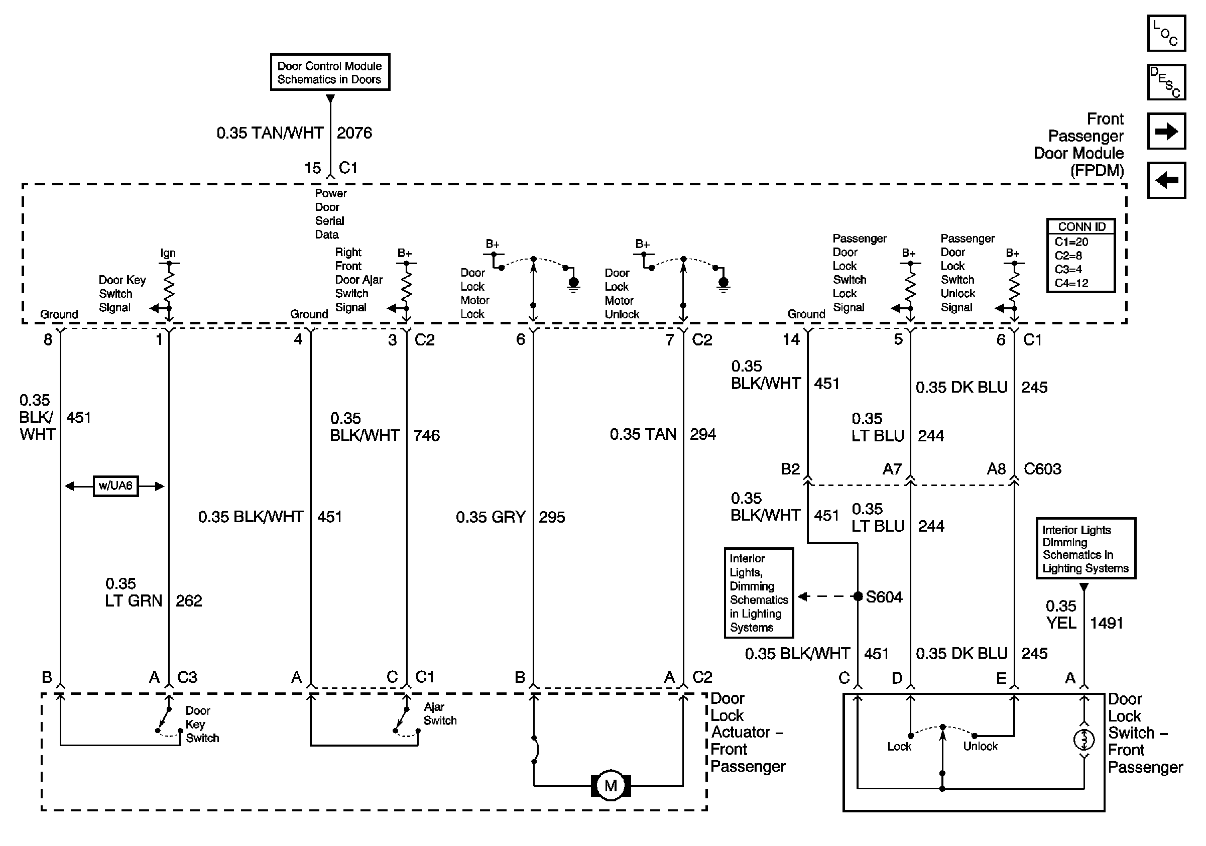
Passenger Door Lock Actuator and Door Lock Switch

Passenger Door Lock Actuator and Door Lock Switch


Object Number: 621092  Size: FS
Master Electrical Component List
Door Ajar Indicator Description and Operation
Rear Door Lock Actuator
Driver Door Lock Actuator and Driver Door Lock Switch
Power Door Serial Data
Front Door Dimming
Front Door Dimming