GM Service Manual Online
For 1990-2009 cars only
Makes
🢒
Oldsmobile
🢒
1998
🢒
Bravada
🢒
Body and Accessories
🢒
Garage Door Opener
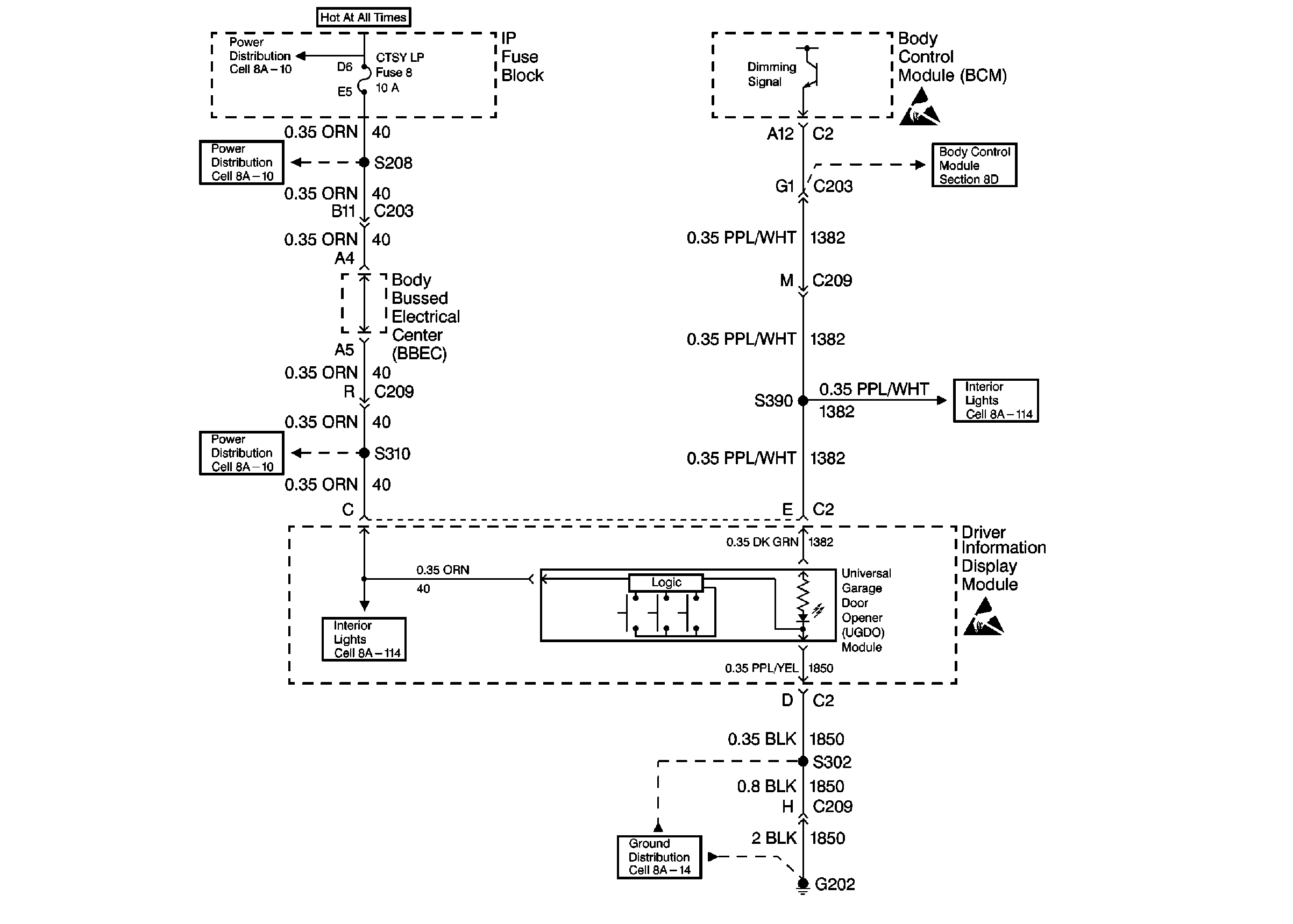
🢒 Garage Door Opener Schematics
Cell 136
OBD II Symbol Description Notice
OBD II Symbol Description Notice
Ground Distribution Schematics
Interior Lights Schematics
Power Distribution Schematics
Power Distribution Schematics
Power Distribution Schematics
Body Control System Schematics
Interior Lights Schematics