GM Service Manual Online
For 1990-2009 cars only
Figure 1:

Cell 147: Outside Rear View Mirrors


Object Number: 379193  Size: FS
Power Door Systems Components
Outside Mirrors Circuit Description
Cell 147: Outside Rear View Mirror Switch
Cell 10: HVAC I Fuse
Cell 10: HVAC I Fuse
Cell 10: IGN E Fuse and A/C Compressor, Rear Defogger, DRL Relays
Cell 10: IGN E Fuse and A/C Compressor, Rear Defogger, DRL Relays
Power and Grounding Connector End Views
Cell 61
HVAC Connector End Views
Cell 117: ILLUM Fuse 12
Cell 14: G203 and G204 (Utility w/ Manual A/C)
Cell 14: G202 (Utility)
Cell 14: G205 and G206 (Utility)
Cell 14: G205 and G206 (Utility)
Handling ESD Sensitive Parts Notice
Handling ESD Sensitive Parts Notice
Figure 2:

Cell 147: Outside Rear View Mirror Switch


Object Number: 379095  Size: FS
Cell 10: MIR/LKS, FOG LP Fuses and DRL, Headlamp Power Relays
Power and Grounding Connector End Views
Cell 10: MIR/LKS, FOG LP Fuses and DRL, Headlamp Power Relays
Cell 130: Door Lock Switch Inputs
Cell 130: Door Lock Switch Inputs
Cell 14: S501 (Utility)
Power Door Systems Components
Outside Mirrors Circuit Description
Cell 147: Outside Rear View Mirrors
Cell 114: Inside Rear View Mirror or Driver Information Display Module
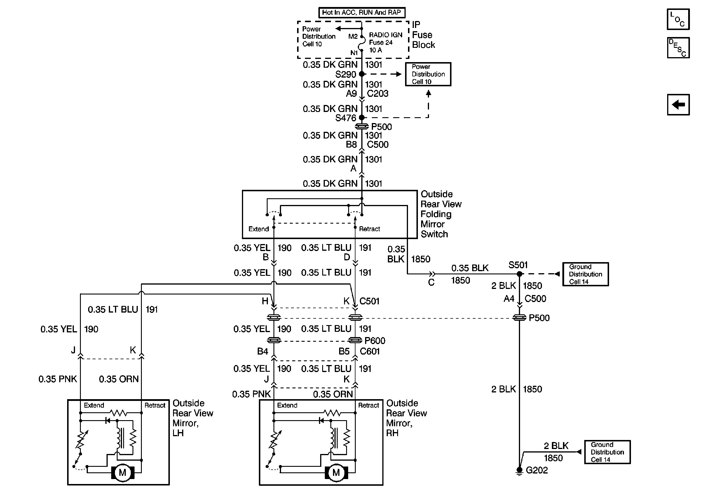
Figure 3:

Cell 147: Power Folding Mirrors


Object Number: 392424  Size: FS
Power Door Systems Components
Outside Mirrors Circuit Description
Cell 147: Outside Rear View Mirror Switch
Cell 10: RDO IGN and STR WHL RDO IGN Fuses
Cell 10: RDO IGN and STR WHL RDO IGN Fuses
Cell 14: S501 (Utility)
Cell 14: G202 (Utility)