GM Service Manual Online
For 1990-2009 cars only
Makes
🢒
Pontiac
🢒
2003
🢒
Aztek - FWD
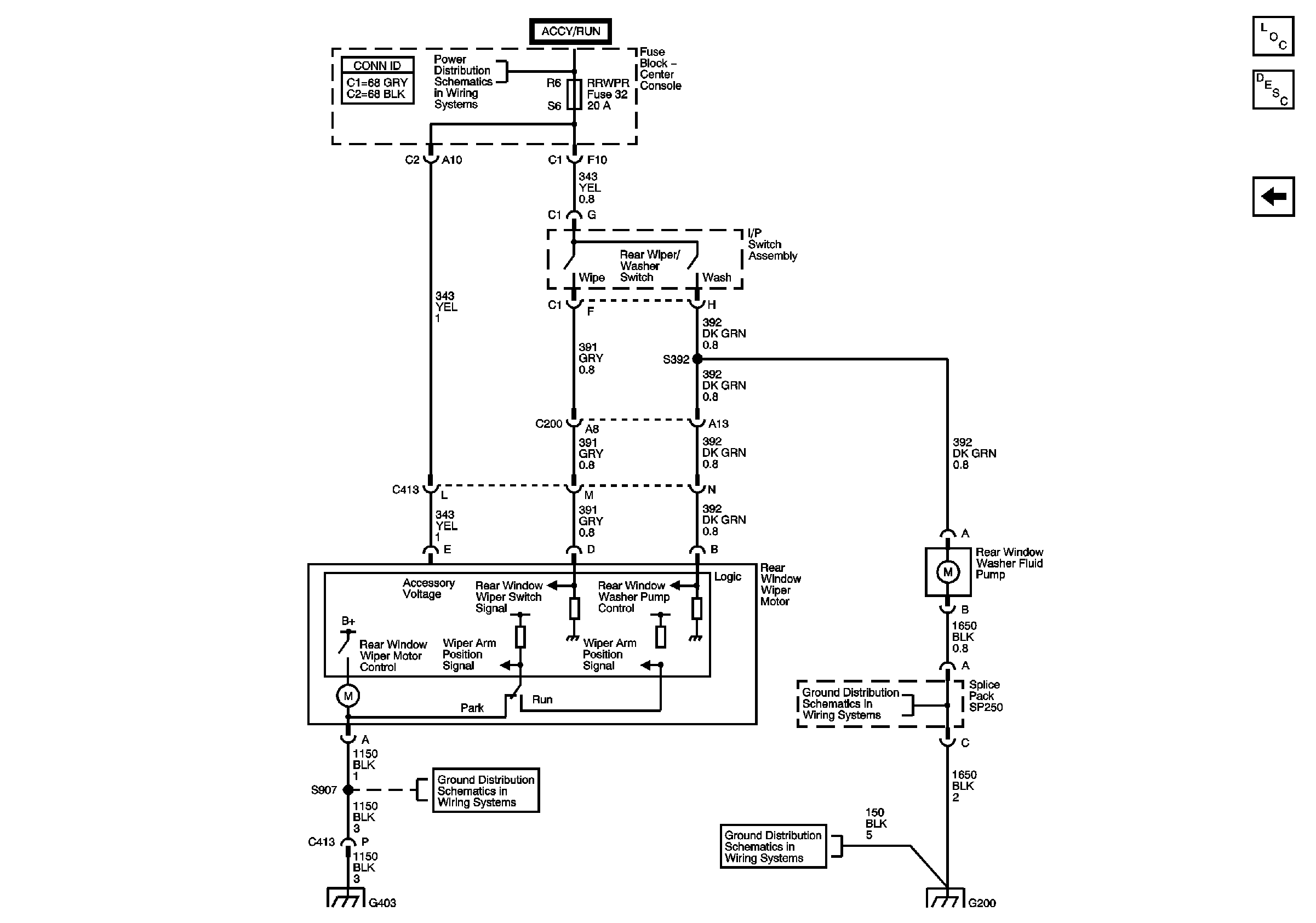
🢒 Rear Wiper/Washer
Rear Wiper/Washer
Rear Wiper/Washer
Master Electrical Component List
Windshield Wiper/Washer
Fuse Block Underhood Fuse: 41 Fuse Block Center Console
Ground G401, 402 and 403-Buick
Ground G200 - Buick