GM Service Manual Online
For 1990-2009 cars only

Object Number: 213283  Size: MF
ABS Components
ABS/TCS Schematics
Handling ESD Sensitive Parts Notice
Power Distribution Schematics

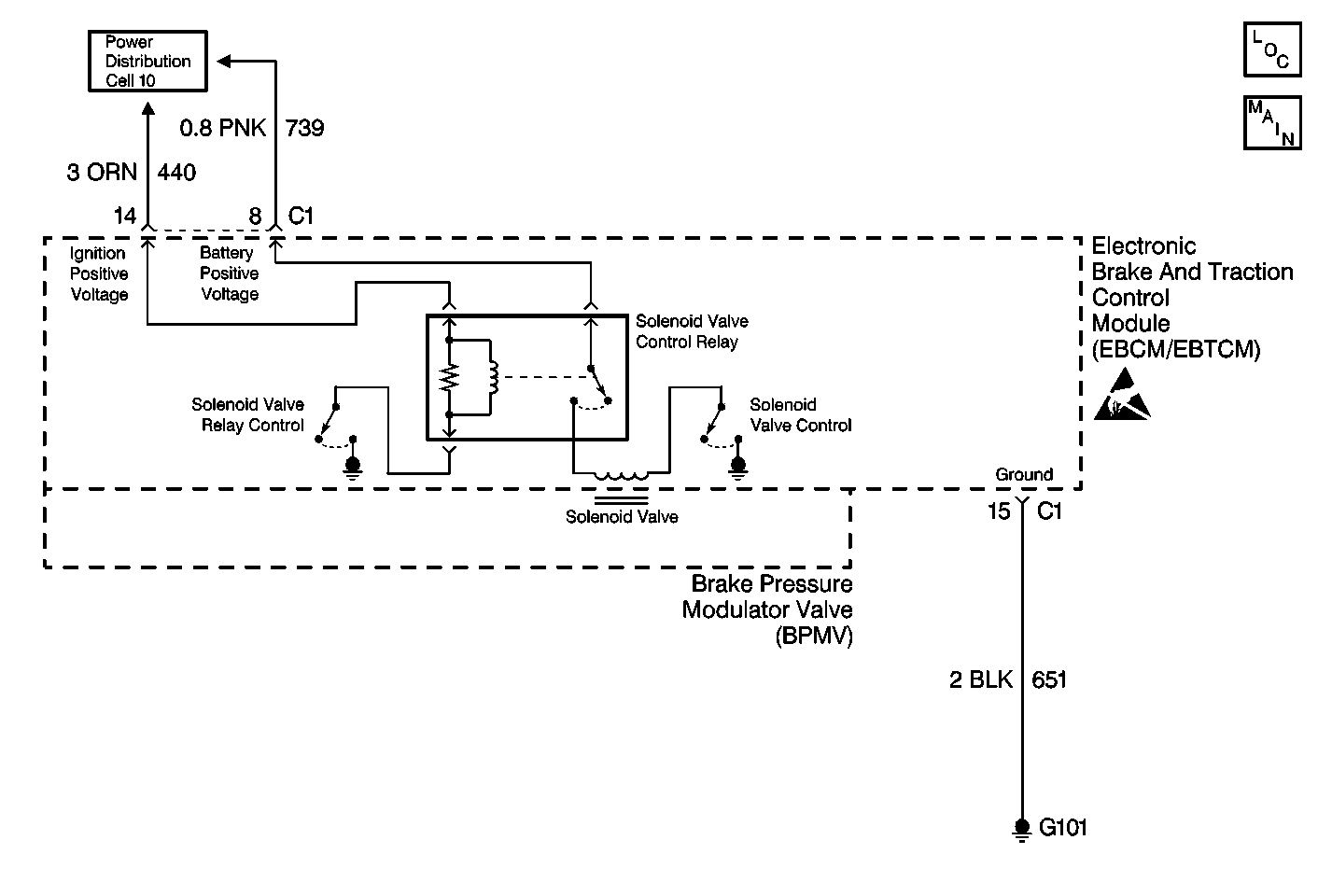
Circuit Description

The Master Cylinder Isolation valve solenoid circuits are supplied with battery power when the ignition is in the RUN position. The EBTCM controls the valve functions by grounding the circuit when necessary.

Conditions for Setting the DTC

The EBTCM senses a discrepancy such as an open, short to ground, or short to voltage in the circuit.

Action Taken When the DTC Sets

    • A malfunction DTC is stored.
    • ABS/TCS disabled
    • ABS/TCS Indicators are turned on.
    • The Red BRAKE Warning Indicator turns on.

Conditions for Clearing the DTC

    • Condition for DTC is no longer present and scan tool clear DTC function is used.
    • 100 ignition cycles pass with no DTC detected.

Test Description

The numbers below refer to step numbers on the Diagnostic Table.

  1. This step determines if the DTC is current.

DTC C0171 TCS Pilot Valve Circuit Malfunction

Step

Action

Value(s)

Yes

No

1

Was the Diagnostic System Check performed?

--

Go to Step 2

Go to Diagnostic System Check

2

  1. Turn the ignition switch to the OFF position.
  2. Install a scan tool.
  3. Turn the ignition switch to the RUN position, engine off.
  4. Using the scan tool run the Automated test.

Does DTC C0171 reset as a current DTC?

--

Go to Step 3

Go to Diagnostic System Check

3

Replace the EBTCM. Refer to Electronic Brake Control Module Replacement

Is the repair complete?

--

Go to Diagnostic System Check

--