GM Service Manual Online
For 1990-2009 cars only
Makes
🢒
Pontiac
🢒
1999
🢒
Firebird
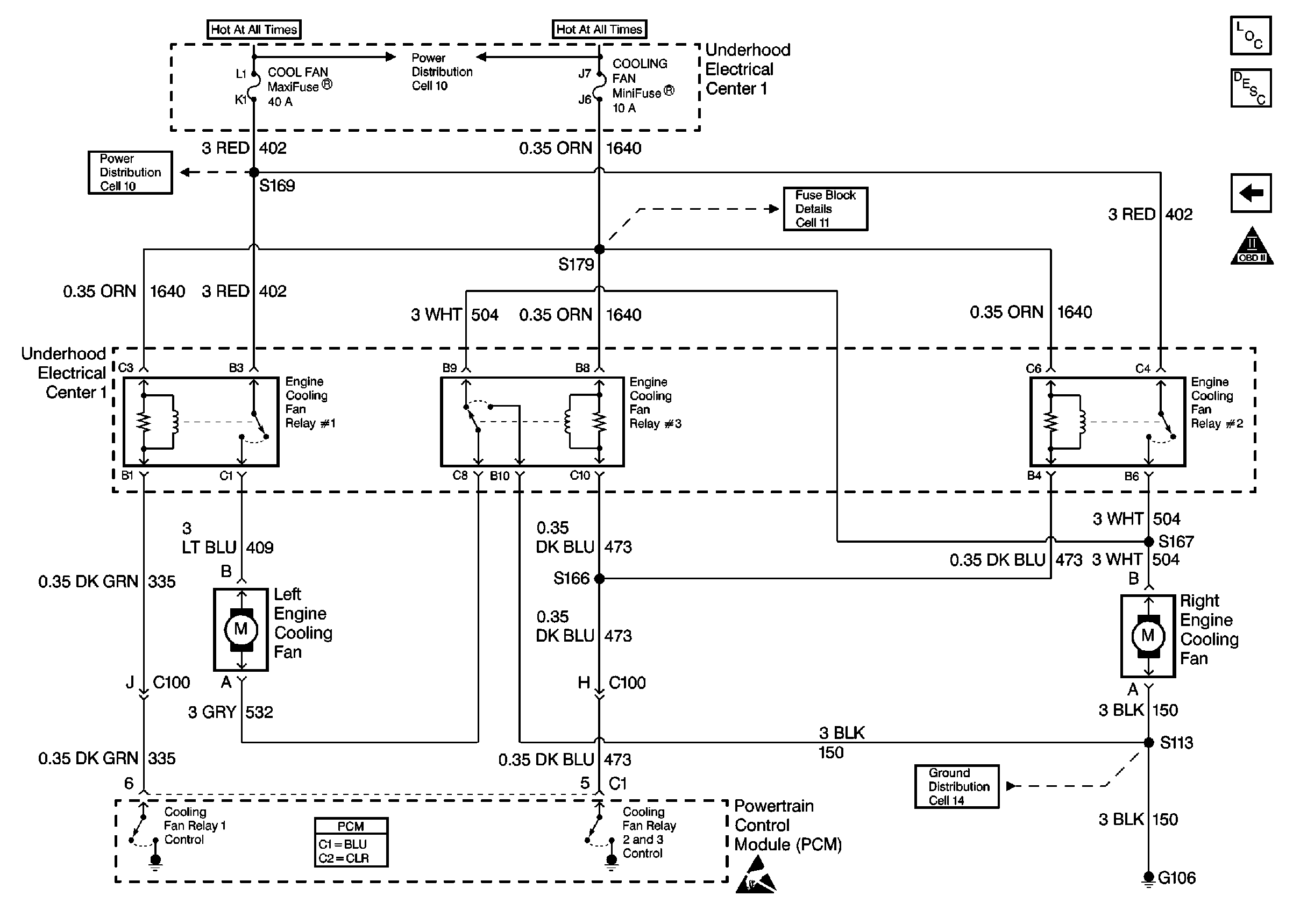
🢒 Cooling Fans
Cooling Fans
Cooling Fans
Engine Controls Components
Powertrain Control Module Description
A/C HVAC Control
OBD II Symbol Description Notice
Battery and Underhood Electrical Center 1
Battery and Underhood Electrical Center 1
U/H Center 1: Cool Fan, TCS BAT, ABS BAT SOL, RH HDLP Door, LH HDLP Door and Horn Fuses
Handling ESD Sensitive Parts Notice
G106