GM Service Manual Online
For 1990-2009 cars only
Makes
🢒
Pontiac
🢒
2000
🢒
Firebird
🢒
Body and Accessories
🢒
Seats
🢒 Power Seats Schematics
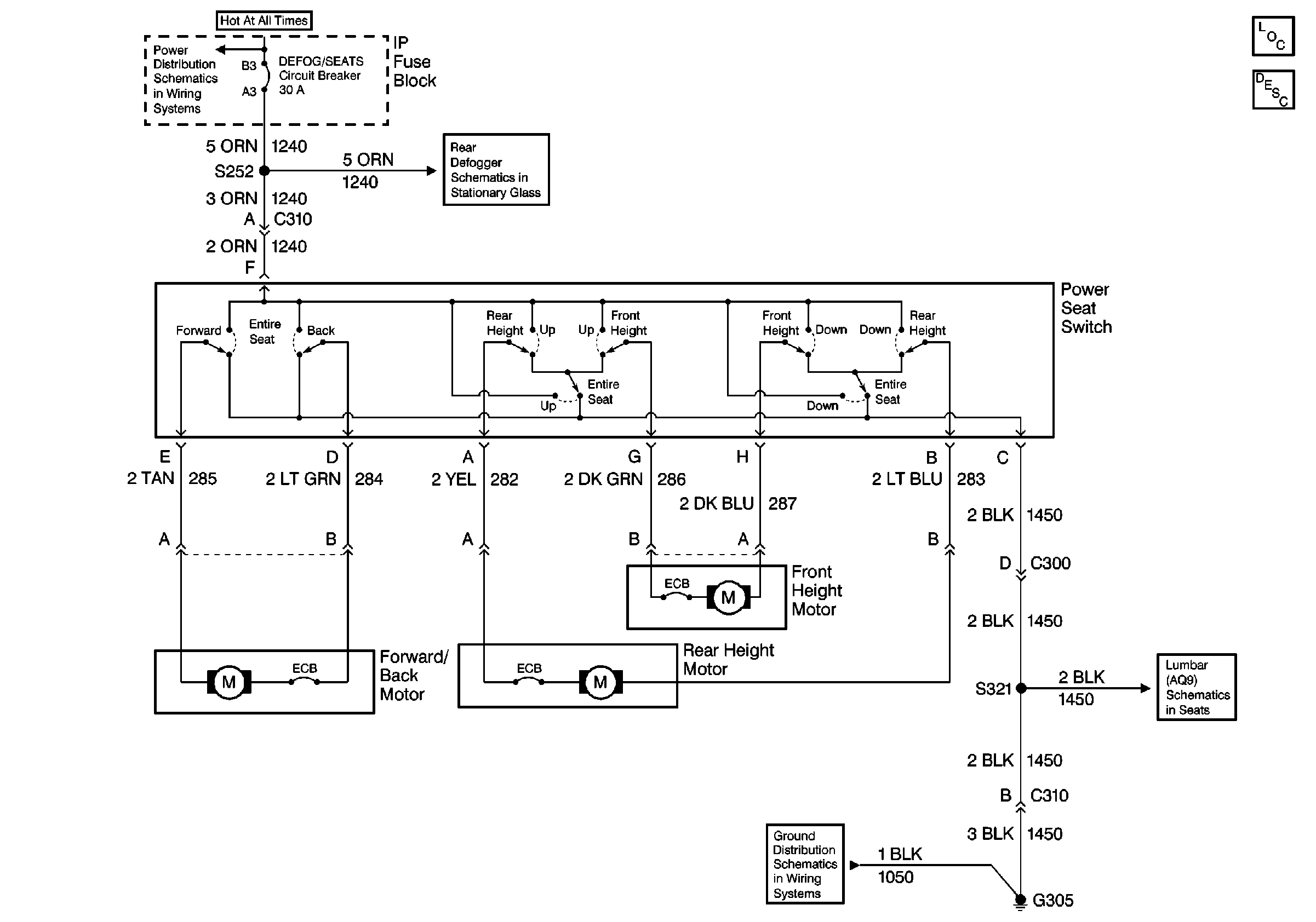
AG1: Power Seat Switch, Seat Motors
Power Seat Systems Components
Power Seats Circuit Description
AQ9: Power Seat Cushion Air Control Module, Lumbar Switches
HVAC Control, Rear Defogger Grid
DEFOG/SEATS Circuit Breaker
G305, G310, G320