GM Service Manual Online
For 1990-2009 cars only
Makes
🢒
Pontiac
🢒
2005
🢒
Grand Prix
🢒 Actuators
Actuators
Actuators
Master Electrical Component List
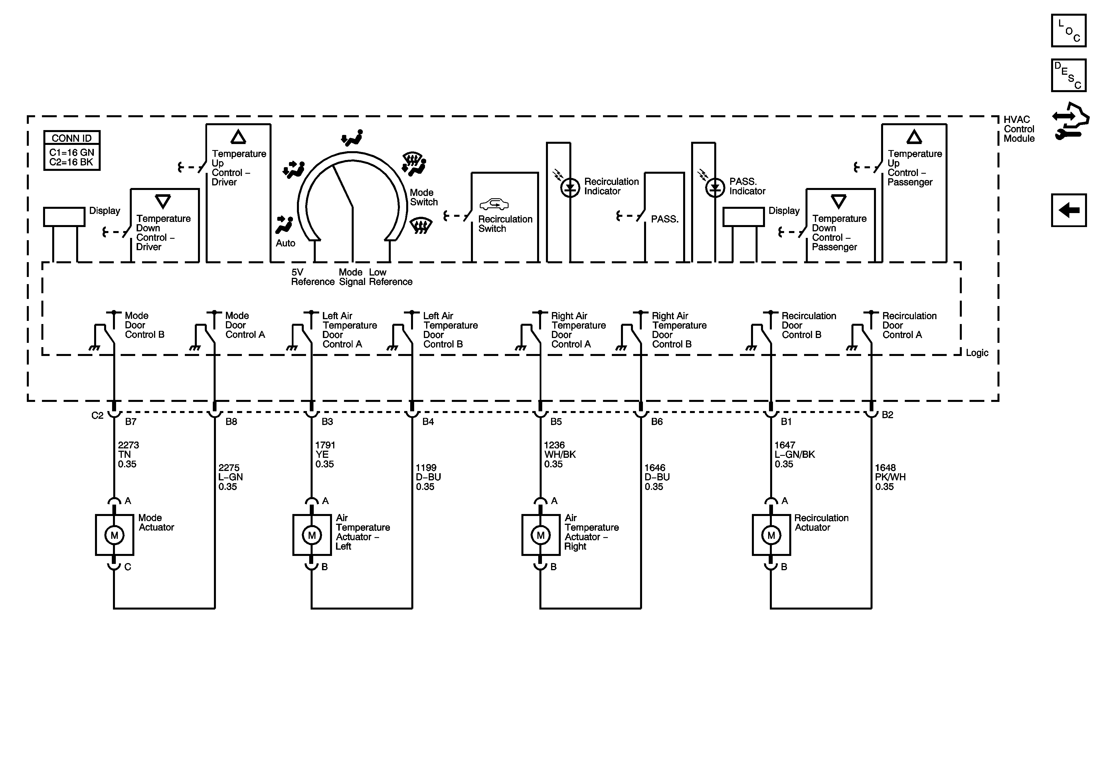
Air Temperature Description and Operation
Control Module References
Sensors