GM Service Manual Online
For 1990-2009 cars only
Makes
🢒
Pontiac
🢒
2006
🢒
Grand Prix
🢒 Power Seat Controls
Power Seat Controls
Power Seat Controls
Master Electrical Component List
Power Seats System Description and Operation
Control Module References
Lumbar Controls
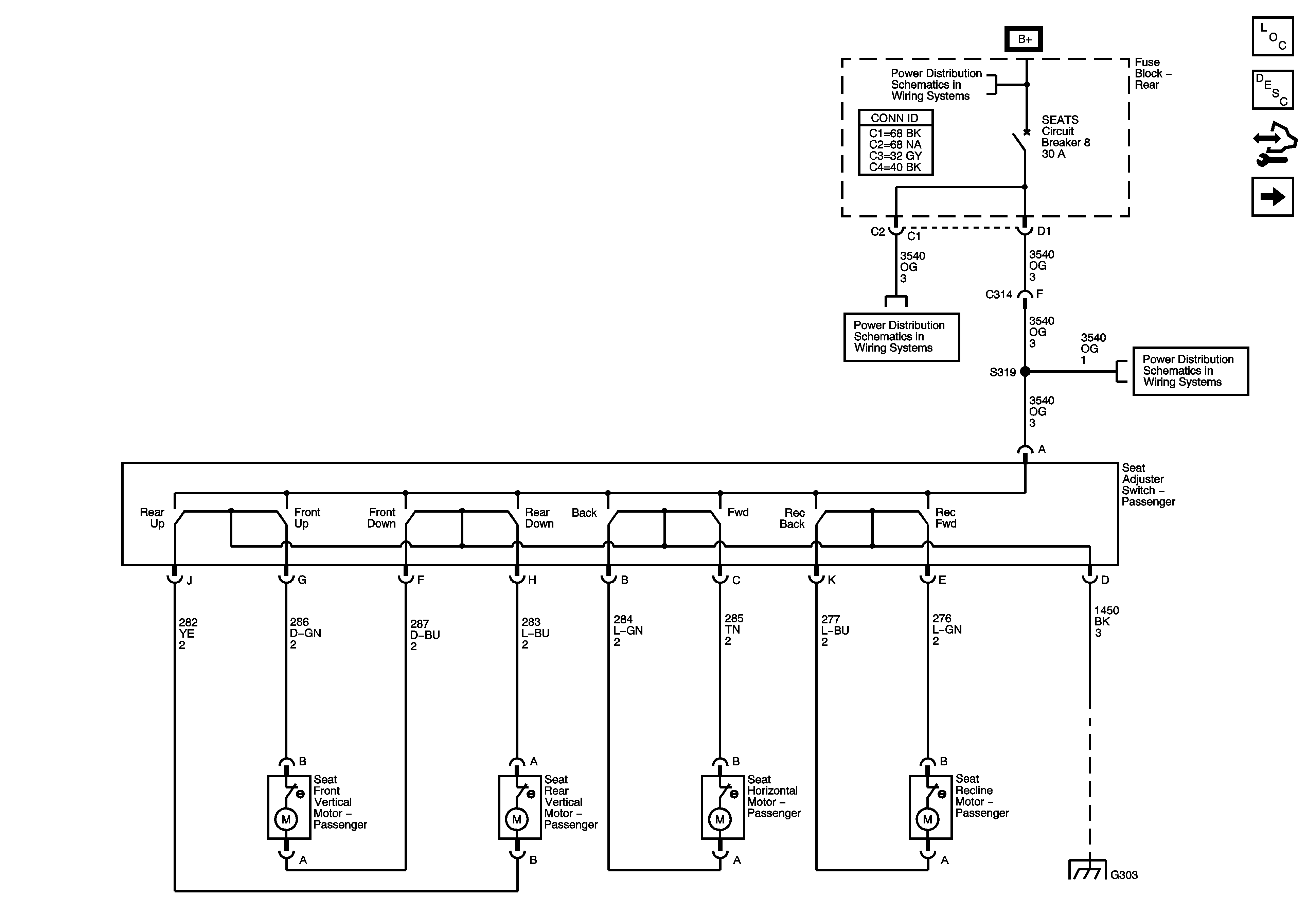
B+ Bus - Rear Fuse Block
AMP, DDM, PDM Fuses, LT DRS, RT DRS, and SEATS Circuit Breakers
AMP, DDM, PDM Fuses, LT DRS, RT DRS, and SEATS Circuit Breakers
G302 - 1 of 2, G303, and G304