GM Service Manual Online
For 1990-2009 cars only

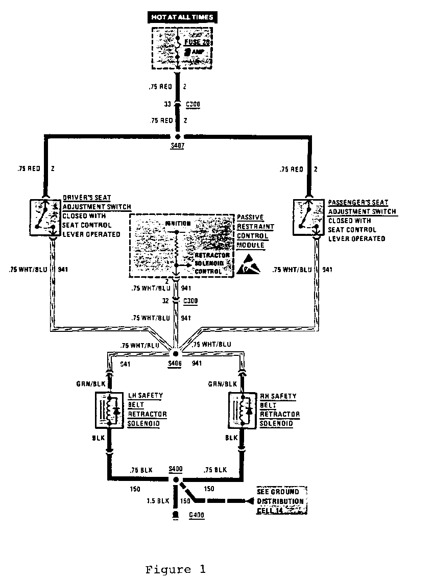
PASSIVE RESTRAINT SHOULDER- BELT RETRACTOR SOLENOID

Models Affected: 1990 LEMANS

1990 Pontiac Lemans' are equipped with a motorized passive restraint system to protect the occupants. This design requires the use of switches mounted on the seat track levers and desensitizing retractor solenoids mounted in the shoulder belt retractor boxes.

System Operation:

The desensitizing retractor solenoids are activated by the passive restraint control module any time the belts are moved by the motors. The desensitizing retractor solenoids are also activated by a completely separate system (Figure 1) when the seats are adjusted by the driver or passenger.

The seat adjuster lever controlled system is powered by a 3 amp #20 fuse located behind the fuse block where the relays are located (Figure 2). This seat adjuster lever controlled system is used only to prevent a possible shoulder belt lock up condition when a front seat is adjusted from the extreme forward position to the extreme rear position at a very fast rate. Moving the seat forward again to reduce tension on the belt would correct the lock up condition.

CAUTION

must be taken to make sure the seat adjuster levers are in the fully down position or a 350ma electrical load will discharge the battery in two to three days.

The failure of this seat adjuster lever controlled desensitizing system will not affect the motorized passive restraint system.


Object Number: 88880  Size: FS


Object Number: 87929  Size: FS

General Motors bulletins are intended for use by professional technicians, not a "do-it-yourselfer". They are written to inform those technicians of conditions that may occur on some vehicles, or to provide information that could assist in the proper service of a vehicle. Properly trained technicians have the equipment, tools, safety instructions and know-how to do a job properly and safely. If a condition is described, do not assume that the bulletin applies to your vehicle, or that your vehicle will have that condition. See a General Motors dealer servicing your brand of General Motors vehicle for information on whether your vehicle may benefit from the information.