GM Service Manual Online
For 1990-2009 cars only
Makes
🢒
Pontiac
🢒
2007
🢒
Solstice
🢒
Diagnostic Navigation
🢒
Vehicle Diagnostic Information
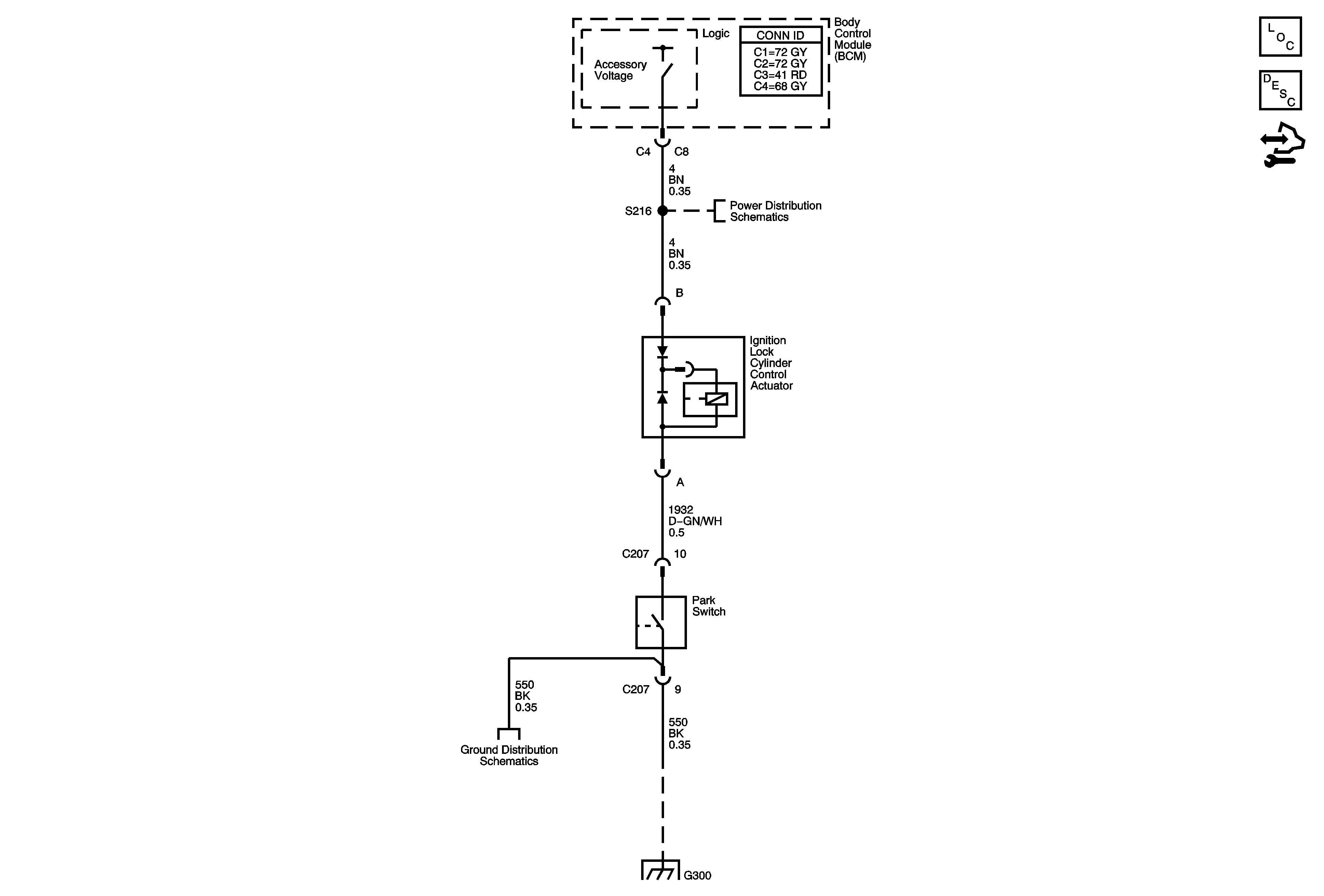
🢒 Ignition Lock Schematics
Master Electrical Component List
Electronic Park Lock Description and Operation
Control Module References
Ignition Switch
G300 - 2 of 2
G300 - 2 of 2
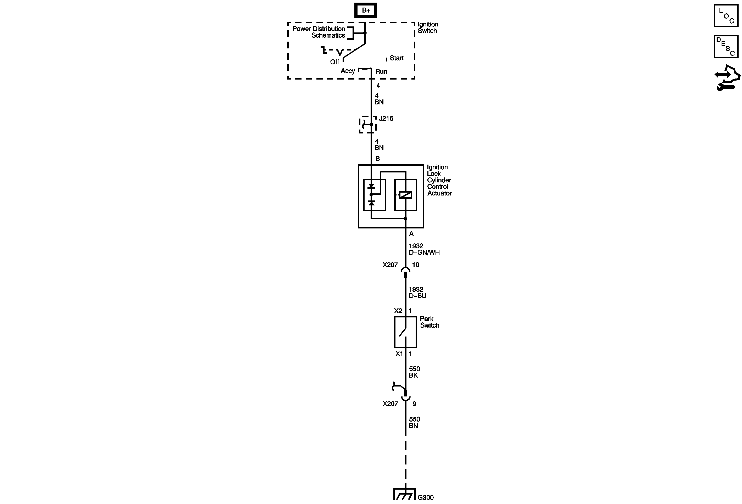
Master Electrical Component List
Electronic Park Lock Description and Operation
Control Module References
Ignition Switch Modes
G300 - 2 of 2