GM Service Manual Online
For 1990-2009 cars only
Makes
🢒
Pontiac
🢒
2007
🢒
Solstice
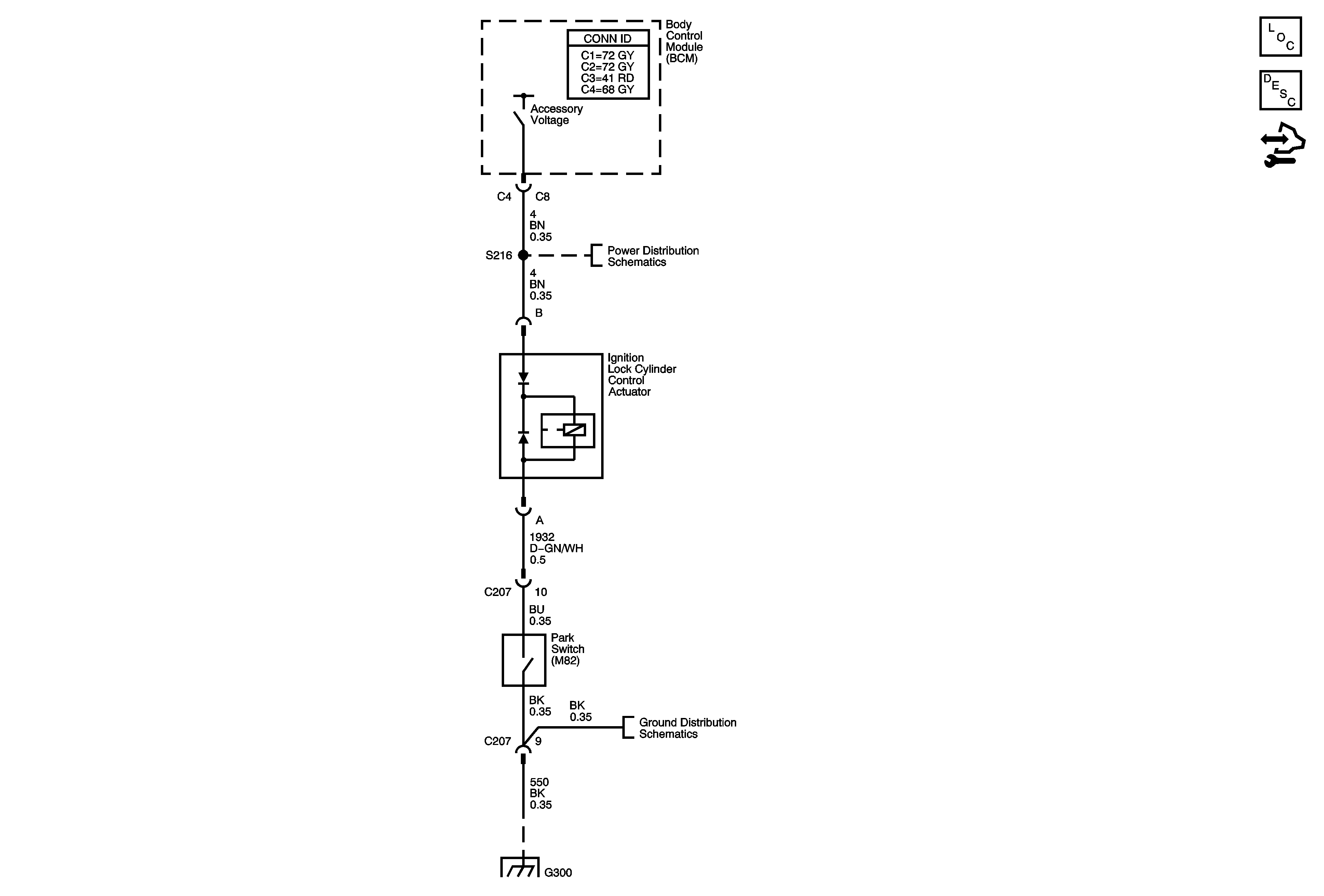
🢒 Ignition Lock Schematics (M82)
Ignition Lock Schematics (M82)
Master Electrical Component List
Immobilizer Description and Operation
Control Module References
Ignition Switch
G300 - 1 of 2