GM Service Manual Online
For 1990-2009 cars only
Makes
🢒
Pontiac
🢒
2001
🢒
Sunfire
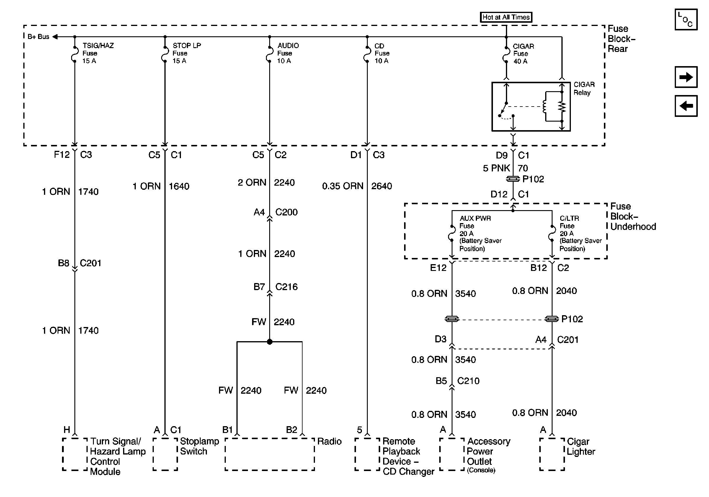
🢒 TSIG/HAZ, STOP LAMP, AUDIO, CD, CIGAR Fuses and CIGAR Relay (Fuse Block-Rear)
TSIG/HAZ, STOP LAMP, AUDIO, CD, CIGAR Fuses and CIGAR Relay (Fuse Block-Rear)
TSIG/HAZ, STOP LAMP, AUDIO, CD, CIGAR Fuses and CIGAR Relay (Fuse Block-Rear)
Master Electrical Component List
IGN SW Fuse (Fuse Block-Rear)
LP PKL, LP RKR, DIMR Fuses (Fuse Block-Rear)