GM Service Manual Online
For 1990-2009 cars only
Makes
🢒
Pontiac
🢒
2001
🢒
Sunfire
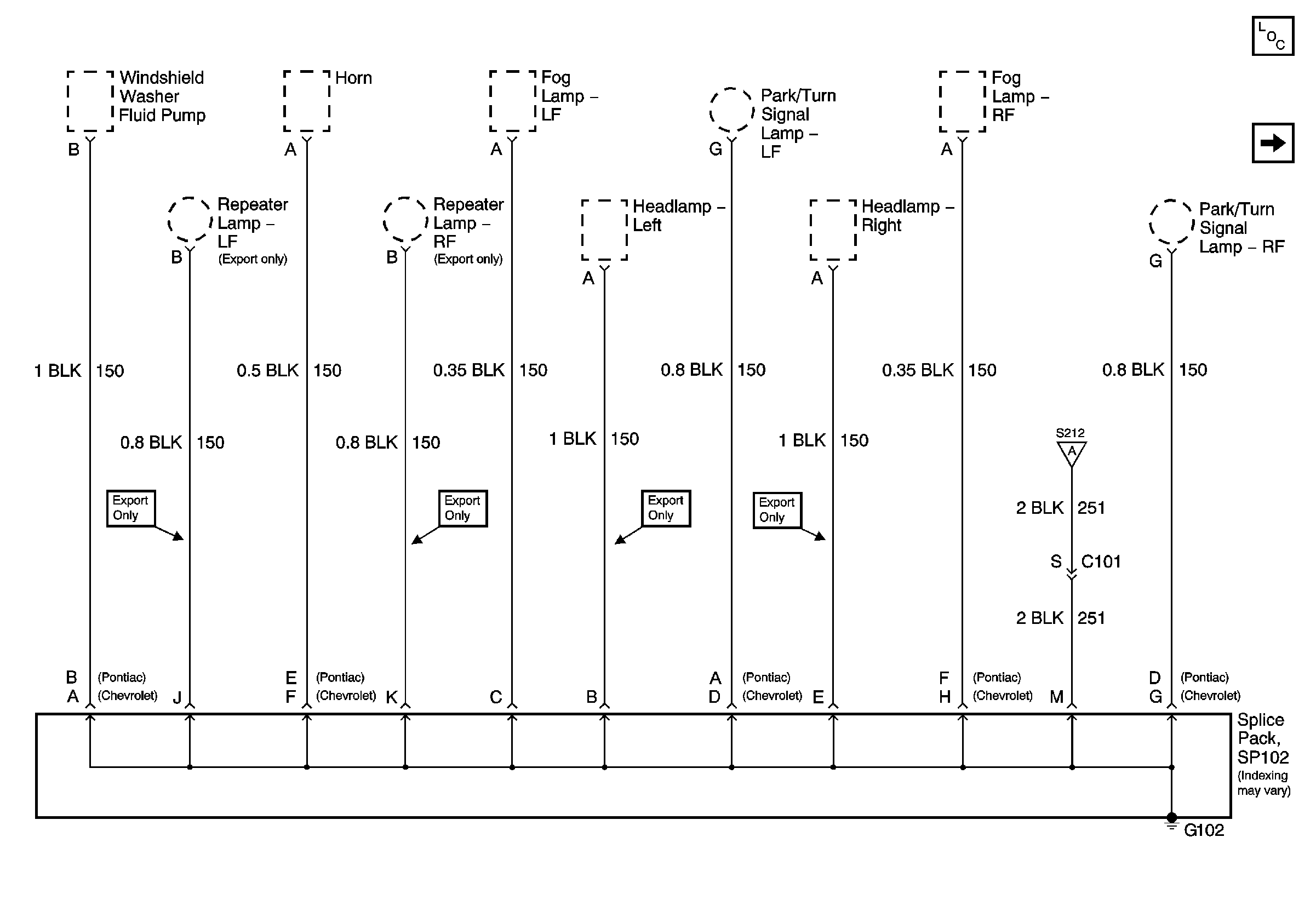
🢒 G102 - 1 of 2
G102 - 1 of 2
G102-1 of 2
Master Electrical Component List
G102 - 2 of 2, G201 and G303
G102 - 2 of 2, G201 and G303