Tools Required
J 33049 Camshaft Bearing
Remover/Installer Set
- Install the
camshaft bearings.
| 1.1. | Select the proper front camshaft bearing. |
| 1.2. | Select the proper intermediate camshaft bearings. |
| 1.3. | Select the proper rear camshaft bearing. |
| 1.4. | Choose the proper pilot. |
| 1.5. | Choose the proper nut. |
| 1.6. | Choose the proper thrust washer. |
| 1.8. | Install the camshaft bearing onto the J 33049
. |
| 1.9. | Align the oil hole in the camshaft bearing with the oil hole in
the cylinder block. |
Notice: The oil holes on the camshaft bearings must be aligned with the oil
holes in the cylinder block. This will ensure that the oil flow will not be
restricted.
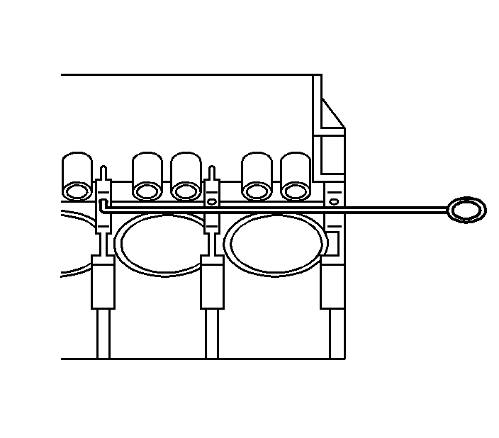
| 1.10. | Pull the camshaft bearing into place. |
- Inspect the alignment
of the camshaft bearing oil holes and the cylinder block oil holes. Probe
the camshaft bearing oil holes in order to verify that the camshaft bearing
oil holes are properly aligned.