GM Service Manual Online
For 1990-2009 cars only
Makes
🢒
Pontiac
🢒
2009
🢒
Torrent
🢒
Driver Information and Entertainment
🢒
Secondary and Configurable Customer Controls
🢒 Steering Wheel Secondary/Configurable Control Schematics
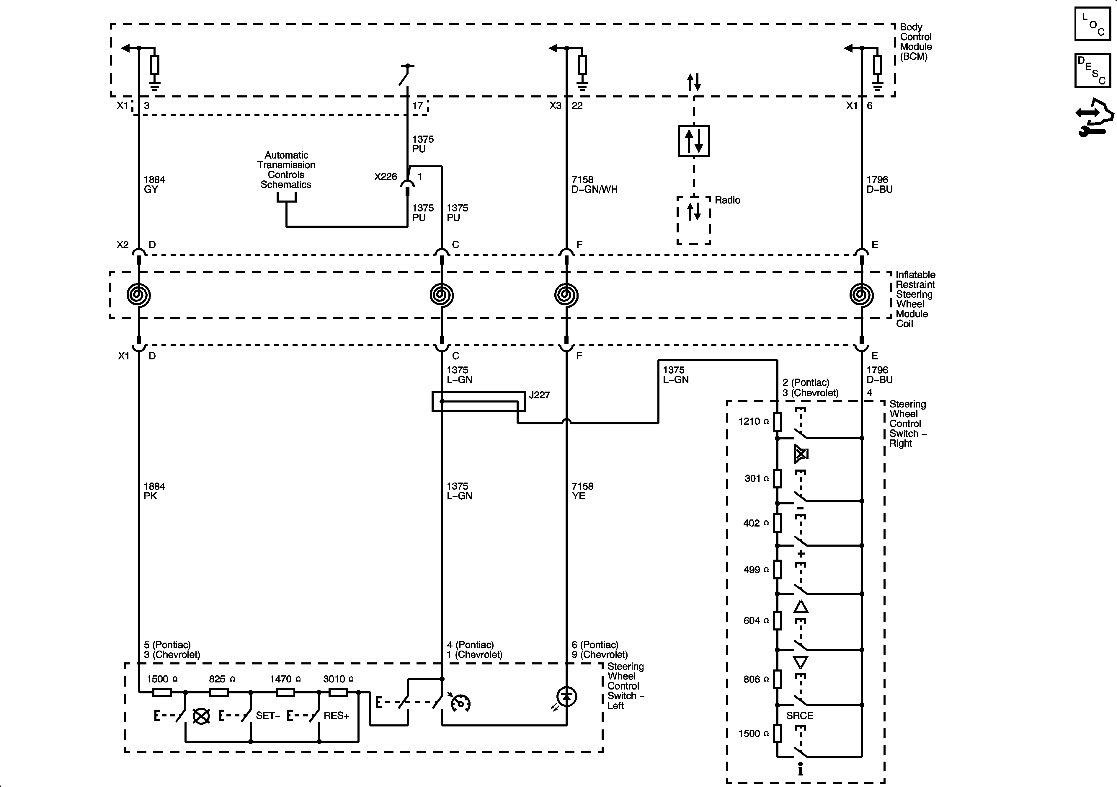
Remote Radio Steering Wheel Controls (UK3)