GM Service Manual Online
For 1990-2009 cars only
Makes
🢒
Pontiac
🢒
2009
🢒
Torrent
🢒
Safety and Security
🢒
Supplemental Inflatable Restraints
🢒 SIR Schematics
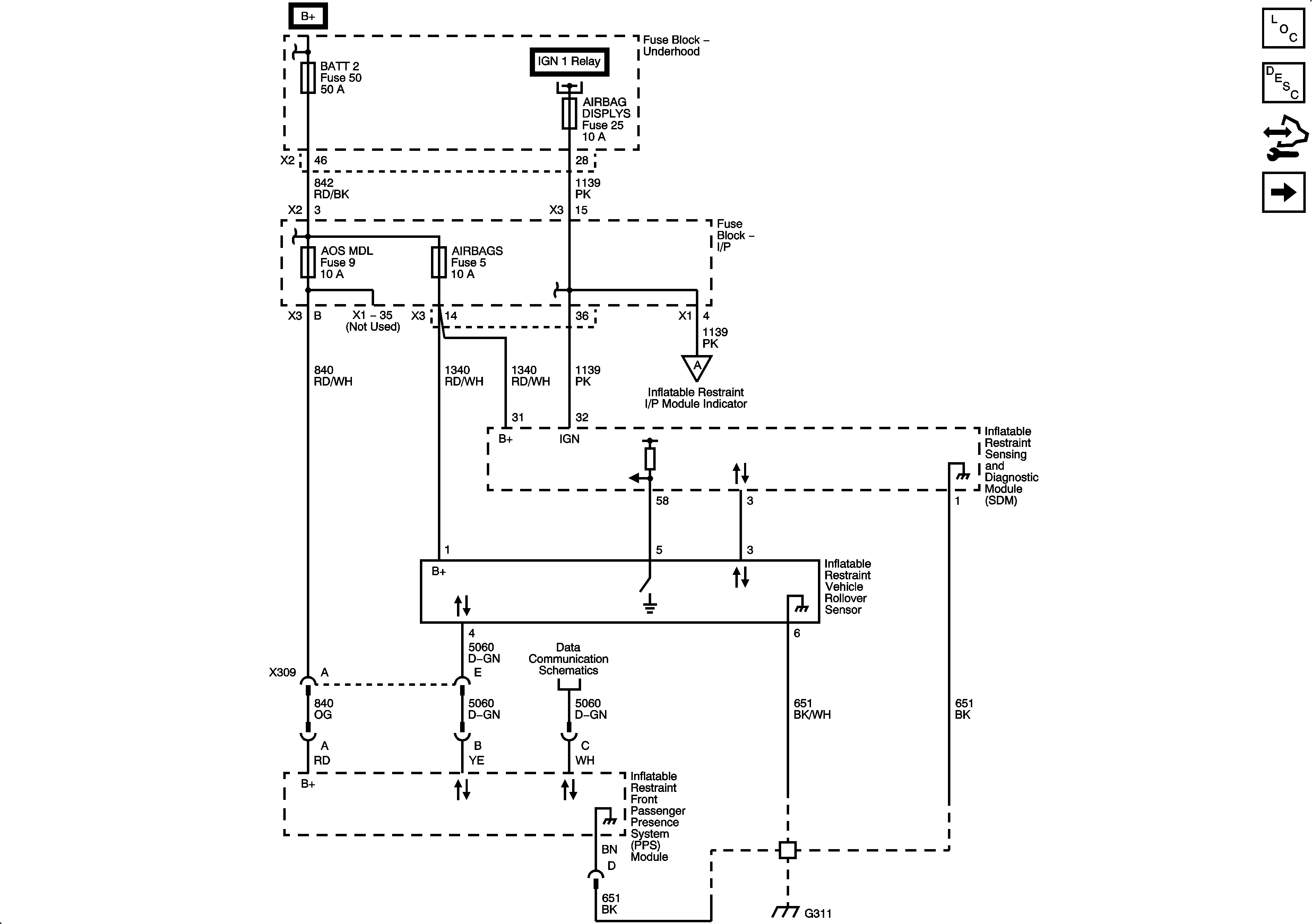
Figure
1:
Power, Ground, Roll Over Sensor, and PPS
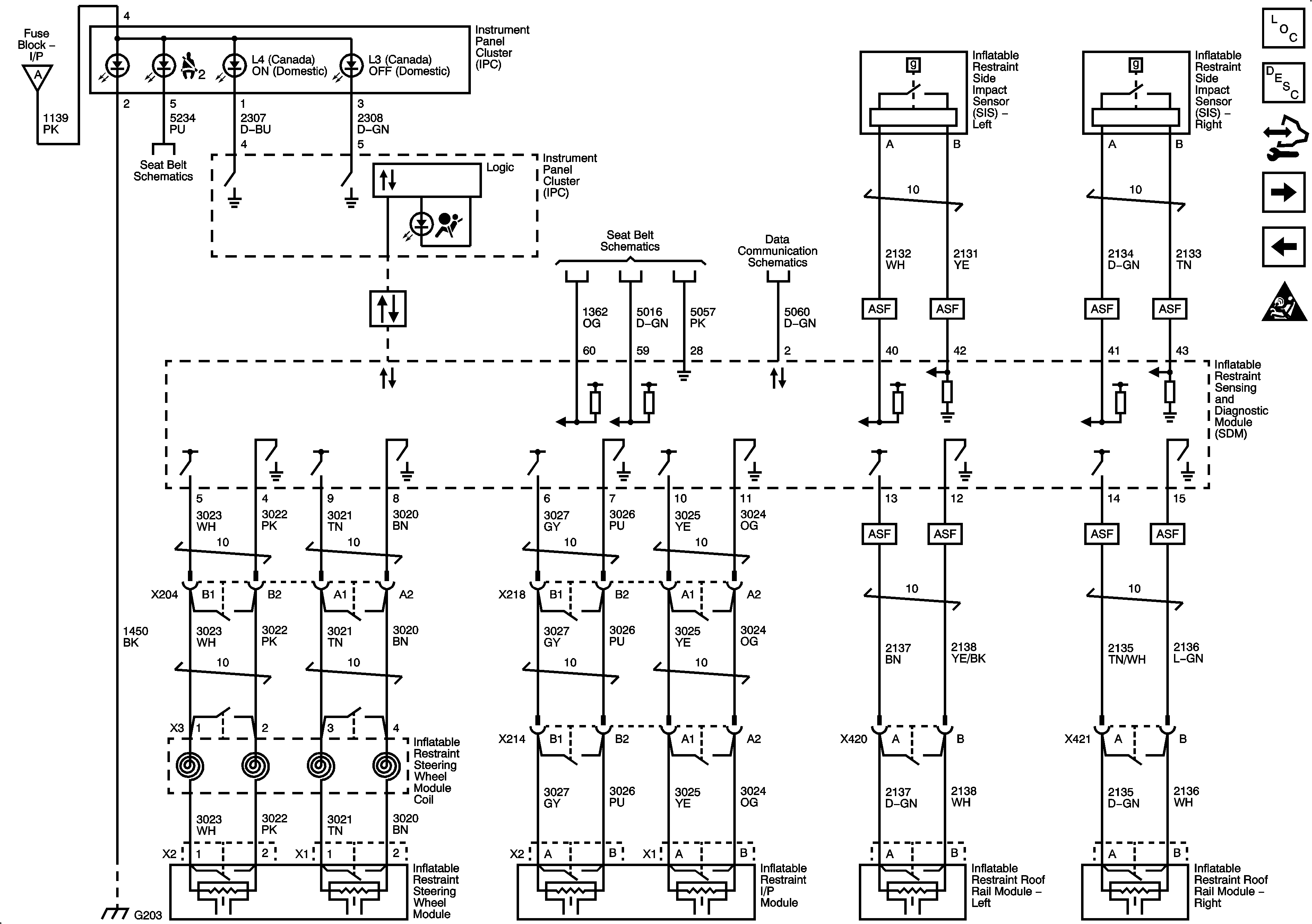
Figure
2:
Modules and Sensors
Figure
3:
Pretensioners and Front End Sensor