GM Service Manual Online
For 1990-2009 cars only
Makes
🢒
Pontiac
🢒
2005
🢒
Wave
🢒 Air Delivery
Air Delivery
Air Delivery
Master Electrical Component List
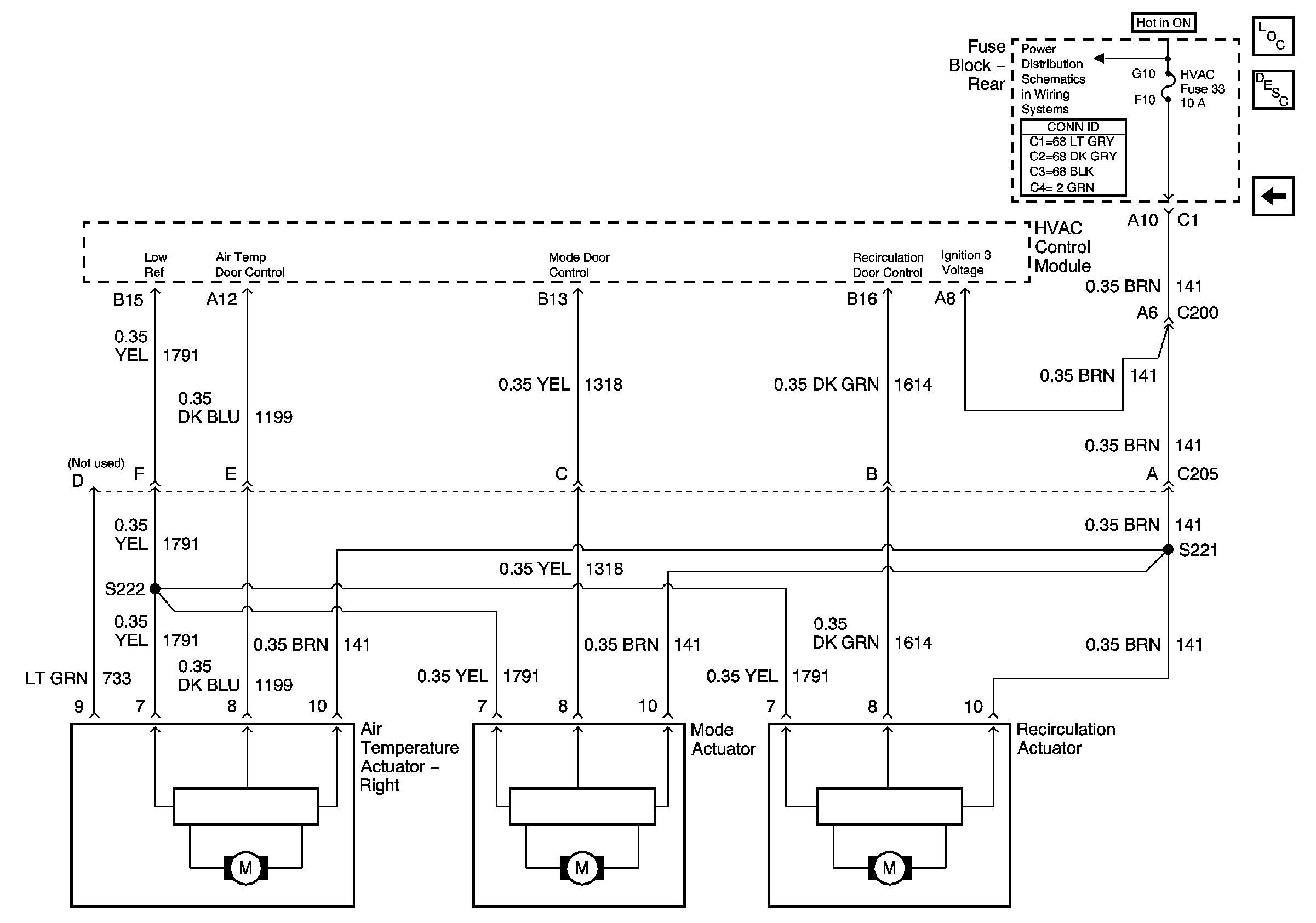
Air Delivery Description and Operation
Rear Fuse Block - B+ Bus
Compressor Controls