GM Service Manual Online
For 1990-2009 cars only
Makes
🢒
Pontiac
🢒
2005
🢒
Wave
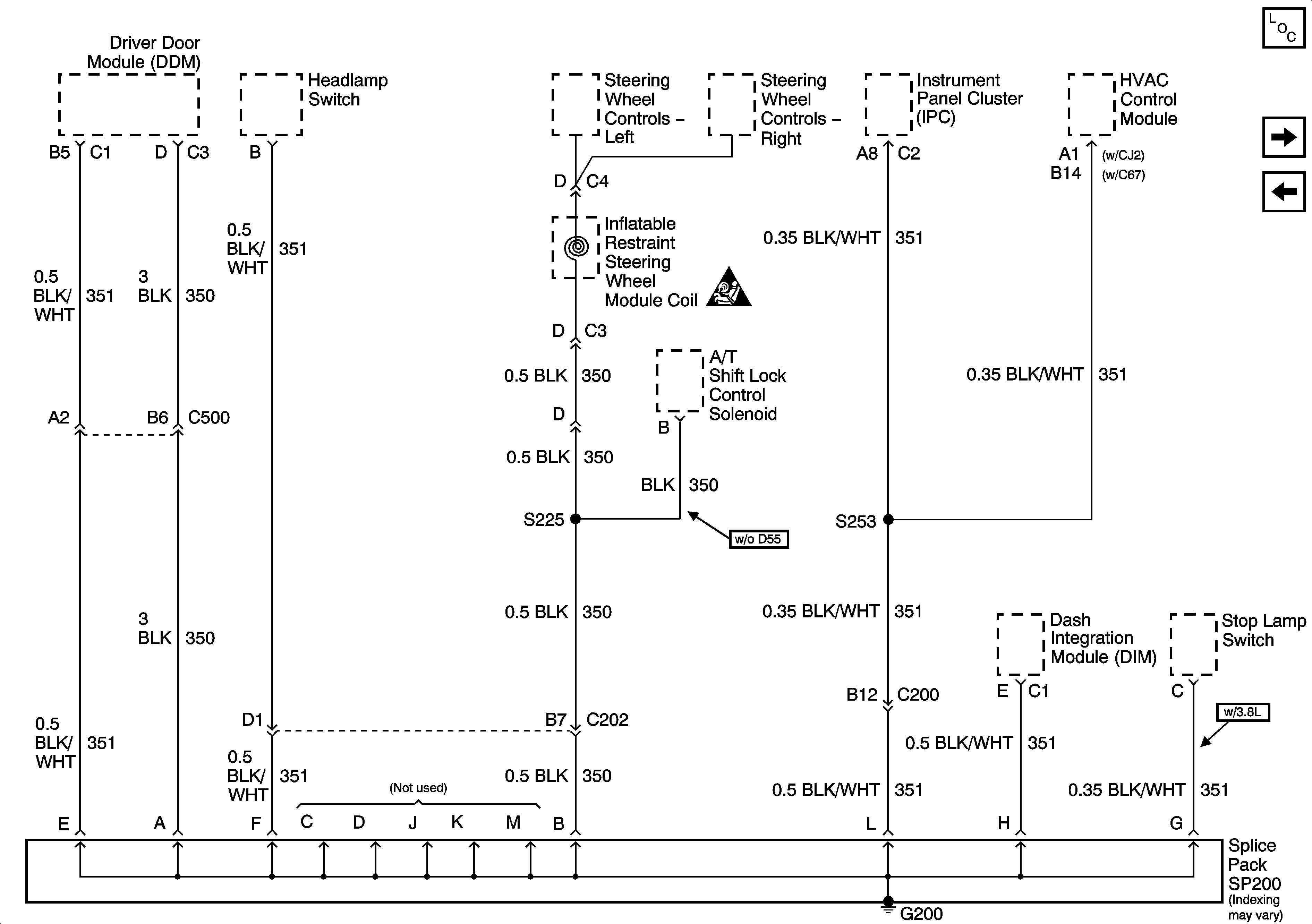
🢒 G200
G200
G200
Master Electrical Component List
G201 - 1 of 2
G104 and G105 - 3.8L
SIR Caution for Zoning