GM Service Manual Online
For 1990-2009 cars only
Makes
🢒
Pontiac
🢒
2007
🢒
Wave
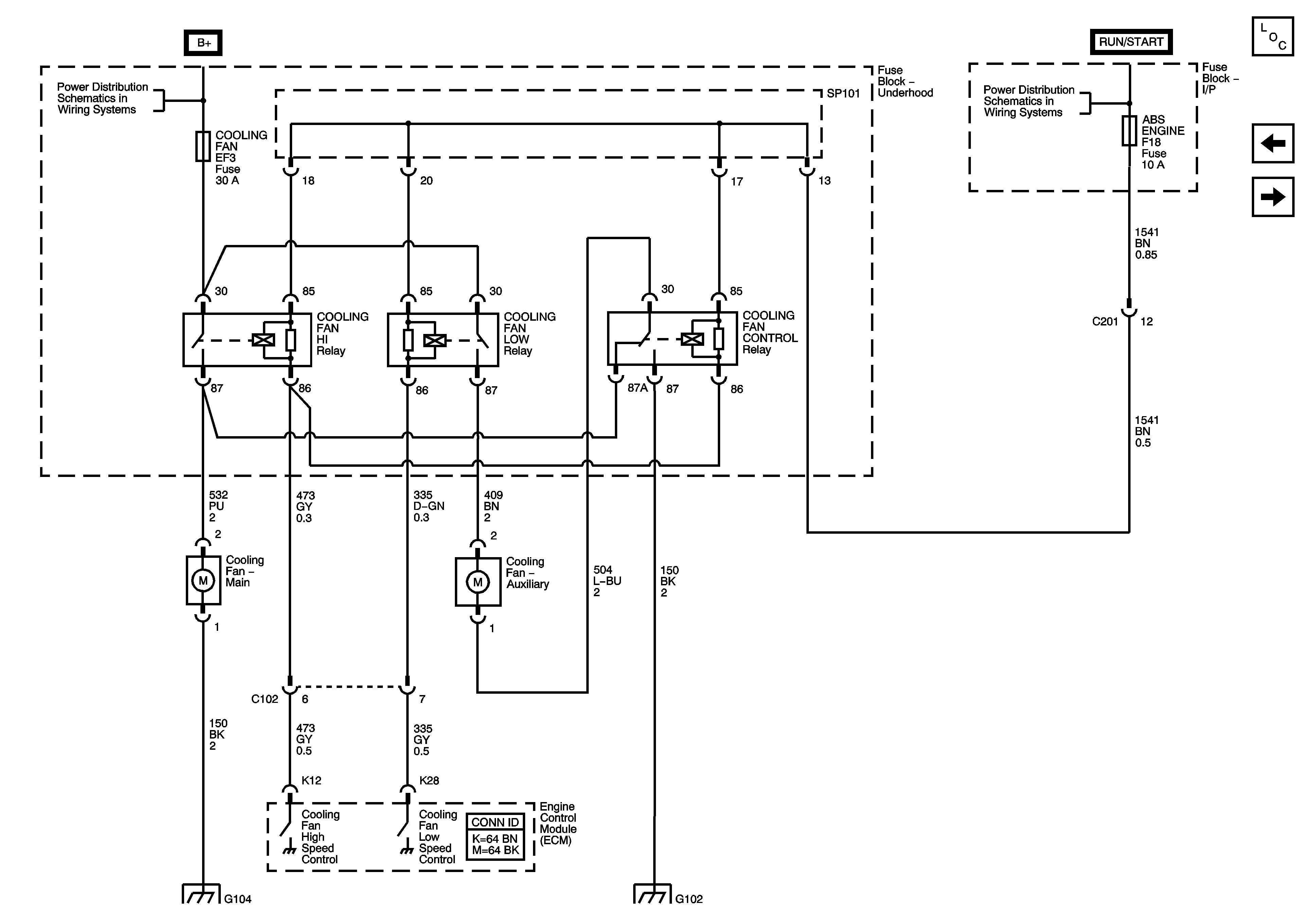
🢒 Engine Cooling 1.4L-1.5L
Engine Cooling 1.4L-1.5L
1.4L, 1.5L
Master Electrical Component List
Engine Cooling - 1.2L
Engine Cooling - 1.6L
Power Distribution - Battery Feed
Power Distribution - Battery Feed
Ground Distribution - G104
Ground Distribution - G102 cont.