GM Service Manual Online
For 1990-2009 cars only
Makes
🢒
Pontiac
🢒
2007
🢒
Wave
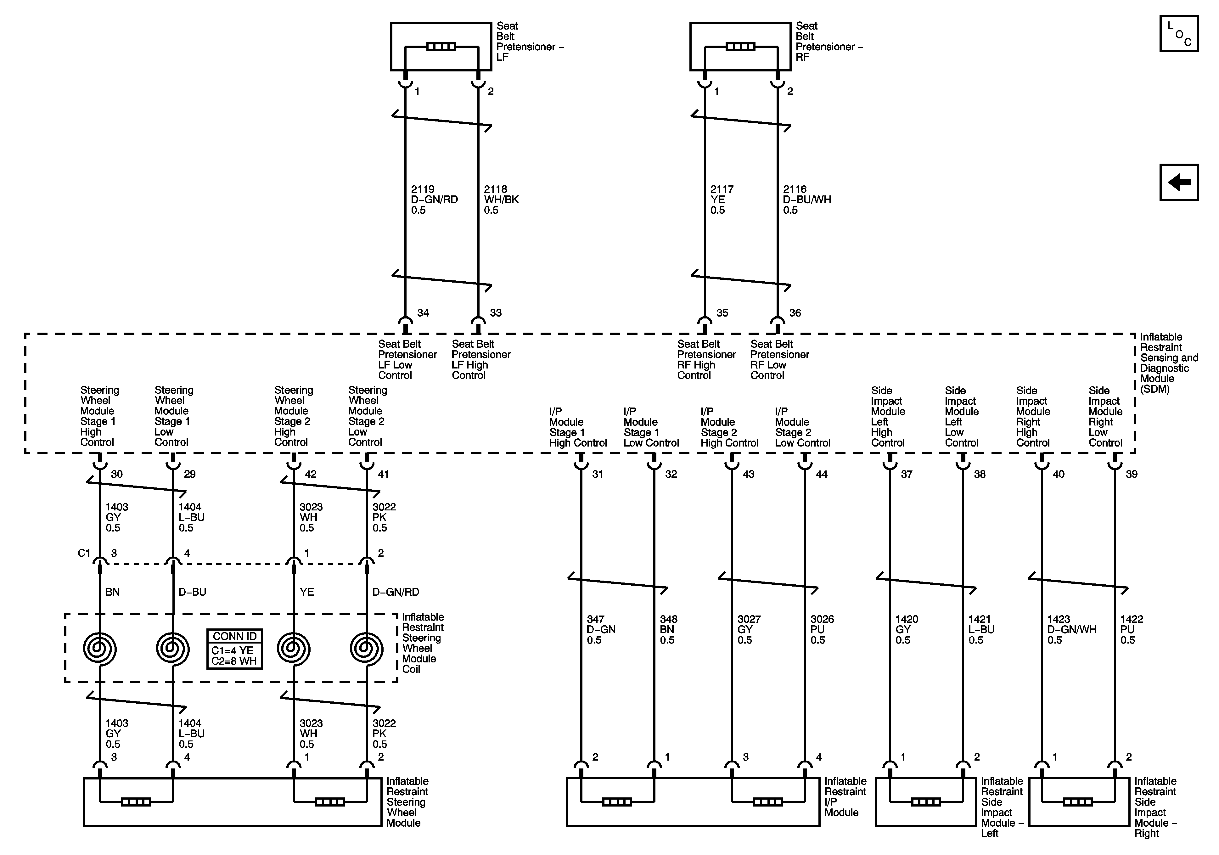
🢒 SIR - North American (2of2)
SIR - North American (2of2)
Master Electrical Component List
SIR - North America