GM Service Manual Online
For 1990-2009 cars only
Makes
🢒
Pontiac
🢒
2007
🢒
Wave
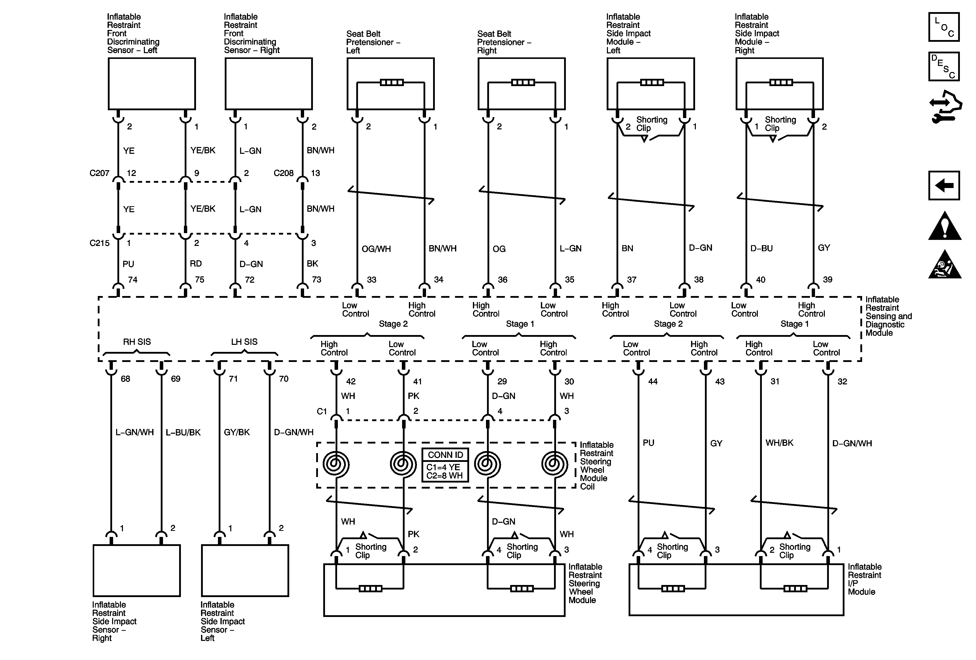
🢒 SIR System w/Passenger Presence System (PPS) (2 of 2)
SIR System w/Passenger Presence System (PPS) (2 of 2)
SIR System w/Passenger Presence System (PPS) (2 of 2)
Master Electrical Component List (Notchback)
SIR System Description and Operation
Control Module References
SIR System w/Passenger Presence System (PPS) (1 of 2)
SIR Schematic Icons
SIR Caution for Zoning