GM Service Manual Online
For 1990-2009 cars only
Makes
🢒
Pontiac
🢒
2008
🢒
Wave
🢒
Transmission/Transaxle
🢒
Manual Transaxle - Y4M
🢒 Manual Transmission Schematics
Manual Transmission Schematics Notchback
Master Electrical Component List (Notchback)
Transmission System Description and Operation
Control Module References
SDM, EMS 1, EMS 2 Fuses
SDM, EMS 1, EMS 2 Fuses
ABS, HAZARD, ECU, FUEL PUMP Fuses
ABS, HAZARD, ECU, FUEL PUMP Fuses
G104
Manual Transmission Schematics Hatchback
Master Electrical Component List Hatchback
Transmission System Description and Operation
Control Module References
Fuse Block - Underhood IGN 2 Fuse, Ignition Switch, Fuse Block - I/P, ABS, ALTERNATOR, ECM TCM, HVAC, WPR WSWA Fuses
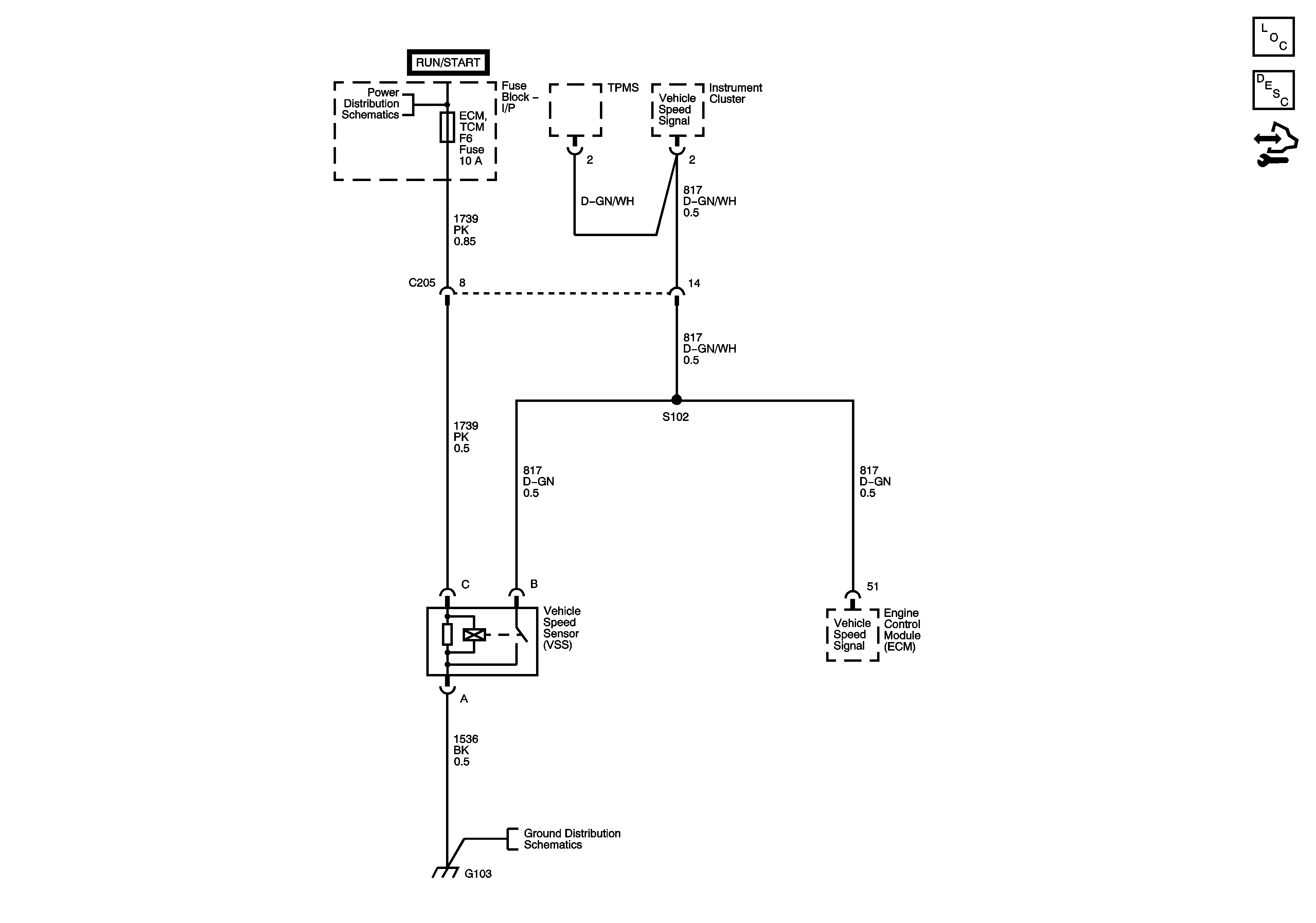
Ground Distribution G103 - 1.5L