GM Service Manual Online
For 1990-2009 cars only

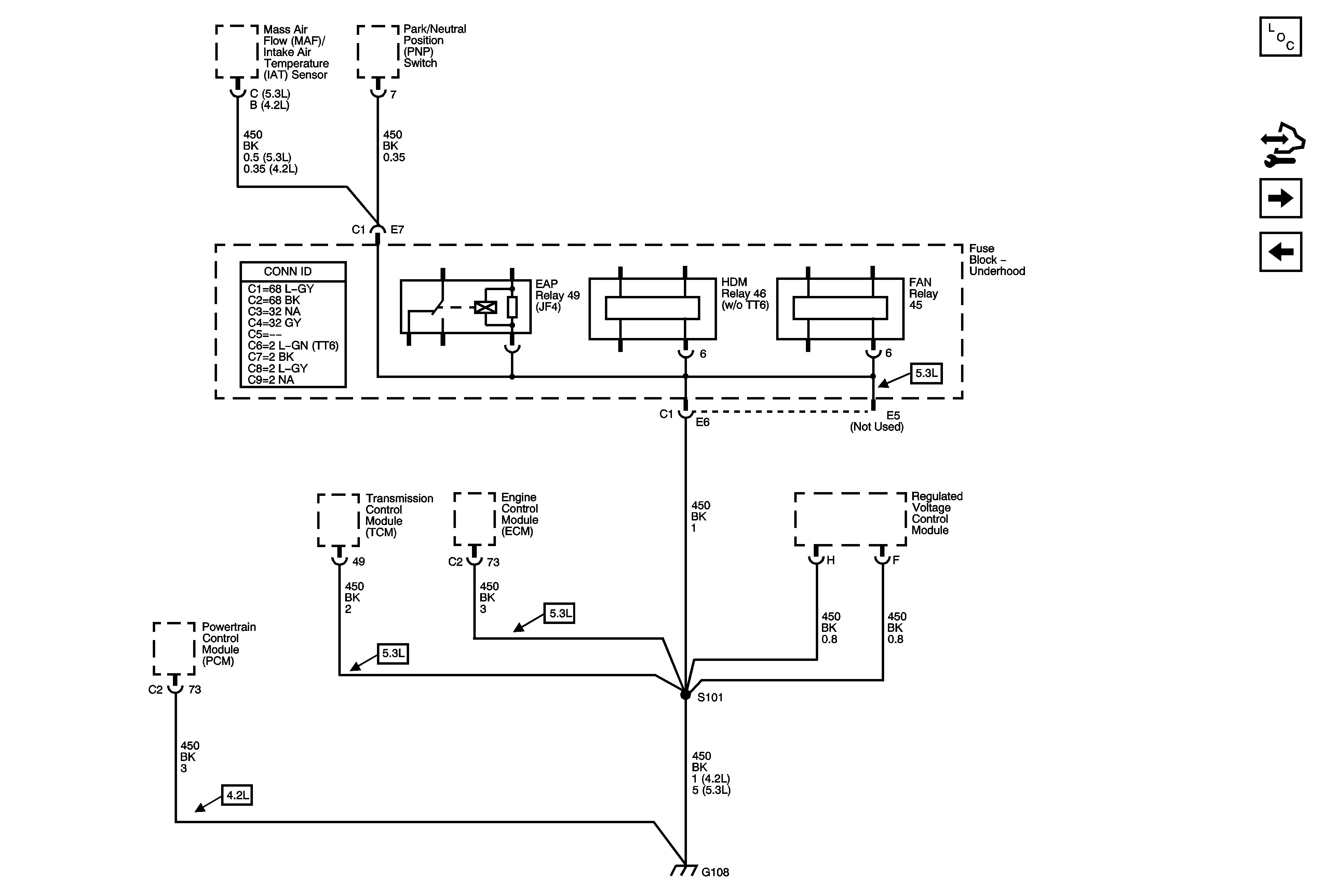
G108

G108


Object Number: 1749203  Size: FS
Master Electrical Component List
Control Module References
G109
G104, G105, and G107