GM Service Manual Online
For 1990-2009 cars only
Makes
🢒
Saturn
🢒
2005
🢒
ION
🢒 Manual Transmission - M86 Getrag
Manual Transmission - M86 Getrag
Master Electrical Component List
Transmission System Description and Operation
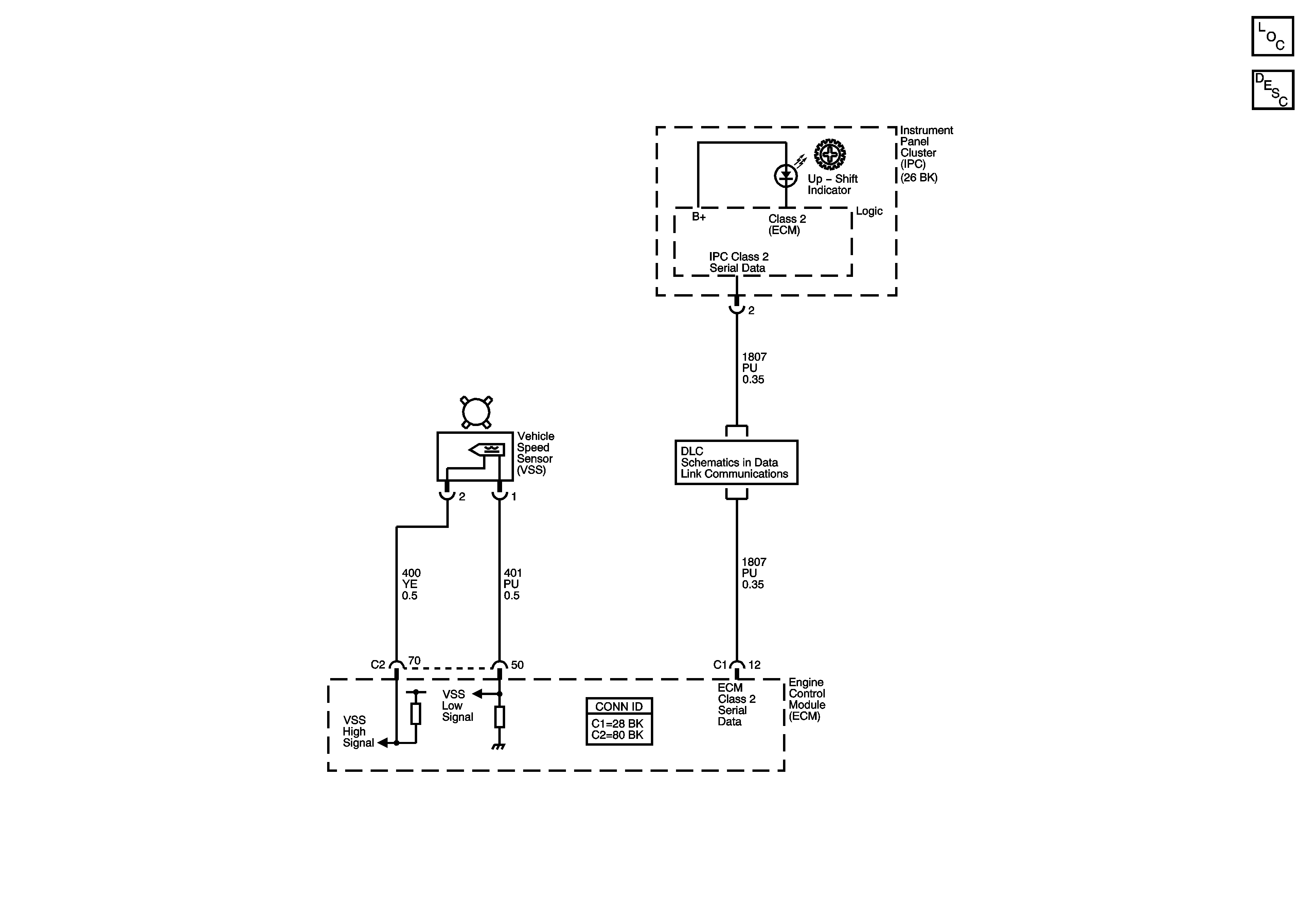
Data Link Communication Schematics