GM Service Manual Online
For 1990-2009 cars only
Makes
🢒
Saturn
🢒
2005
🢒
ION
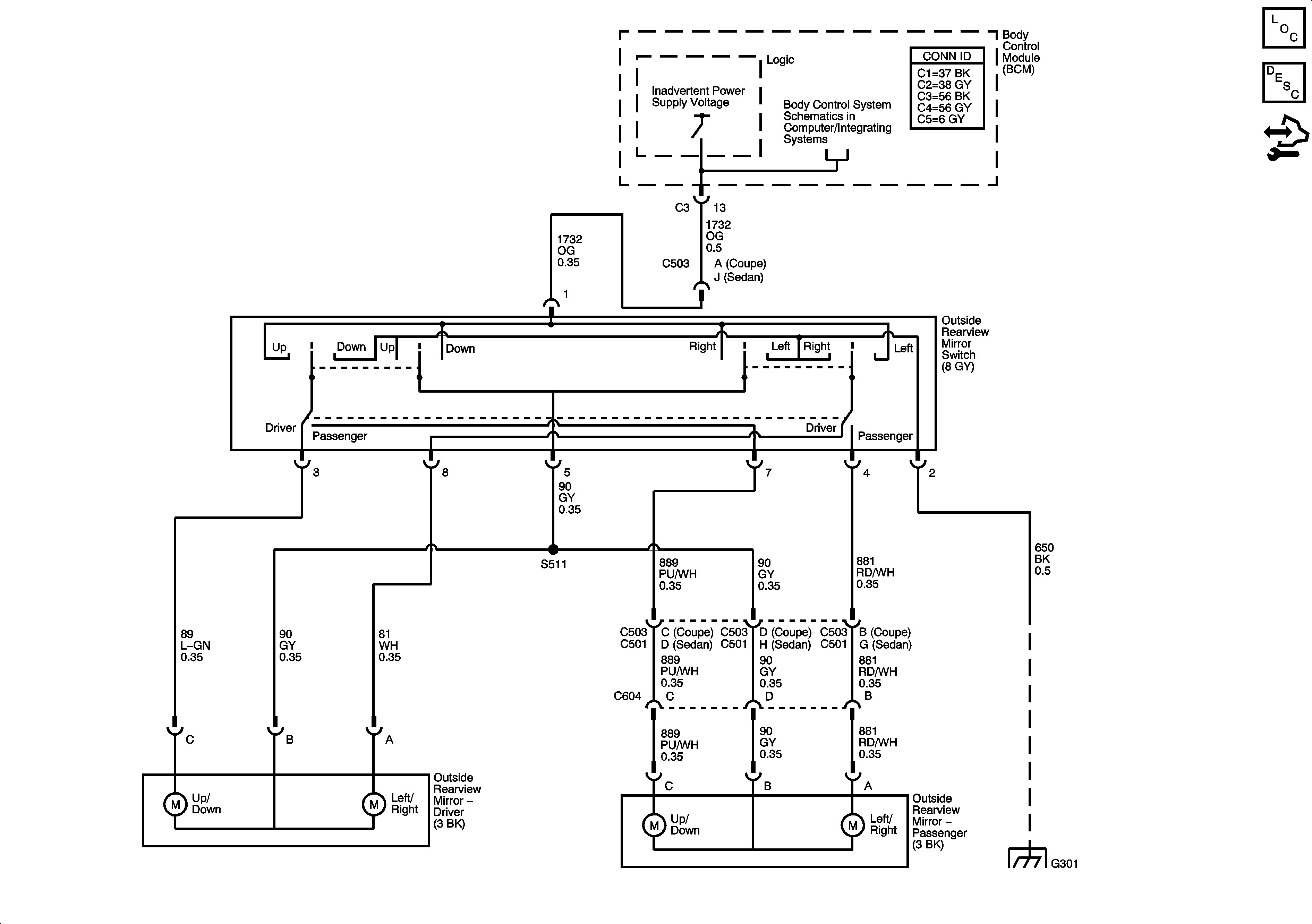
🢒 Outside Rearview Mirror
Outside Rearview Mirror
Master Electrical Component List
Outside Mirror Description and Operation
Control Module References
References to Body Rear End, Doors, Horns, and Lighting - 2 of 2
G301