GM Service Manual Online
For 1990-2009 cars only
Makes
🢒
Saturn
🢒
2006
🢒
ION
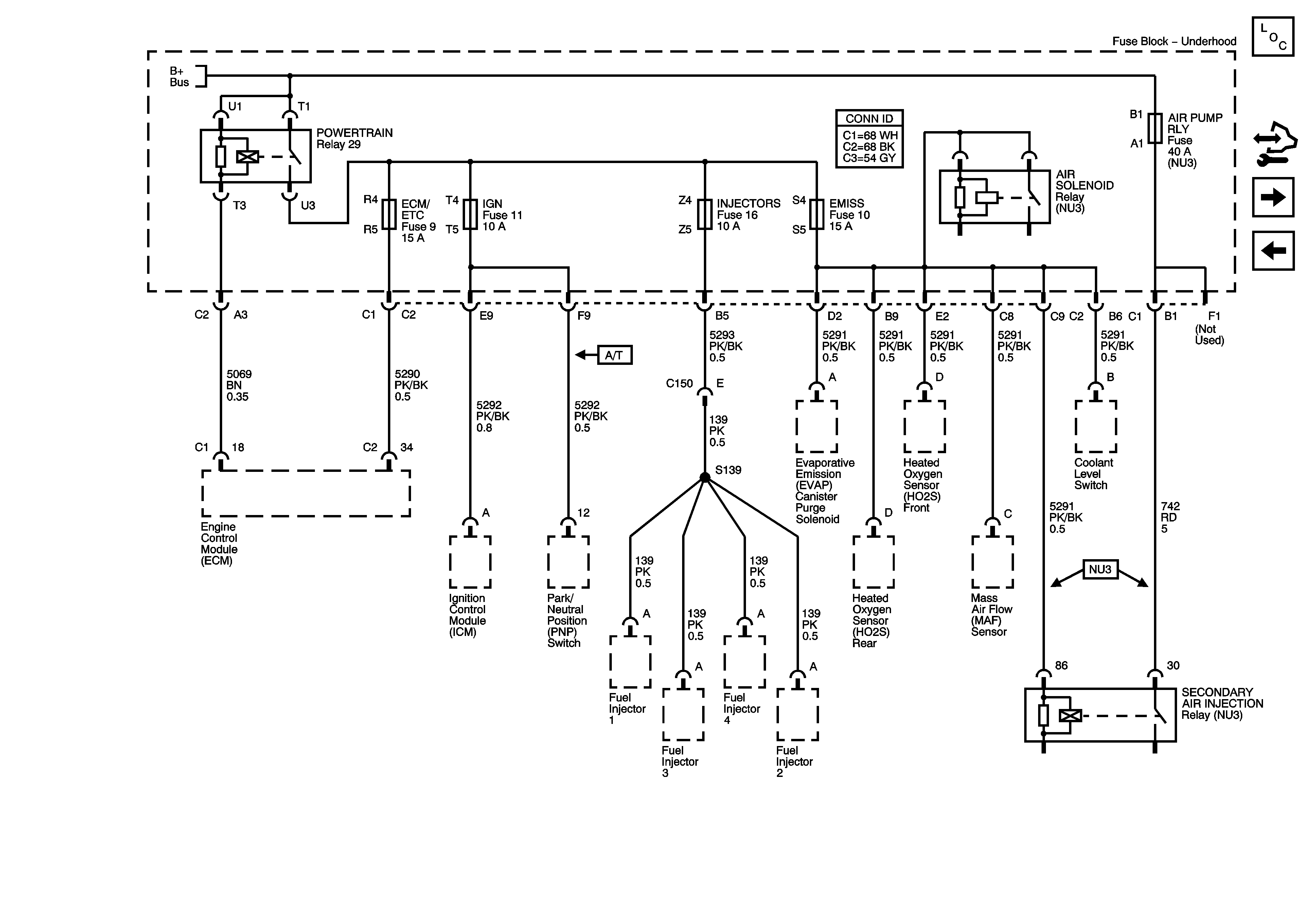
🢒 AIR PUMP RLY, ECM/ETC, EMISS, IGN, and INJECTOR Fuses, AIR SOLENOID, POWERTRAIN Relays - 2.2L
AIR PUMP RLY, ECM/ETC, EMISS, IGN, and INJECTOR Fuses, AIR SOLENOID, POWERTRAIN Relays - 2.2L
AIR PUMP RLY, ECM/ECT, EMISS, IGN and INJECTOR Fuse, AIR SOLENOID, POWERTRAIN Relays - 2.2L
Master Electrical Component List
Control Module References
COOLING FAN, ECM/ETC, EMISS, INJECTORS, and IGN Fuses, AFTER COOLER PUMP and POWERTRAIN Relays - 2.0L
AIR BAG/AOS, CLUTCH/BRAKE/AOS, and EPS/CRUISE Fuses
B+ Bus