GM Service Manual Online
For 1990-2009 cars only
Makes
🢒
Saturn
🢒
2007
🢒
ION
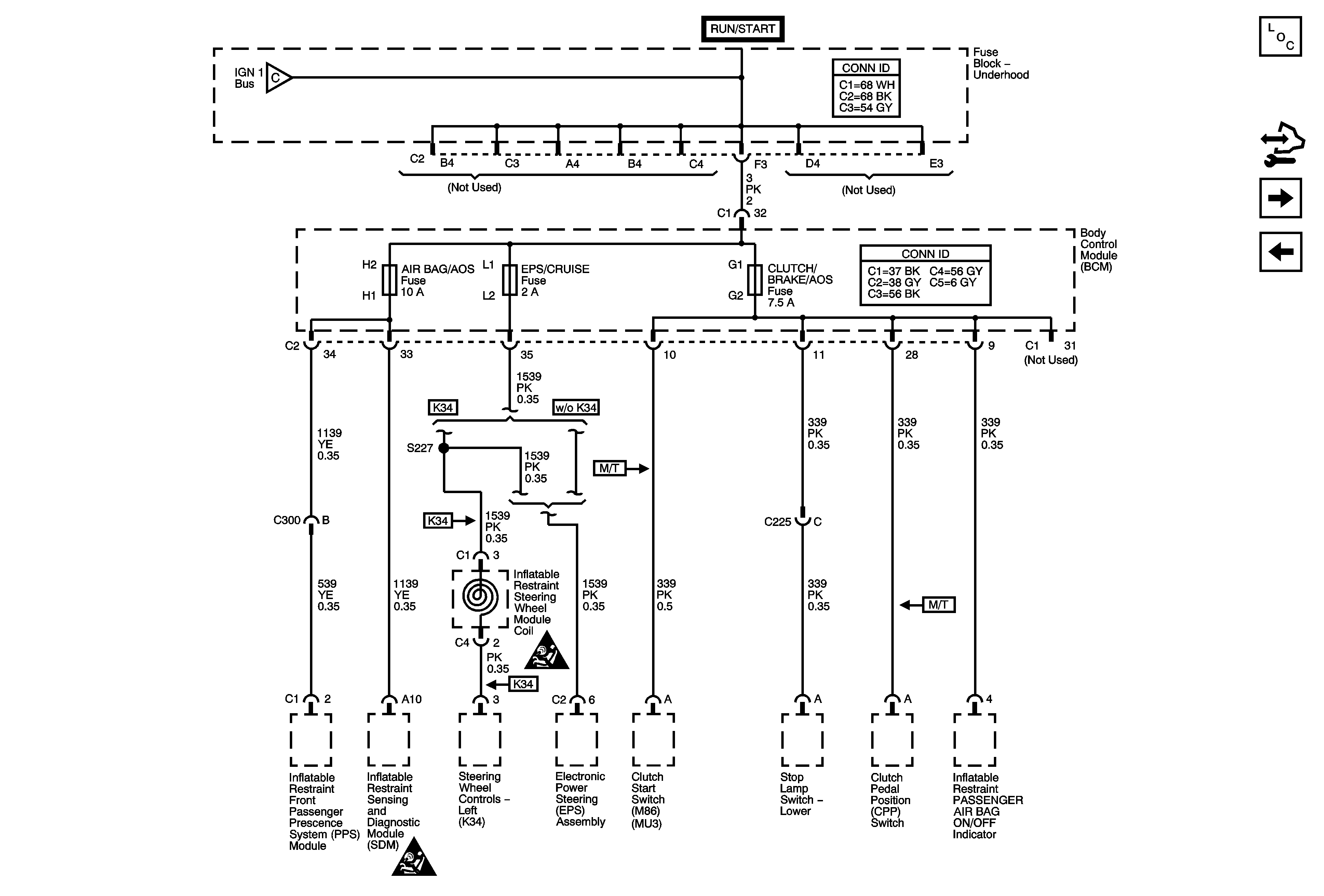
🢒 AIR BAG/AOS, CLUTCH/BRAKE/AOS, EPS/CRUISE Fuses
AIR BAG/AOS, CLUTCH/BRAKE/AOS, EPS/CRUISE Fuses
AIR BAG/AOS, CLUTCH/BRAKE/AOS, and EPS/CRUISE Fuses
Master Electrical Component List
Control Module References
AIR PUMP RLY, ECM/ETC, EMISS, IGN, and INJECTOR Fuse, AIR SOLENOID, POWERTRAIN Relays - 2.2L
ABS (IOA), BACK UP, BOOST, ECM, TRANS 1, and TRANS 2 Fuses
ABS (IOA), BACK UP, BOOST, ECM, TRANS 1, and TRANS 2 Fuses
Power and Grounding Schematic Icons
Power and Grounding Schematic Icons