GM Service Manual Online
For 1990-2009 cars only

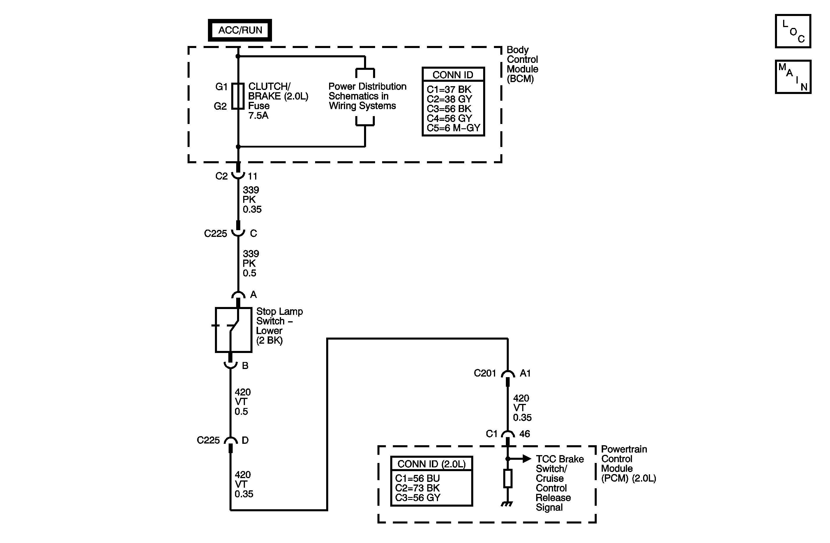
DTC P0724 2.0L - With Manual Transmission


Object Number: 1409665  Size: MF

Circuit Description

The cruise release switch is a normally closed switch. The stop lamp switch signal circuit is a normally open switch. When the brake pedal is released, the powertrain control module (PCM) detects a high voltage signal on the torque converter clutch (TCC) brake switch/cruise control release signal circuit and a low signal voltage signal on the stop lamp switch signal circuit.

DTC Descriptor

This diagnostic procedure supports the following DTC:

DTC P0724 Brake Switch Circuit High Voltage

Conditions for Running the DTC

    • The engine is ON.
    • The traction control system or the antilock brake system are not active and have not failed.
    • The vehicle has accelerated from 0 km/h (0 mph) to 60 km/h (37 mph) 3 times in one ignition cycle.
    • This diagnostic runs continuously once the conditions for running the DTC has been achieved.

Conditions for Setting the DTC

When the brake pedal is pressed, the PCM detects a high voltage signal on the stop lamp switch signal circuit and a high voltage signal on the TCC brake switch/cruise control release signal circuit.

Action Taken When the DTC Sets

    • The PCM stores the DTC information into memory when the diagnostic runs and fails.
    • The malfunction indicator lamp (MIL) will not illuminate.
    • The PCM records the operating conditions at the time the diagnostic fails. The PCM stores this information in the Failure Records.
    • The cruise control system is disabled.

Conditions for Clearing the DTC

    • A last test failed, or current DTC, clears when the diagnostic runs and does not fail.
    • A history DTC will clear after 40 consecutive warm-up cycles, if no failures are reported by this or any other non-emission related diagnostic.
    • Use a scan tool in order to clear the DTC.

Diagnostic Aids

In order to avoid a misdiagnosis, inspect for proper adjustment of the cruise control release switch. Refer to Cruise Release Switch Adjustment .

For an intermittent condition, refer to Testing for Intermittent Conditions and Poor Connections .

Step

Action

Yes

No

Schematic Reference: Cruise Control Schematics

Connector End View Reference: Lighting Systems Connector End Views

1

Did you perform the Diagnostic System Check - Vehicle?

Go to Step 2

Go to Diagnostic System Check - Vehicle

2

  1. Turn the ignition OFF.
  2. Disconnect the cruise release switch.
  3. Turn the ignition ON, with the engine OFF.
  4. Connect a test lamp between the torque converter clutch (TCC) brake switch/cruise control release signal circuit and a good ground.

Does the test lamp illuminate?

Go to Step 3

Go to Step 4

3

Test the TCC brake switch/cruise control release signal circuit for a short to voltage. Refer to Circuit Testing and Wiring Repairs .

Did you find and correct the condition?

Go to Step 8

Go to Step 5

4

Inspect for poor connections at the harness connector of the cruise release switch. Refer to Testing for Intermittent Conditions and Poor Connections and Connector Repairs .

Did you find and correct the condition?

Go to Step 8

Go to Step 6

5

Inspect for poor connections at the harness connector of the powertrain control module (PCM). Refer to Testing for Intermittent Conditions and Poor Connections and Connector Repairs .

Did you find and correct the condition?

Go to Step 8

Go to Step 7

6

Replace the cruise release switch. Refer to Cruise Control Release Switch Replacement .

Did you complete the repair?

Go to Step 8

--

7

Replace the PCM. Refer to Control Module References for replacement, setup, and programming.

Did you complete the replacement?

Go to Step 8

--

8

  1. Use a scan tool in order to clear the DTCs.
  2. Operate the vehicle within the Conditions for Running the DTC.

Does the DTC reset?

Go to Step 2

System OK

DTC P0724 non 2.0L - With Manual Transmission

Circuit Description

The cruise release switch is a normally closed switch. The stop lamp switch signal circuit is a normally open switch. When the brake pedal is released, the engine control module (ECM) detects a high voltage signal on the torque converter clutch (TCC) brake switch/cruise control release signal circuit and a low signal voltage signal on the stop lamp switch signal circuit.

DTC Descriptor

This diagnostic procedure supports the following DTC:

DTC P0724 Brake Switch Circuit High Voltage

Conditions for Running the DTC

    • The engine is ON.
    • The traction control system or the antilock brake system are not active and have not failed.
    • The vehicle has accelerated from 0 km/h (0 mph) to 60 km/h (37 mph) 3 times in one ignition cycle.
    • This diagnostic runs continuously once the conditions for running the DTC has been achieved.

Conditions for Setting the DTC

When the brake pedal is pressed, the PCM detects a high voltage signal on the stop lamp switch signal circuit and a high voltage signal on the TCC brake switch/cruise control release signal circuit.

Action Taken When the DTC Sets

    • The ECM stores the DTC information into memory when the diagnostic runs and fails.
    • The malfunction indicator lamp (MIL) will not illuminate.
    • The ECM records the operating conditions at the time the diagnostic fails. The ECM stores this information in the Failure Records.
    • The cruise control system is disabled.

Conditions for Clearing the DTC

    • A last test failed, or current DTC, clears when the diagnostic runs and does not fail.
    • A history DTC will clear after 40 consecutive warm-up cycles, if no failures are reported by this or any other non-emission related diagnostic.
    • Use a scan tool in order to clear the DTC.

Diagnostic Aids

In order to avoid a misdiagnosis, inspect for proper adjustment of the cruise control release switch. Refer to Cruise Release Switch Adjustment .

For an intermittent condition, refer to Testing for Intermittent Conditions and Poor Connections .

Step

Action

Yes

No

Schematic Reference: Cruise Control Schematics

Connector End View Reference: Lighting Systems Connector End Views

1

Did you perform the Diagnostic System Check - Vehicle?

Go to Step 2

Go to Diagnostic System Check - Vehicle

2

  1. Turn the ignition OFF.
  2. Disconnect the cruise release switch.
  3. Turn the ignition ON, with the engine OFF.
  4. Connect a test lamp between the torque converter clutch (TCC) brake switch/cruise control release signal circuit and a good ground.

Does the test lamp illuminate?

Go to Step 3

Go to Step 4

3

Test the TCC brake switch/cruise control release signal circuit for a short to voltage. Refer to Circuit Testing and Wiring Repairs .

Did you find and correct the condition?

Go to Step 8

Go to Step 5

4

Inspect for poor connections at the harness connector of the cruise release switch. Refer to Testing for Intermittent Conditions and Poor Connections and Connector Repairs .

Did you find and correct the condition?

Go to Step 8

Go to Step 6

5

Inspect for poor connections at the harness connector of the engine control module (ECM). Refer to Testing for Intermittent Conditions and Poor Connections and Connector Repairs .

Did you find and correct the condition?

Go to Step 8

Go to Step 7

6

Replace the cruise release switch. Refer to Cruise Control Release Switch Replacement .

Did you complete the repair?

Go to Step 8

--

7

Replace the ECM. Refer to Control Module References for replacement, setup, and programming.

Did you complete the replacement?

Go to Step 8

--

8

  1. Use a scan tool in order to clear the DTCs.
  2. Operate the vehicle within the Conditions for Running the DTC.

Does the DTC reset?

Go to Step 2

System OK