GM Service Manual Online
For 1990-2009 cars only

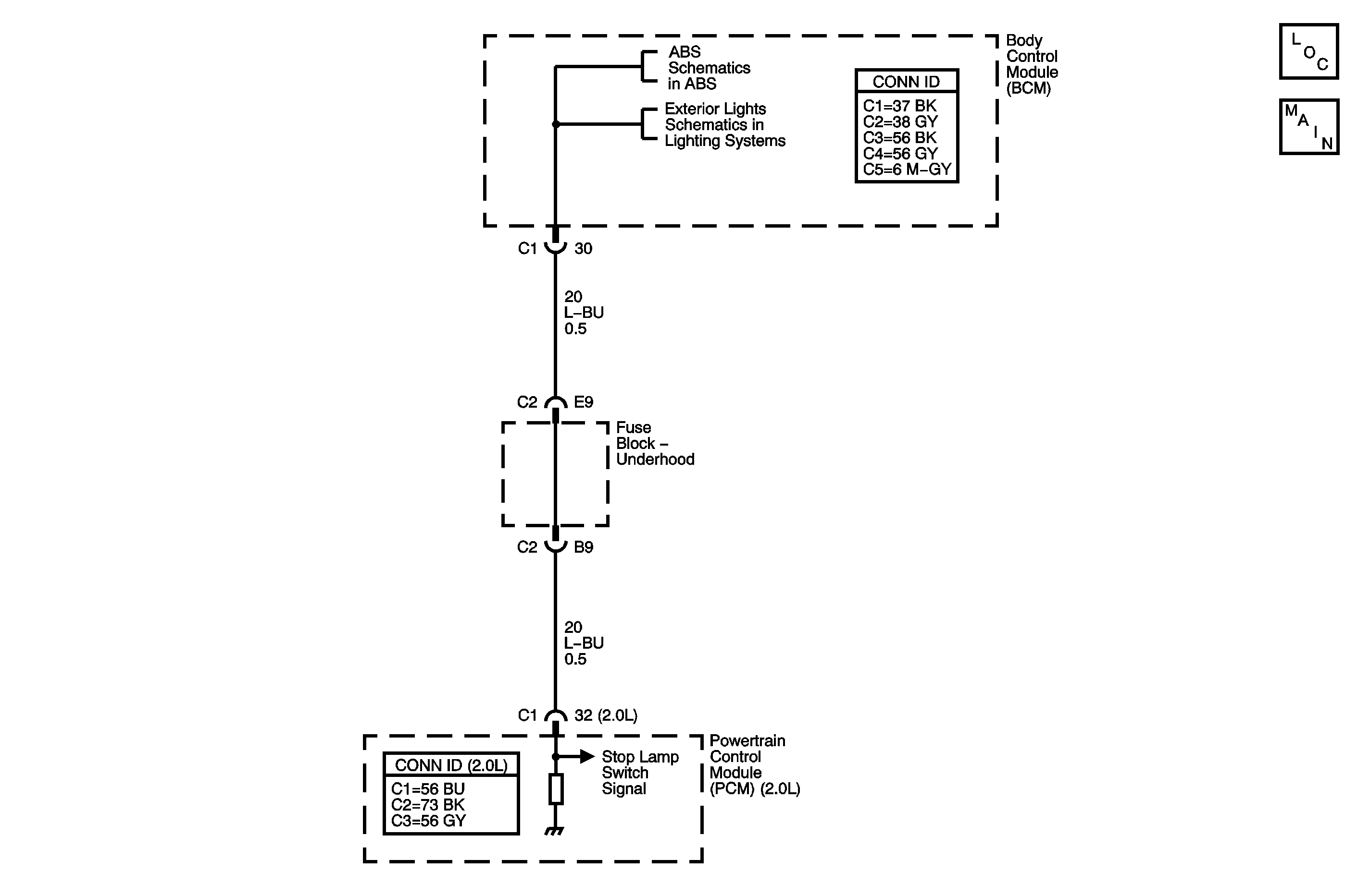
DTC P1574 2.0L


Object Number: 1409666  Size: MF

Circuit Description

The cruise release switch is a normally closed switch. The stop lamp switch signal circuit is a normally open switch. When the brake pedal is released, the powertrain control module (PCM) detects a high voltage signal on the torque converter clutch (TCC) brake switch/cruise control release signal circuit and a low signal voltage signal on the stop lamp switch signal circuit.

DTC Descriptor

This diagnostic procedure supports the following DTC:

DTC P1574 Stoplamp Switch Circuit

Conditions for Running the DTC

    • The engine is ON.
    • The traction control system or the antilock brake system are not active and have not failed.
    • The vehicle has accelerated from 0 km/h (0 mph) to 60 km/h (37 mph) 3 times in one ignition cycle.
    • This diagnostic runs continuously once the conditions for running the DTC has been achieved.

Conditions for Setting the DTC

When the brake pedal is pressed, the PCM detects a low voltage signal on the stop lamp switch signal circuit and a low voltage signal on the TCC brake switch/cruise control release signal circuit.

Action Taken When the DTC Sets

    • The PCM stores the DTC information into memory when the diagnostic runs and fails.
    • The malfunction indicator lamp (MIL) will not illuminate.
    • The PCM records the operating conditions at the time the diagnostic fails. The PCM stores this information in the Failure Records.
    • The cruise control system is disabled.

Conditions for Clearing the DTC

    • A last test failed, or current DTC, clears when the diagnostic runs and does not fail.
    • A history DTC will clear after 40 consecutive warm-up cycles, if no failures are reported by this or any other non-emission related diagnostic.
    • Use a scan tool in order to clear the DTC.

Diagnostic Aids

In order to avoid a misdiagnosis, perform the following:

    • Inspect for proper operation of the stop lamps. Refer to Exterior Lighting Systems Description and Operation .
    • Inspect for proper adjustment of the stop lamps. Refer to Stop Lamp Switch Adjustment .
    • For an intermittent condition, refer to Testing for Intermittent Conditions and Poor Connections .

Step

Action

Yes

No

Schematic Reference: Cruise Control Schematics

Connector End View Reference: Lighting Systems Connector End Views

1

Did you perform the Diagnostic System Check - Vehicle?

Go to Step 2

Go to Diagnostic System Check - Vehicle

2

Do the stop lamps work properly?

Go to Step 3

Go to Stop Lamps Inoperative

3

Test the stop lamp switch signal circuit for an open or for a high resistance between the body control module (BCM) and the powertrain control module (PCM). Refer to Circuit Testing and Wiring Repairs .

Did you find and correct the condition?

Go to Step 6

Go to Step 4

4

Inspect for poor connections at the harness connector of the PCM. Refer to Testing for Intermittent Conditions and Poor Connections and Connector Repairs .

Did you find and correct the condition?

Go to Step 6

Go to Step 5

5

Replace the PCM. Refer to Control Module References for replacement, setup, and programming.

Did you complete the replacement?

Go to Step 6

--

6

  1. Use a scan tool in order to clear the DTCs.
  2. Operate the vehicle within the Conditions for Running the DTC.

Does the DTC reset?

Go to Step 2

System OK

DTC P1574 non 2.0L

Circuit Description

The cruise release switch is a normally closed switch. The stop lamp switch signal circuit is a normally open switch. When the brake pedal is released, the engine control module (ECM) detects a high voltage signal on the torque converter clutch (TCC) brake switch/cruise control release signal circuit and a low signal voltage signal on the stop lamp switch signal circuit.

DTC Descriptor

This diagnostic procedure supports the following DTC:

DTC P1574 Stoplamp Switch Circuit

Conditions for Running the DTC

    • The engine is ON.
    • The traction control system or the antilock brake system are not active and have not failed.
    • The vehicle has accelerated from 0 km/h (0 mph) to 60 km/h (37 mph) 3 times in one ignition cycle.
    • This diagnostic runs continuously once the conditions for running the DTC has been achieved.

Conditions for Setting the DTC

When the brake pedal is pressed, the ECM detects a low voltage signal on the stop lamp switch signal circuit and a low voltage signal on the TCC brake switch/cruise control release signal circuit.

Action Taken When the DTC Sets

    • The ECM stores the DTC information into memory when the diagnostic runs and fails.
    • The malfunction indicator lamp (MIL) will not illuminate.
    • The ECM records the operating conditions at the time the diagnostic fails. The ECM stores this information in the Failure Records.
    • The cruise control system is disabled.

Conditions for Clearing the DTC

    • A last test failed, or current DTC, clears when the diagnostic runs and does not fail.
    • A history DTC will clear after 40 consecutive warm-up cycles, if no failures are reported by this or any other non-emission related diagnostic.
    • Use a scan tool in order to clear the DTC.

Diagnostic Aids

In order to avoid a misdiagnosis, perform the following:

    • Inspect for proper operation of the stop lamps. Refer to Exterior Lighting Systems Description and Operation .
    • Inspect for proper adjustment of the stop lamps. Refer to Stop Lamp Switch Adjustment .
    • For an intermittent condition, refer to Testing for Intermittent Conditions and Poor Connections .

Step

Action

Yes

No

Schematic Reference: Cruise Control Schematics

Connector End View Reference: Lighting Systems Connector End Views

1

Did you perform the Diagnostic System Check - Vehicle?

Go to Step 2

Go to Diagnostic System Check - Vehicle

2

Do the stop lamps work properly?

Go to Step 3

Go to Stop Lamps Inoperative

3

Test the stop lamp switch signal circuit for an open or for a high resistance between the body control module (BCM) and the engine control module (ECM). Refer to Circuit Testing and Wiring Repairs .

Did you find and correct the condition?

Go to Step 6

Go to Step 4

4

Inspect for poor connections at the harness connector of the ECM. Refer to Testing for Intermittent Conditions and Poor Connections and Connector Repairs .

Did you find and correct the condition?

Go to Step 6

Go to Step 5

5

Replace the ECM. Refer to Control Module References for replacement, setup, and programming.

Did you complete the replacement?

Go to Step 6

--

6

  1. Use a scan tool in order to clear the DTCs.
  2. Operate the vehicle within the Conditions for Running the DTC.

Does the DTC reset?

Go to Step 2

System OK