GM Service Manual Online
For 1990-2009 cars only

Object Number: 891632  Size: MF

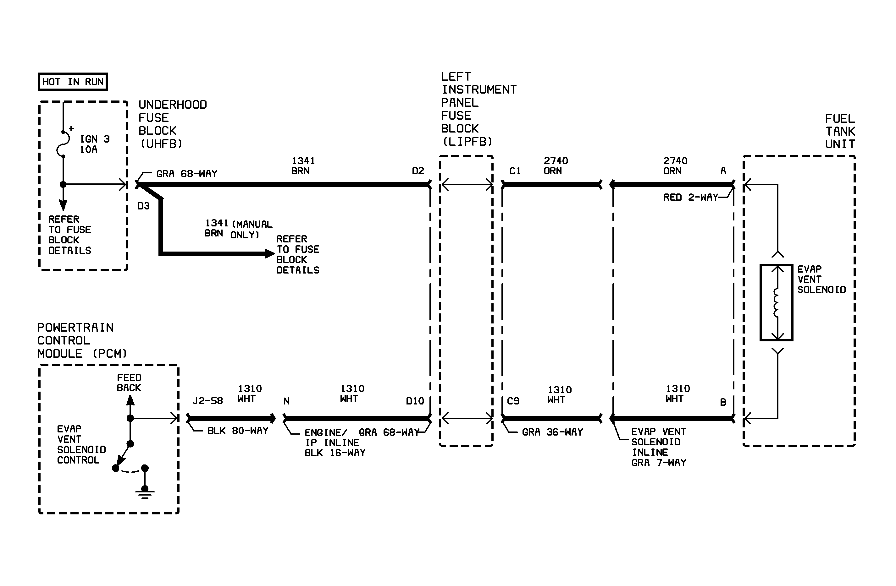
Circuit Description

The evaporative emission (EVAP) system is used to store fuel vapors as to reduce the amount of unburned fuel from escaping into the atmosphere. The EVAP system consists of the EVAP canister, fuel tank pressure sensor, EVAP lines and hoses, EVAP purge solenoid (normally closed), EVAP service port, EVAP vent solenoid (normally open), fuel tank, and PCM. The PCM monitors the EVAP system for circuit faults in the fuel tank pressure sensor, EVAP purge solenoid and EVAP vent solenoid circuits. The PCM also monitors the EVAP system for small and large leaks. During DTC P0446 diagnostic, the EVAP purge solenoid is commanded to a fixed duty cycle (pulses valve) and the EVAP vent solenoid is commanded On (closed) in order to build vacuum. Once vacuum is obtained, the EVAP vent solenoid is commanded Off and the vacuum should decrease rapidly. DTC P0446 sets when the vacuum decay is too slow indicating a blocked vent system.

Conditions for Setting the DTC

DTC P0446 will set if fuel tank pressure sensor voltage is less than 0.70 volts during the P0446 diagnostic test indicating a blocked vent system when:

    • Condition exists for longer than 1 minute and 40 seconds
    • EVAP vent solenoid is commanded Off (open)
    • EVAP purge solenoid is commanded to PWM (open)
    • Fuel level is between 15-85%
    • Baro is greater than 75 kPa
    • ECT and IAT at engine startup are between 4°C-30°C (39°F-86°F)
    • ECT and IAT are within 8°C (46°F) of each other
    • TP angle is between 7 and 35%
    • Vehicle speed is less than 113 km/h (70 mph)
    • No ECT, fuel tank pressure, IAT, MAP, O2S-1, PCM internal fault, TP or VSS DTCs have been set

DTC P0446 diagnostic is run once (usually for 30 seconds if no faults exist) during the EVAP diagnostic test once the above conditions have been met.

P0446 is a (type A) DTC

Diagnostic Aids

Important: If DTC P1640 is set, diagnose that DTC first. A short to ground causing the EVAP vent solenoid On, will cause the vent valve to close. This will cause DTC P0446 to set.

Important: The PCM uses the fuel tank pressure sensor to detect the amount of vacuum pulled on the EVAP system during the leak diagnostic tests. Make sure the fuel pressure sensor is not skewed by verifying FUEL TANK PRESS. SENSOR on Scan tool is between 2.35 and 2.85 volts with ignition On and fuel cap removed.

Check the following for causes of a blocked vent system:

    • EVAP vent solenoid blocked or stuck valve
    • Vent hose plugged, kinked or pinched
    • EVAP canister restricted

DTC P0446


Object Number: 874438  Size: FP