GM Service Manual Online
For 1990-2009 cars only

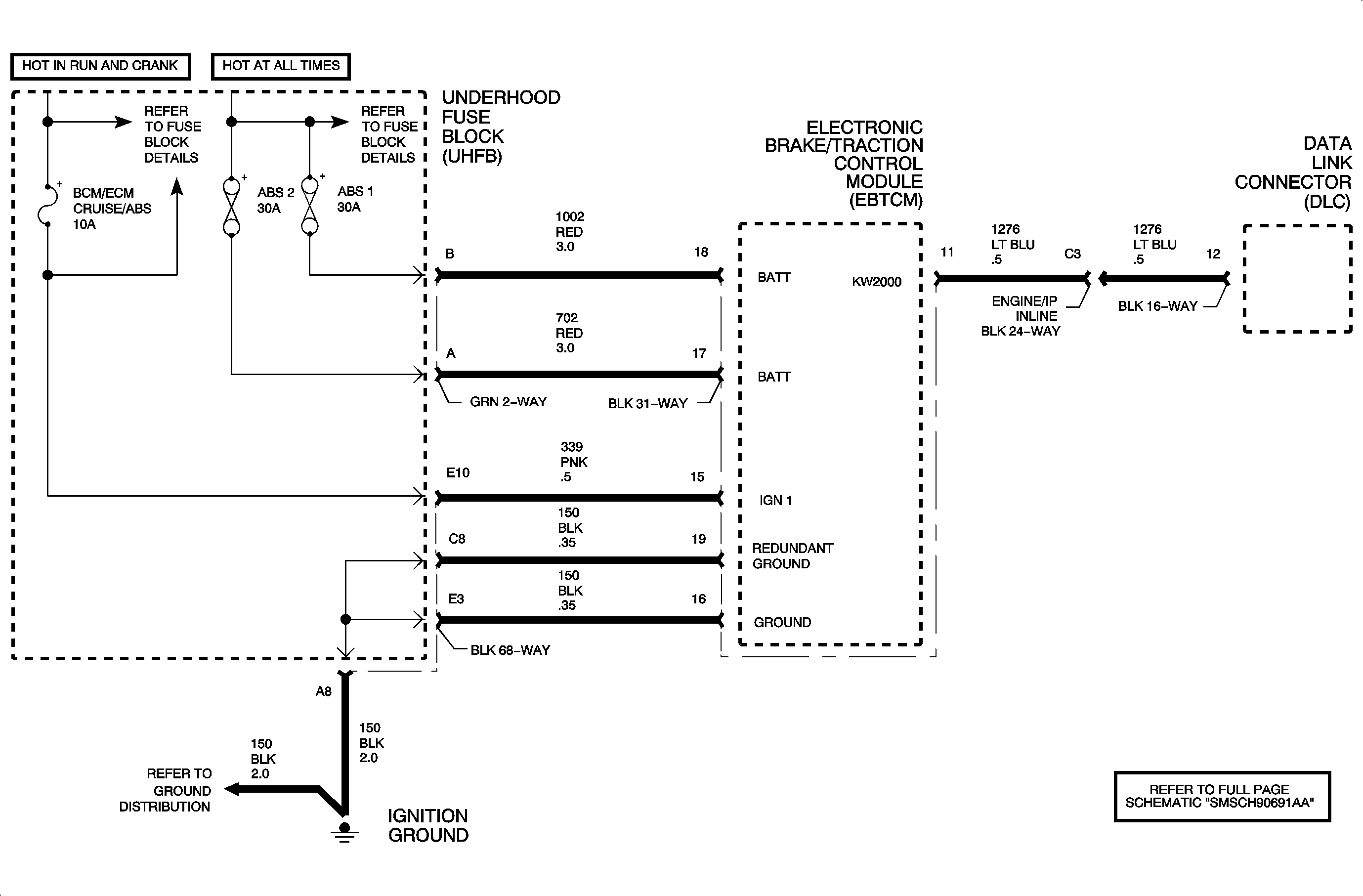
Object Number: 896152  Size: MF

Circuit Description

The electronic brake control module (EBCM) is required to operate within a specified range of voltage to function properly. During antilock brake system (ABS) and traction control system (TCS) operation, there are current requirements that will cause the voltage to drop. Because of this, voltage is monitored out of ABS/TCS control to indicate a good charging system condition, and also during ABS/TCS control when voltage may drop significantly. The EBCM also monitors for high voltage conditions which could damage the EBCM.

Conditions for Running the DTC

The vehicle speed is above 6.4 km/h (4 mph)

Conditions for Setting the DTC

The battery voltage drops below 9.4 volts or exceeds 17.4 volts

Action Taken When the DTC Sets

    • The ABS telltale will be turned ON.
    • The ABS control module will disable the ABS, the TCS, and the DRP.

Conditions for Clearing the DTC

The Conditions for Setting the DTC are no longer present and you use the scan tool Clear DTCs function.

Diagnostic Aids

Important: If the battery voltage returns to normal levels 9.4-17.4 volts within the same ignition cycle, the ABS control module will enable ABS/TCS/DRP and will turn the ABS telltale off.

Use the scan tool to observe the battery voltage display.

Refer to Starting/Charging section the appropriate Engine service manual for charge circuit diagnosis.

Step

Action

Values

Yes

No

Schematic Reference: Antilock Brake System Schematics

Connector End View Reference: Antilock Brake System Connector End Views

1

Did you performs the ABS Diagnostic System Check?

--

Go to Step 2

Go to Diagnostic System Check - ABS

2

  1. Use a scan tool in order to clear the DTCs.
  2. Turn OFF the ignition for 5 seconds.
  3. Start the engine.

Does the DTC set?

--

Go to Step 3

Go to Diagnostic Aids

3

With the engine running turn on all accessories.

Use the scan tool in order to monitor the battery voltage in the ABS data display.

Is the battery voltage below the specified value?

12.6 V

Go to Step 4

Go to Diagnostic Aids

4

Using the scan tool monitor the battery voltage in the ECM/PCM data list.

Is the battery voltage below the specified value?

12.6 V

Go to Charging system

Go to Step 5

5

Test the battery positive voltage circuits for an open. Refer to Circuit Testing and Wiring Repairs in Wiring Systems.

Did you find and correct the condition?

--

Go to Step 7

Go to Step 6

6

Important: Following EBCM replacement, perform the set-up procedure for the EBCM and perform the Yaw Rate Reference Table Reset Procedure. Use the scan tool to perform the Tire Size Calibration procedure.

Replace the EBCM. Refer to Electronic Brake Control Module Replacement .

Did you complete the replacement?

--

Go to Step 7

--

7

  1. Use the scan tool to Clear the DTC.
  2. Turn OFF the ignition for 5 seconds.
  3. Turn ON the ignition.
  4. Operate the vehicle within the Conditions for Running the DTC as specified in the supporting text.

Does the DTC reset?

--

Go to Step 2

System OK