GM Service Manual Online
For 1990-2009 cars only

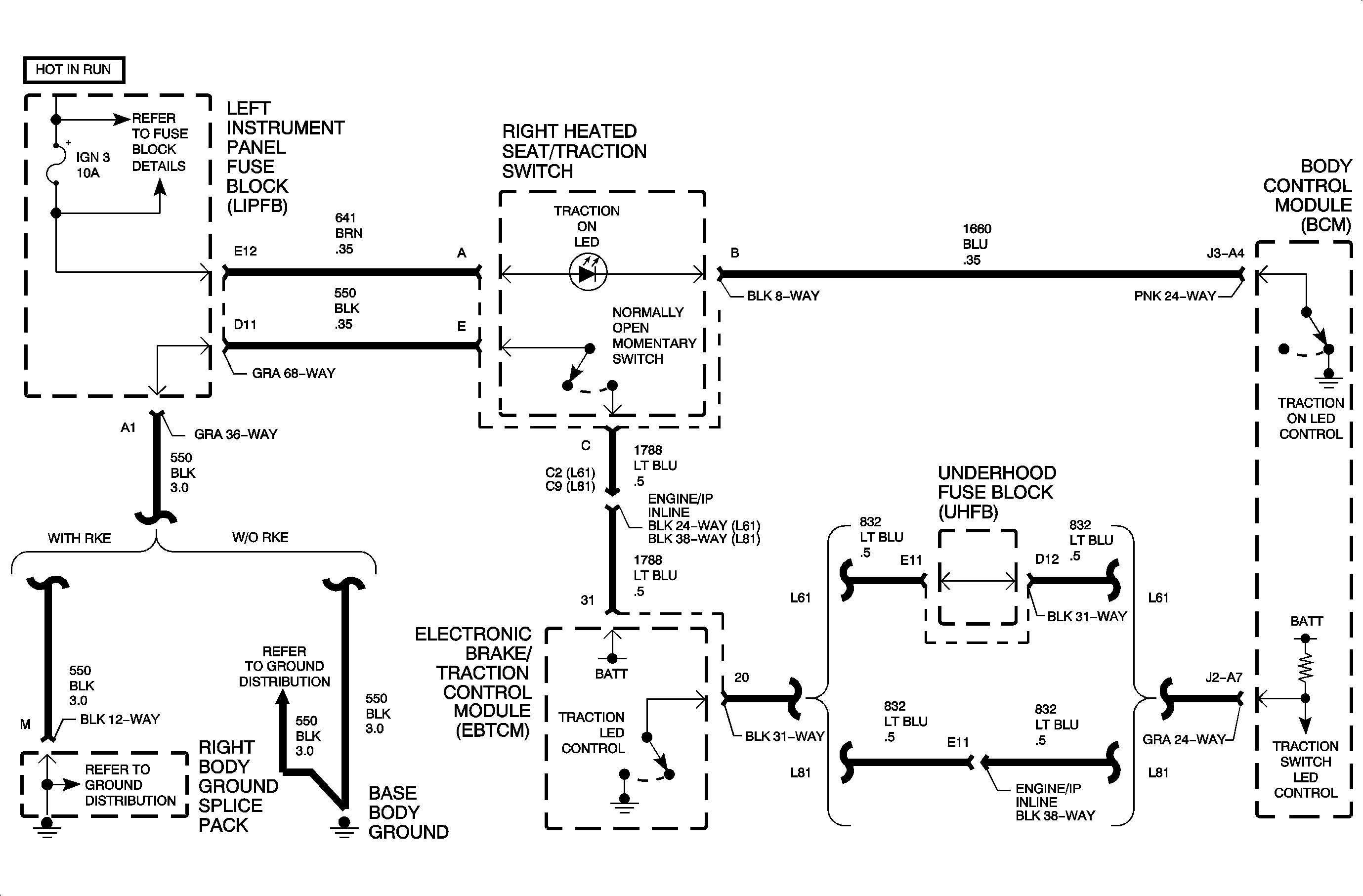
Object Number: 889908  Size: MF

Circuit Description

When TCS is enabled, the TRAC LED request from the EBTCM to the BCM (circuit 832) is at battery voltage and the BCM grounds circuit 1660. This action turns the TRAC LED On, indicating that TCS is available.

When the driver disables TCS by depressing the TRAC switch, the EBTCM grounds circuit 832. In response, the BCM turns the LED Off by removing the ground on circuit 1660.

DTC Parameters

DTC B0827 will set:

    • If the driver presses the TRAC switch with the ignition in run and circuit 1660 is open or shorted to ground.
    • If circuit 641 is open.

Important: The EBTCM does not test circuit 832 for malfunction.

Important: DTC B0827 will not illuminate a telltale.

Two different failure modes can exist when B0827 is set:

    • If the TRAC LED is Off, check circuit 641 for open.
    • If the TRAC LED is always On, check circuit 1660 for short to ground.

Diagnostic Aids

Inspect wiring, components, and connector for the following conditions:

    • Proper connection
    • Backed-out terminals
    • Broken connector locks
    • Corrosion in connectors/terminals
    • Burned, chafed or pinched wires
    • Broken wire inside insulation
    • Loose components

DTC B0827


Object Number: 888054  Size: FP