GM Service Manual Online
For 1990-2009 cars only

Object Number: 889702  Size: MF

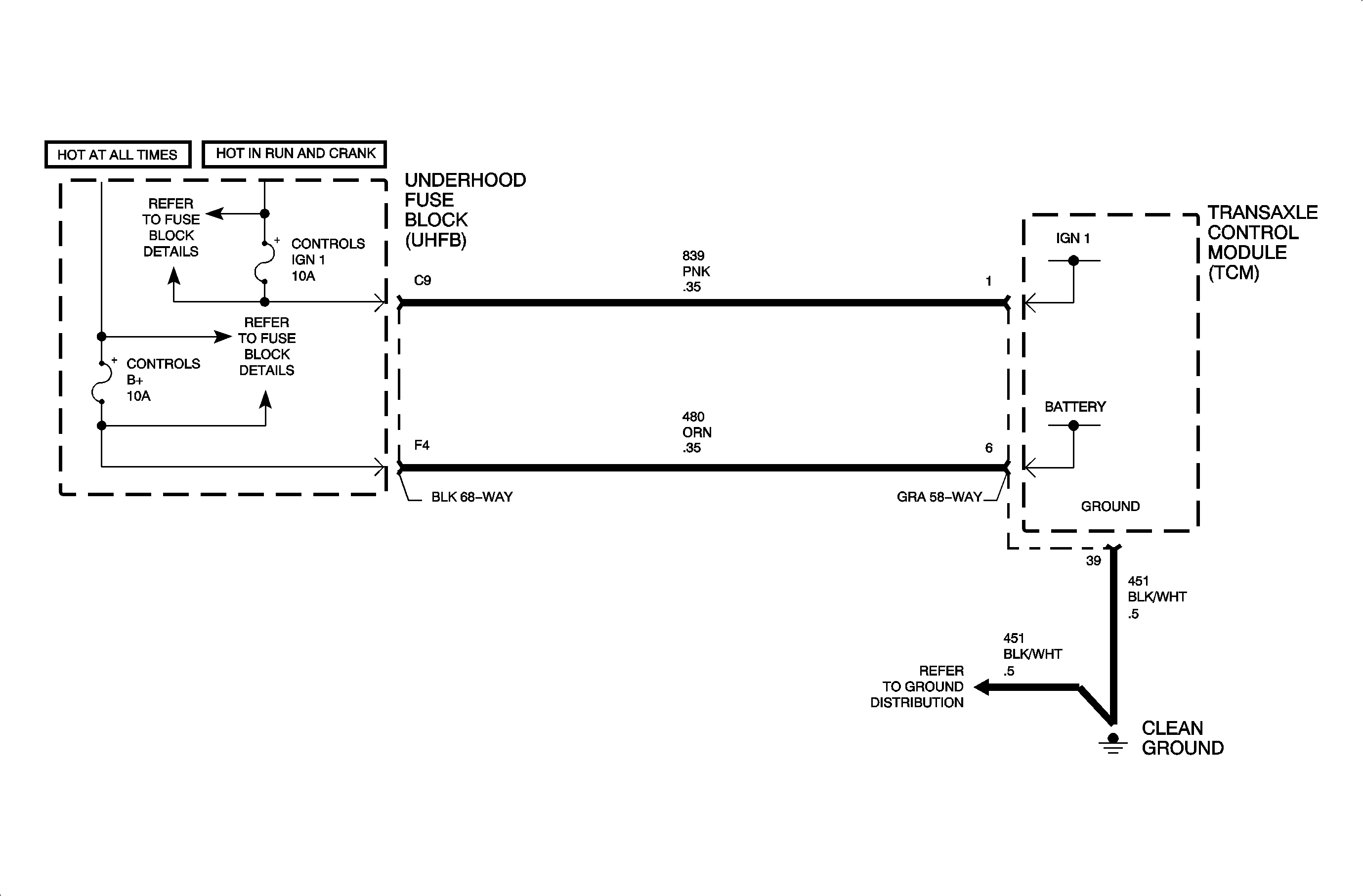
Circuit Description

The transaxle control module (TCM) is powered from fused battery and ignition 1 voltage supplied through the underhood fuse block. The TCM monitors system voltage on the ignition feed and fused battery circuit. When the low voltage conditions that set DTC P0562 are present, the operation of some vehicle systems and components may be affected. If the system voltage is lower than the TCM is capable of operating properly under, DTC P0562 sets.

Conditions for Setting the DTC

DTC P0562 will set if:

    • System voltage is less than 7.3 volts at -40° C (-40°F).
    • System voltage is less than 10 volts at 150° C (302°F).
    • Engine speed greater than 1500 rpm

P0562 is a type A DTC.

Diagnostic Aids

Check for the following conditions:

Poor connection or damaged harness. Inspect the wiring harness for damage. If the harness appears to be OK, observe the IGNITION 1 voltage display on the Scan tool while moving connectors and wiring related to the TCM, dash harness, and engine harness. A change in display will indicate the location of fault.

If DTC P0562 cannot be duplicated, reviewing the Fail Records vehicle mileage since the diagnostic test last failed may help determine how often the condition that caused the DTC to be set occurs. This may assist in diagnosing the condition.

For complete information and additional diagnostics for the vehicle charging system, refer to the "Starting/Charging" section in the Engine service manual.

DTC P0562


Object Number: 887926  Size: FP