GM Service Manual Online
For 1990-2009 cars only

Circuit Description

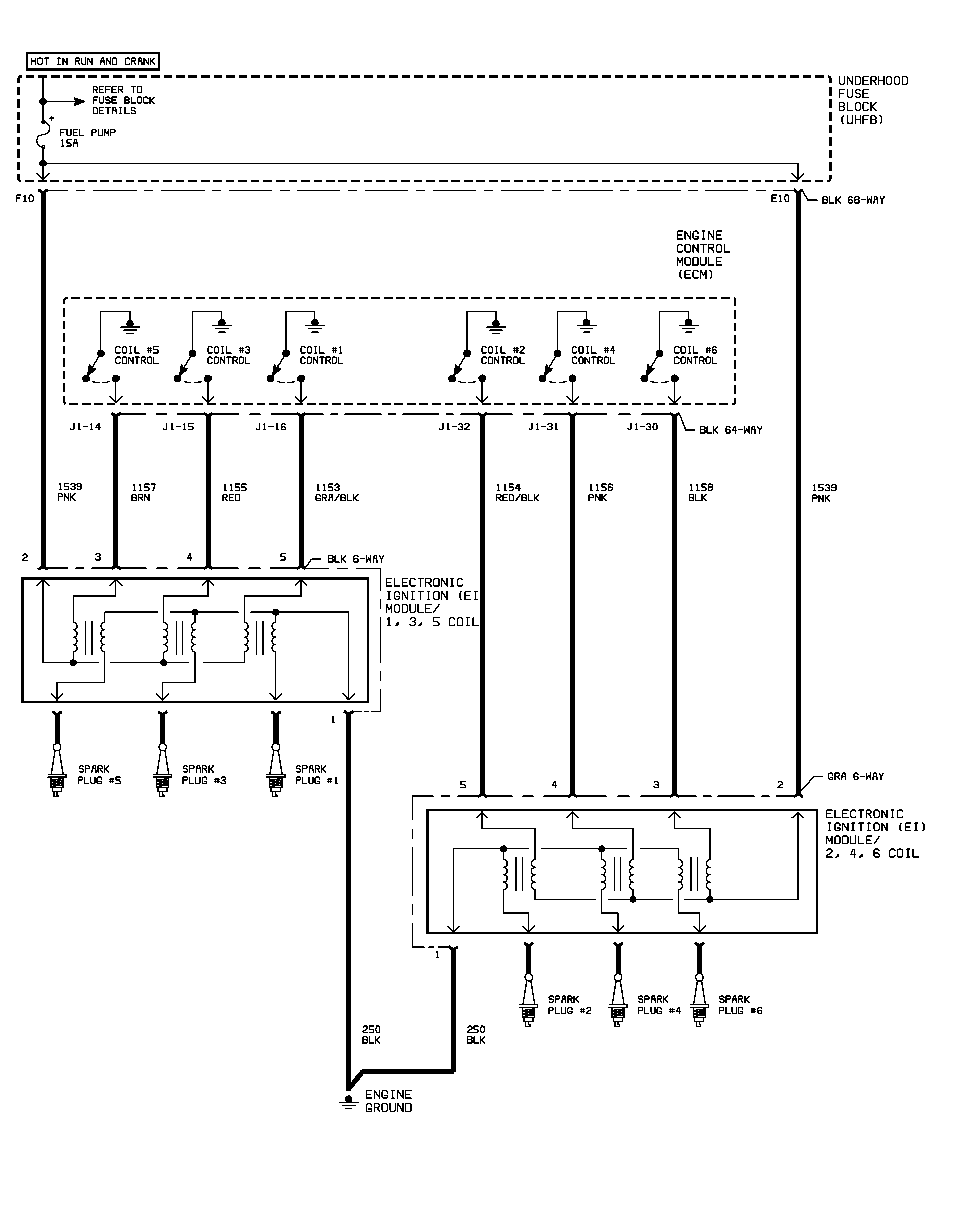
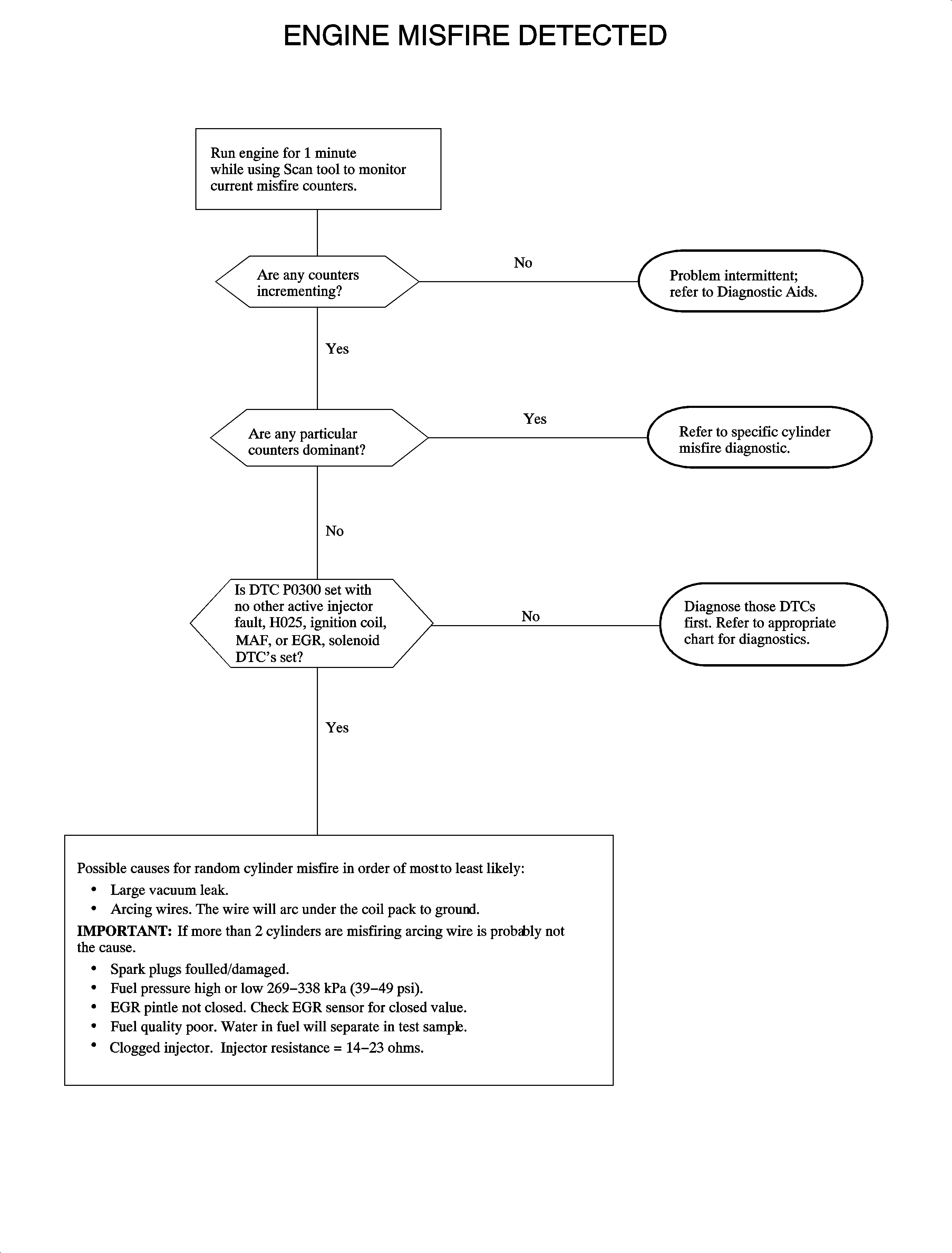
The crankshaft position (CKP) sensor sends pulses to the ECM as the 58 reluctor wheel teeth rotate past the sensor. The ECM knows the acceleration and deceleration the crankshaft should experience under different conditions, and can constantly determine its speed of rotation. A misfire causes an unexpected change in the crankshaft speed. The ECM also continuously calculates the crankshaft position from the CKP sensor signals. This information is used to determine which cylinder is misfiring so that the ECM can increment the appropriate misfire counter and set the appropriate DTC. If the ECM is unable to determine that a specific cylinder is misfiring, or if the misfire is random and on multiple cylinders, DTC P0300 will set.

DTC Parameters

DTC P0300 will set when a misfire has been detected along with the following events:

    • Engine speed between 520 and 6520 rpm
    • Traction control is not active
    • Engine has been running more than 5 seconds
    • IAT greater than -8°C (17°F)
    • EVAP diagnosis is not active
    • No TP or CKP codes are set

If 15 emission related misfires are detected out of 1000 cam revolutions, a DTC will set, and the MIL will turn on.

If 19 catalyst damaging misfires are detected out of 200 cam revolutions, a DTC will set, the MIL will start flashing, and the injector will be turned off.

Important: The misfire diagnostics are continually checked with the engine running when the above conditions have been met.

P0300 is a (type A) DTC.

Diagnostic Aids

When attempting to diagnose an intermittent problem, use the scan tool to review malfunction history diagnostic information. This supplemental data can be used to duplicate a problem.

If an injector, IC, EGR, or MAF DTC is active and the misfire DTC is active, diagnose the other DTCs first.

Use the scan tool to monitor active misfire counts. If a specific cylinder misfires under certain load conditions, it may be duplicated in the stall.

    • Injector resistance = 14-23 ohms
    • Coil Pack Secondary Resistance = 8 to 15 K ohms
    • Wire Positioning on Coils - 1,3,5 2,4,6

Object Number: 905697  Size: FP

Object Number: 888173  Size: FP