GM Service Manual Online
For 1990-2009 cars only

Engine Cranks But Does Not Start Chart 1 of 3

Engine Cranks But Won't Start - (Chart 1 Of 3)

In order to correctly diagnose a no start condition, battery voltage must be above 11 volts and the engine must be cranking at normal cranking speed (above 200 RPM). Fuel level and fuel quality in the fuel tank should be checked (do not solely rely on the fuel gage for a level reading). When the ignition is turned to crank, the BCM will check the voltage code from the Passlock sensor. If the voltage code is not received within a certain amount of time or does the match the BCM voltage code, the BCM will send a "fuel disable command" to the ECM over the CAN link. The SECURITY telltale will flash and the engine will not be allowed to start. If the BCM recieves the correct voltage code from the Passlock sensor that it has stored in memory, the BCM will send a password over the controller area network (CAN) link to the ECM. If the ECM password does not match the BCM password; or if the ECM does not receive a password from the BCM, it will NOT allow the engine to start, or allow it to start then stall within four seconds. The SECURITY telltale will flash for 10 minutes if the ECM receives no password; an incorrect password or a fuel disable command. If the password to the ECM is correct, the engine will operate normally. The password is sent continuously by the BCM to the ECM during run mode. If the password becomes lost or incorrect during the drive cycle, the vehicle will be allowed to start on succeeding ignition cycles without the aid of Passlock and the SECURITY telltale will be On steady. This mode is called fail enable mode.

Diagnostic Aids

BCM or ECM DTCs that may cause a no start and should be diagnosed first:

    • U-type communication: U1000, U1016, U1064, U2105 or U2107
    • BCM/ECM Passlock/security system: P1630, P1631, P1632, B1372, B1382, B2947, B2948, B2957, B2958 or B2960
    • ECM internal fault: P0601, P0602, P0603, P0604 or P0606
    • Fuel pump relay coil circuit: P0230, P0231, P0232, P0627, P0628 or P0629
    • Crankshaft position sensor circuit: P0335
    • Camshaft position sensor circuit: P0341, P0342 or P0343

If no crankshaft position (CKP) sensor signal is detected during engine crank when a valid camshaft sensor signal is received, P0335 will set. Fuel and spark will NOT be enabled.

If a MAF circuit fault occurs, the ECM will use the MAP, engine speed and TP angle to calculate engine airflow. The engine will start if this condition occurs.

Important:  The ECM uses the MAP sensor to determine barometric pressure for initial starting, as well as for EGR system diagnostics. If this sensor value is skewed, the engine may experience a hard/no start condition. Once the engine is started, the ECM will eventually use a corrected baro value. This may take up to several minutes with the vehicle moving. The MAP value with the ignition On and engine Off should read between 98-102 kPa depending on ground altitude.

Make sure ECT sensor and MAF voltage readings on the scan tool with ignition On, engine Off look normal. MAF voltage should be between 0.8-1.2 volts with ignition On, and the engine Off. The ECT and IAT should be within 2°C (4°F) of each other if the vehicle has been sitting overnight. A skewed sensor reading may cause a hard/no start condition.

Make sure the EGR valve is not stuck open by reading the EGR SENSOR voltage on the scan tool. Normal closed valve readings should be within 0.5-1.0 volts.

Check for a flooded engine.

Important: There is NO clear flood mode on the L81 engine that would cut fuel Off during an engine crank. However, if the accelerator pedal is pressed between 14 and 100% during an engine crank, the throttle blade will open in proportion to the travel of the accelerator pedal. At full accelerator pedal travel during the engine crank, the throttle blade will be open 100%, which may clear a flooded engine.

Make sure the main relay is operating correctly in the UHFB by listening to the relay click when the ignition is turned On.

These ECM fuses in the UHFB will cause a no start if open:

    • BCM/ECM/CRUISE/ABS 10 amp
    • CONTROLS B+ 10 amp
    • ENGINE CNTL 2 10 amp
    • ENGINE CNTL 3 10 amp
    • BCM 15 amp
    • FUEL PUMP 15 amp
    • IGN 15 amp
    • IGN 1 / 2 30 amp

Important: The ECM will only command the fuel pump relay On when the engine is cranking or running.


Object Number: 898609  Size: FP

Object Number: 898610  Size: FP

Engine Cranks But Won't Start

The ECM controls spark timing and dwell (spark On-time) under all engine running conditions. Each of the two electronic ignition (EI) modules has the ability to charge and discharge each of its three primary coils independently based on ECM control. The ECM uses a high control signal of near 5 volts to charge up the primary coil and a low control signal of near 0 volts to discharge the primary coil. If the primary coil is charged and the control signal is low, current will be induced in the secondary coil and will fire out of its secondary tower.

Important: If DTC P0341, P0342 or P0343 is set, diagnose that DTC first. The ECM will still provide spark and fuel to only one cylinder at a time if the cam sensor signal is not present. Therefore, the engine may or may not start if this condition occurs.

Use the scan tool to perform an IGNITION COIL test for each individual cylinder while listening closely for spark at appropriate ignition coil.

Spark on one cylinder of the 1, 3, 5 bank and spark on another cylinder of the 2, 4, 6 bank indicates that each EI module power and ground circuits are OK.


Object Number: 895743  Size: FP

Object Number: 898614  Size: FP

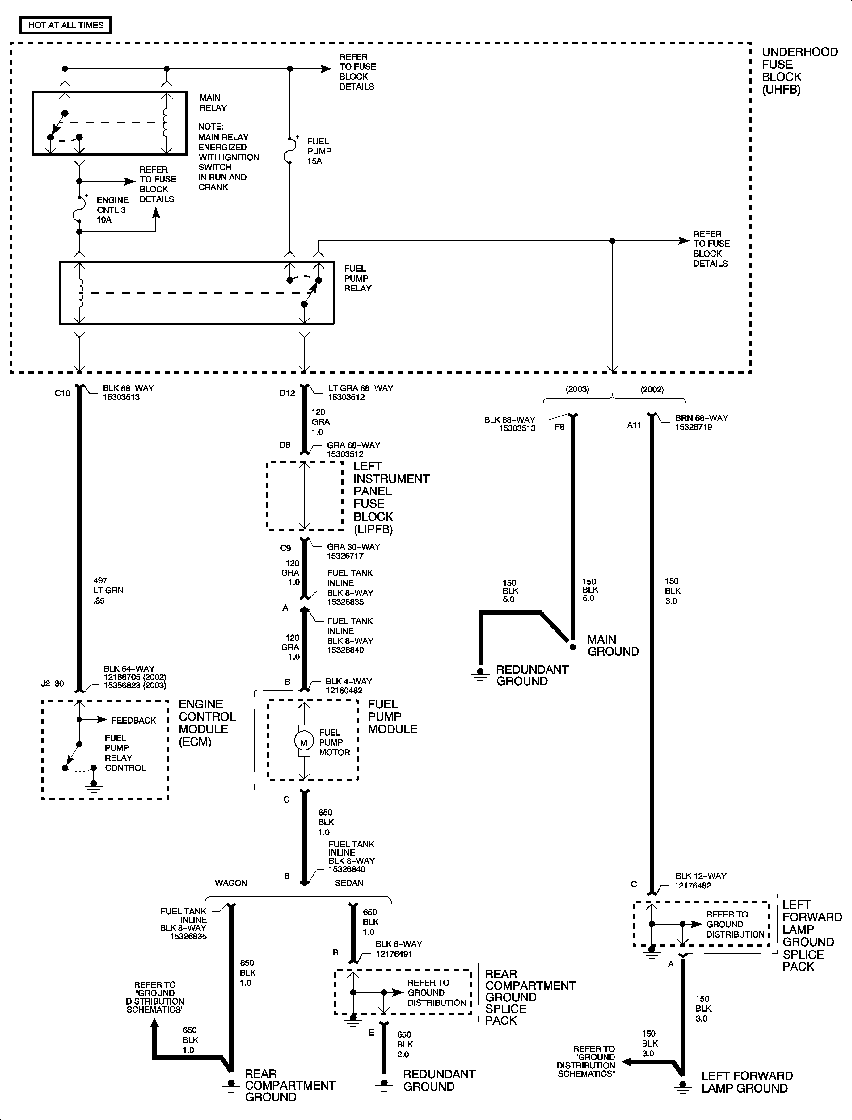
Engine Cranks But Won't Start - (Chart 3 Of 3 - Fuel Delivery)

The ECM controls the fuel pump motor by supplying ground to the fuel pump relay coil circuit. The fuel pump runs continuously whenever the engine is running or cranking. The fuel pump is fed battery voltage whenever the fuel pump relay is turned On. The main relay must be turned On in order for current to flow to the relay coil circuit.

Diagnostic Aids

Important: If DTC P0230, P0231, P0232, P0627, P0628 or P0629 is set, diagnose that DTC first.

Important: The ECM will NOT command the fuel pump relay On unless the engine is cranking or running.

Fuel rail pressure: 269-338 kPa (39-49 psi).

Fuel pump relay coil resistance: 70-115 ohms.


Object Number: 895756  Size: FP

Object Number: 898617  Size: FP

Engine Cranks But Does Not Start Chart 2 of 3

Circuit Description

At this point in diagnosing a no start condition it has been determined that the ECM inputs and the ignition system are OK. This chart will diagnose the fuel delivery system.

Test Descriptions

  1. When the ignition is turned On, the fuel pump relay should be energized for about 2 seconds. After connecting fuel pressure gauge the ignition may have to be cycled a few times before reaching the specified pressure. A Scan tool can also be used to prime the fuel system. If pressure is available, but low, it indicates the ECM and fuel pump relay circuit is OK.
  2. The ignition must be Off for about 10 seconds before the fuel pump relay will be re-energized. If test light illuminates at FUEL PUMP fuse, ECM control and relay are OK.
  3. The ECM sends 12 volts to relay coil.

Object Number: 888884  Size: FP

Object Number: 887510  Size: FP

Engine Cranks But Does Not Start Chart 3 0f 3

Circuit Description

This chart will isolate possible faults that occur with ignition system. Whenever the engine is cranking as indicated by sensor pulses, the ECM will send pulses to the IC module. The ECM pulses (0-5V) to control the charge time (dwell) and spark timing for each ignition event. Each cylinder is controlled separately. An engine may or may not start on less than six cylinders.

Test Descriptions

  1. Since each coil is controlled separately it is important to test for spark from each coil. If spark is available on all cylinders, the ignition system is OK. Use ignition coil #1-6 test under engine controls special functions to check. Before running this test, it is imperative to remove the 15A fuel pump fuse from the UHFB and crank the engine for 5 seconds. The fuel system should be checked at this point. Also spark plugs could be fouled.
  2. Spark on one cylinder in each IC module indicates that power and ground are OK to that module.

Object Number: 888882  Size: FP

Object Number: 887513  Size: FP