GM Service Manual Online
For 1990-2009 cars only

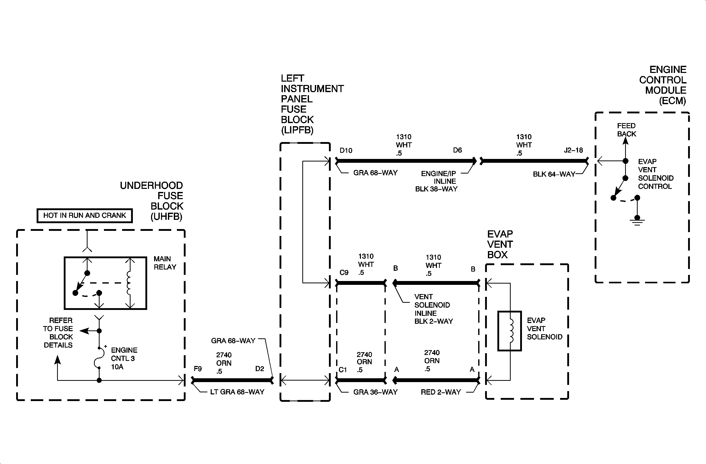
Object Number: 889469  Size: MF

Circuit Description

The evaporative emission (EVAP) system is used to store fuel vapors as to reduce the amount of unburned fuel from escaping into the atmosphere. The EVAP system consists of the EVAP canister, fuel tank pressure sensor, EVAP lines and hoses, EVAP purge solenoid (normally closed), EVAP service port, EVAP vent solenoid (normally open) and fuel tank. The ECM monitors the EVAP system for circuit faults in the fuel tank pressure sensor, EVAP purge solenoid and EVAP vent solenoid circuits. The ECM also monitors the EVAP system for small and large leaks. During DTC P0440 diagnostic, the EVAP purge solenoid is commanded to a fixed duty cycle (pulses valve) and the EVAP vent solenoid is commanded On (closed) in order to build vacuum. Once vacuum is obtained, the EVAP vent solenoid is commanded Off and the vacuum should decrease rapidly. DTC P0440 sets when the fuel tank pressure sensor indicates less than atmospheric pressure after a certain length of time (vent system is either blocked or closed).

DTC Parameters

DTC P0440 sets when the fuel tank pressure sensor indicates less than 2.0 volts (vent system is either blocked or closed) during the diagnostic system test when:

    • Vehicle speed = 0 mph.
    • Engine speed at idle.
    • Engine load less than 35 %.
    • MAP is greater than 40 kPa.
    • Battery voltage is greater than 11.0 volts.
    • ECT at engine startup is between 8°C and 75°C (46° and 167°F).
    • IAT is between 8°C and 50°C (46° and 122°F).
    • Long term fuel cells not cleared (if cleared, engine must run longer than 16 minutes and 45).
    • Fuel level between 1.3 and 12.7 gallons (5-48 liters).
    • Altitude less than 9842 ft.
    • No battery voltage, ECM internal fault, ECT, EGR, EVAP purge control, EVAP vent control, fuel tank pressure, HO2S, IAC, MAP, misfire, TP or VSS DTCs have been set.

DTC P0440 diagnostic is run once (usually for 40 seconds if no faults exist) during the EVAP diagnostic test once the above conditions have been met.

If the ECM cannot run this test during the ignition cycle, it will monitor the fuel tank pressure sensor a maximum of two times for 15 seconds and set this DTC if the reading is less than 2.0 volts (11.25 mmHg lower than atmospheric pressure).

P0440 is a (type B) DTC.

Diagnostic Aids

Important: The ECM uses the fuel tank pressure sensor to detect the vacuum decay of the EVAP vent solenoid diagnostic. Make sure the fuel pressure sensor is not skewed by verifying FUEL TANK PRESS. SENSOR on Scan tool is between 2.35 and 2.85 volts with ignition On and fuel cap removed.

Check the following for causes of a blocked vent system:

    • EVAP vent solenoid blocked or stuck valve.
    • Vent hose plugged, kinked or pinched.
    • EVAP canister restricted.