GM Service Manual Online
For 1990-2009 cars only

Object Number: 896244  Size: MF

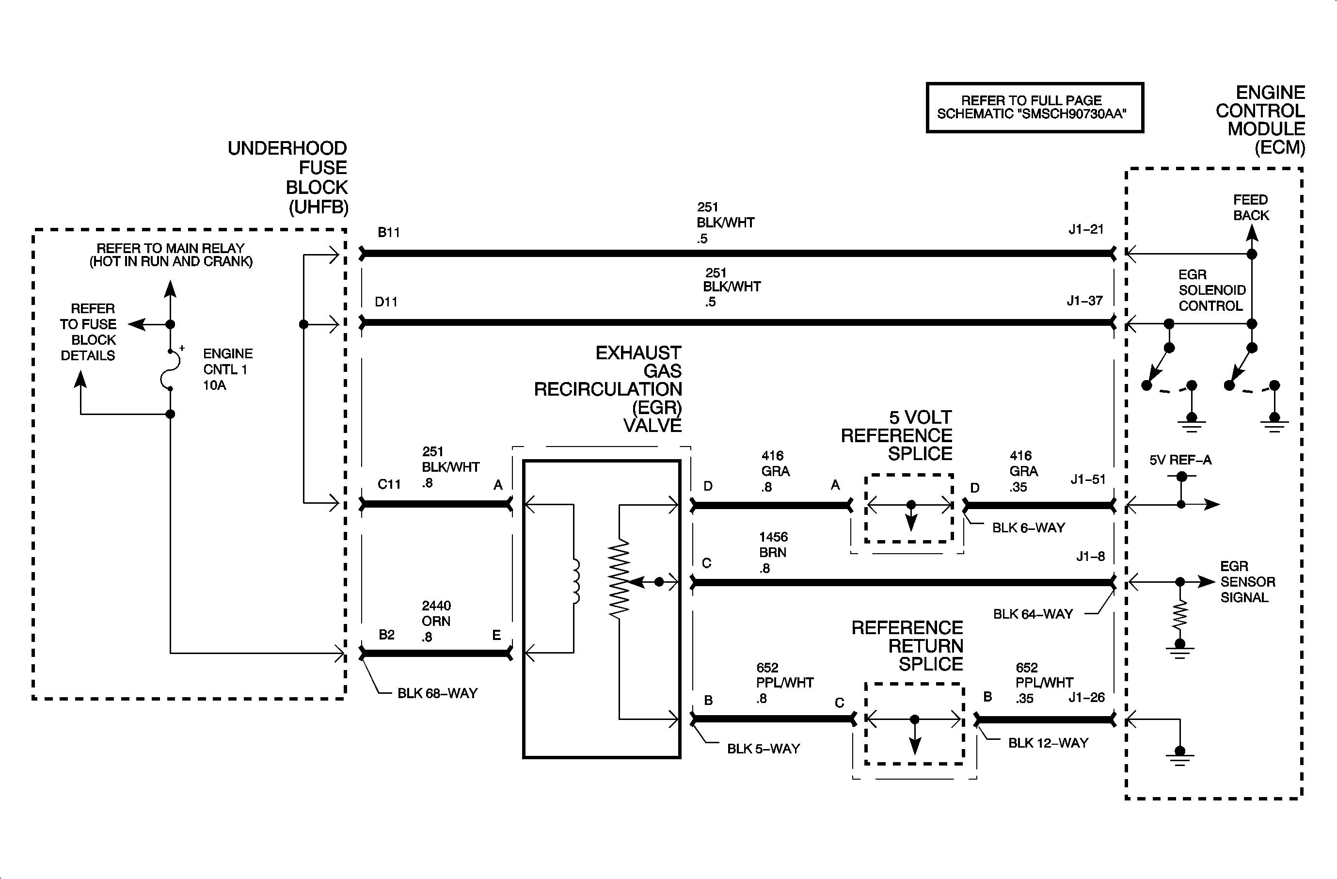
Circuit Description

The exhaust gas recirculation (EGR) value consists of a pintle valve that moves by the use of an internal solenoid and an internal position sensor, potentiometer, used to determine pintle valve position. The engine control module (ECM) controls the solenoid by supplying it ground whenever exhaust gas needs to be recirculated into the intake manifold. The ECM monitors the EGR solenoid and position sensor circuit for correct voltage levels at certain times. Normal EGR sensor voltages range from 0.5-1 volts at a 0 percent commanded duty cycle up to 4.2-4.7 volts at a 100 percent commanded duty cycle. DTC P0406 sets when the EGR sensor signal voltage at the ECM is above the calibrated voltage value.

Conditions for Setting the DTC

DTC P0406 will set if the EGR sensor signal is above 4.82 volts when:

    • The condition exists for longer than 1 second.
    • The engine is running.
    • No system voltage DTCs set.

DTC P0406 diagnostic runs continuously with the engine running.

DTC P0406 is a type B DTC.

Diagnostic Aids

To locate an intermittent problem, use the scan tool to monitor EGR SENSOR voltage with the ignition ON and the engine OFF.

Wiggling the wires while monitoring EGR SENSOR may locate the area where an open or short to voltage in wiring may exist.

Circuit 416 (CMP/EGR/MAF/MAP sensor), circuit 2709 (AC pressure/fuel tank pressure sensor), and circuit 1164 (APP sensor 1) share the same 5-volt reference supply, 5-volt Ref-A.

Important: When DTC P0406 sets, some EGR functions will be disabled for the remainder of the ignition cycle. When repairs are complete, DTCs must be cleared and the ignition turned OFF for 10 seconds to allow proper EGR operation.

The CMP/ECT/IAT/EGR/MAF/MAP/TP1/TP2 sensors share the same sensor return circuit 652.


Object Number: 898185  Size: FP