GM Service Manual Online
For 1990-2009 cars only

Object Number: 895644  Size: MF

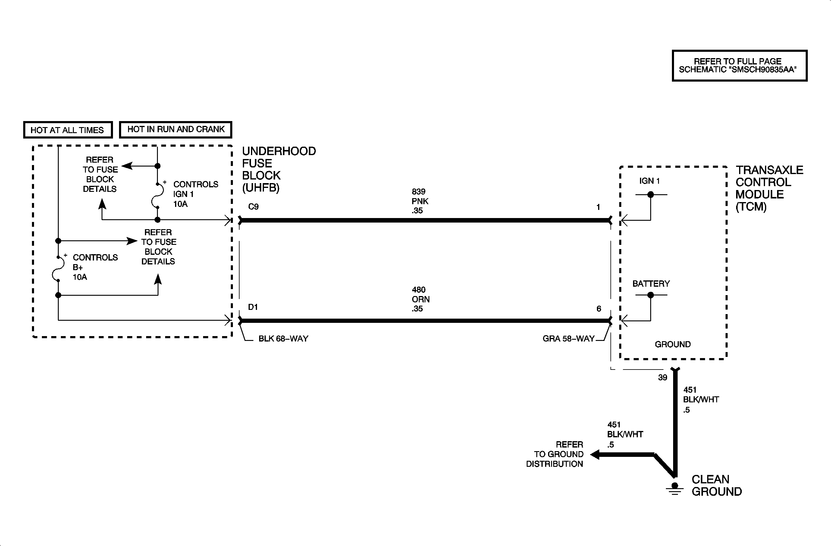
The transaxle control module (TCM) is powered from the fused battery and ignition 1 voltage supplied through the underhood fuse block. The TCM monitors system voltage on the ignition feed and fused battery circuit. When the low voltage conditions that set DTC P0562 are present, the operation of some vehicle systems and components may be affected. If the system voltage is lower than the TCM is capable of operating properly under, DTC P0562 sets.

Conditions for Setting the DTC

DTC P0562 will set if:

    • Ignition 1 is less than 8 volts for 20 seconds.
    • Engine speed is greater than 1,200 RPM.

DTC P0562 is a type A DTC.

Diagnostic Aids

Check for the following conditions:

A poor connection or damaged harness -- Inspect the wiring harness for damage. If the harness appears to be OK, observe the IGNITION 1 voltage display on the scan tool while moving the connectors and wiring related to the TCM, dash harness, and engine harness. A change in display will indicate the location of the fault.

If DTC P0562 can not be duplicated, reviewing the Failure Records vehicle mileage since the diagnostic test last failed may help determine how often the condition that caused the DTC to be set occurs. This may assist in diagnosing the condition.

For complete information and additional diagnostics for the vehicle charging system, refer to the "Starting/Charging" section in the Engine service manual.


Object Number: 890863  Size: FP