GM Service Manual Online
For 1990-2009 cars only

Object Number: 1247654  Size: MF
Engine Controls Component Views
Engine Controls Schematics

Circuit Description

An engine coolant temperature (ECT) sensor monitors the temperature of the coolant. This input is used by the engine control module (ECM) for engine control and as an enabling criteria for some diagnostics.

The air flow into the engine is accumulated and used to determine if the vehicle has been driven within the conditions that would allow the engine coolant to heat up normally. If the coolant temperature does not increase normally, the diagnostics that use engine coolant temperature as enabling criteria may not run when expected.

This DTC will only run once per ignition cycle within the enabling conditions.

If the ECM detects the calibrated amount of air flow and engine run time have been met, and the engine coolant has not met the calibrated temperature, DTC P0115 sets.

Conditions for Running the DTC

    • The engine is running.
    • The start-up engine coolant temperature (ECT) is less than 14°C (57°F).
    • This DTC will only run once per ignition cycle within the enabling conditions.

Conditions for Setting the DTC

    • The calibrated amount of air flow has been met.
    • The calibrated amount of engine run time has been met.
    • The minimum ECT of 37°C (99°F) has not been met.

Action Taken When the DTC Sets

    • The control module illuminates the malfunction indicator lamp (MIL) on the second consecutive ignition cycle that the diagnostic runs and fails.
    • The control module records the operating conditions at the time the diagnostic fails. The first time the diagnostic fails, the control module stores this information in the Failure Records. If the diagnostic reports a failure on the second consecutive ignition cycle, the control module records the operating conditions at the time of the failure. The control module writes the operating conditions to the Freeze Frame and updates the Failure Records.

Conditions for Clearing the MIL/DTC

    • The control module turns OFF the malfunction indicator lamp (MIL) after 3 consecutive ignition cycles that the diagnostic runs and does not fail.
    • A current DTC, Last Test Failed, clears when the diagnostic runs and passes.
    • A history DTC clears after 40 consecutive warm-up cycles, if no failures are reported by this or any other emission related diagnostic.
    • Clear the MIL and the DTC with a scan tool.

Step

Action

Values

Yes

No

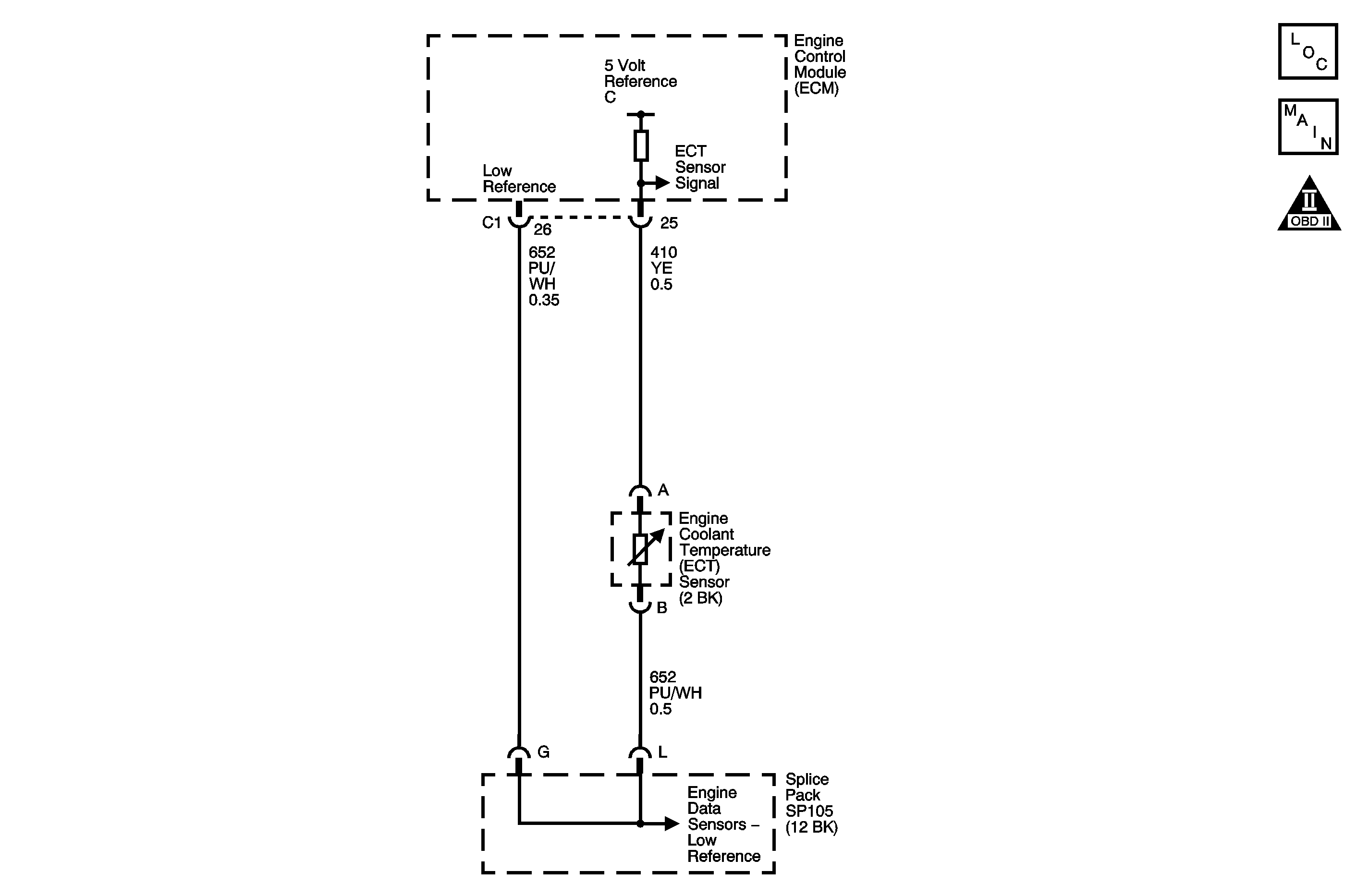
Schematic Reference: Engine Controls Schematics

Connector End View Reference: Engine Controls Connector End Views or Engine Control Module Connector End Views

1

Did you perform the Diagnostic System Check-Engine Controls?

--

Go to Step 2

Go to Diagnostic System Check - Engine Controls

2

Important: The cooling fans are commanded ON when certain engine coolant temperature (ECT) DTCs are set.

Is the cooling system coolant low?

--

Go to Cooling System Draining and Filling in Engine Cooling

Go to Step 3

3

Test and verify the proper operation of the thermostat. Refer to Thermostat Diagnosis in Engine Cooling.

Did you find and correct the condition?

--

Go to Step 14

Go to Step 4

4

  1. Disconnect the ECT sensor.
  2. Inspect for the following conditions:
  3. • Corrosion on the ECT sensor terminals
    • Improper or corroded terminals at the ECT harness connector
    • Loose terminals in the ECT harness connector--Refer to Testing for Intermittent Conditions and Poor Connections and Connector Repairs in Wiring Systems.

Did you find and correct the condition?

--

Go to Step 14

Go to Step 5

5

Measure the voltage from the signal circuit of the ECT sensor to a good ground with a DMM. Refer to Circuit Testing in Wiring Systems.

Is the voltage within the specified range?

4.8-5.2 V

Go to Step 6

Go to Step 8

6

Measure the voltage from the signal circuit of the ECT sensor to the low reference circuit of the ECT sensor with a DMM. Refer to Circuit Testing in Wiring Systems.

Is the voltage within the specified range?

4.8-5.2 V

Go to Step 9

Go to Step 7

7

Test the ECT sensor low reference circuit for high resistance. Refer to Circuit Testing and Wiring Repairs in Wiring Systems.

Did you find and correct the condition?

--

Go to Step 14

Go to Step 11

8

Test the ECT sensor signal circuit for high resistance. Refer to Circuit Testing and Wiring Repairs in Wiring Systems.

Did you find and correct the condition?

--

Go to Step 14

Go to Step 11

9

  1. Turn OFF the ignition.
  2. Remove the ECT sensor. Refer to Engine Coolant Temperature Sensor Replacement .
  3. Place the sensor on a work surface away from any heat source.
  4. Allow the sensor to reach the ambient air temperature for 30-60 minutes.
  5. Observe and record the ambient air temperature of the vehicle environment using an accurate thermometer.
  6. Measure the resistance of the ECT sensor and record the value.
  7. Compare the resistance measurement of the ECT sensor to the ambient air temperature on the Temperature vs. Resistance table. Refer to Temperature Versus Resistance .

Is the resistance measurement of the ECT sensor within the specified range?

--

Go to Step 10

Go to Step 12

10

Install the ECT sensor. Refer to Engine Coolant Temperature Sensor Replacement .

Is the action complete?

--

Go to Intermittent Conditions

--

11

Test for an intermittent and for a poor connection at the PCM. Refer to Testing for Intermittent Conditions and Poor Connections and Connector Repairs in Wiring Systems.

Did you find and correct the condition?

--

Go to Step 14

Go to Step 13

12

Replace the ECT sensor. Refer to Engine Coolant Temperature Sensor Replacement .

Did you complete the replacement?

--

Go to Step 14

--

13

Replace the ECM. Refer to Engine Control Module Replacement .

Did you complete the replacement?

 

Go to Step 14

--

14

  1. Clear the DTCs with a scan tool.
  2. Turn OFF the ignition for 30 seconds.
  3. Start the engine.
  4. Operate the vehicle within the Conditions for Running the DTC. You may also operate the vehicle within the conditions that you observed from the Freeze Frame/Failure Records.

Did the DTC fail this ignition?

--

Go to Step 2

Go to Step 15

15

Observe the Capture Info with a scan tool.

Are there any DTCs that have not been diagnosed?

--

Go to Diagnostic Trouble Code (DTC) List

System OK