GM Service Manual Online
For 1990-2009 cars only
Makes
🢒
Saturn
🢒
2007
🢒
OUTLOOK - FWD
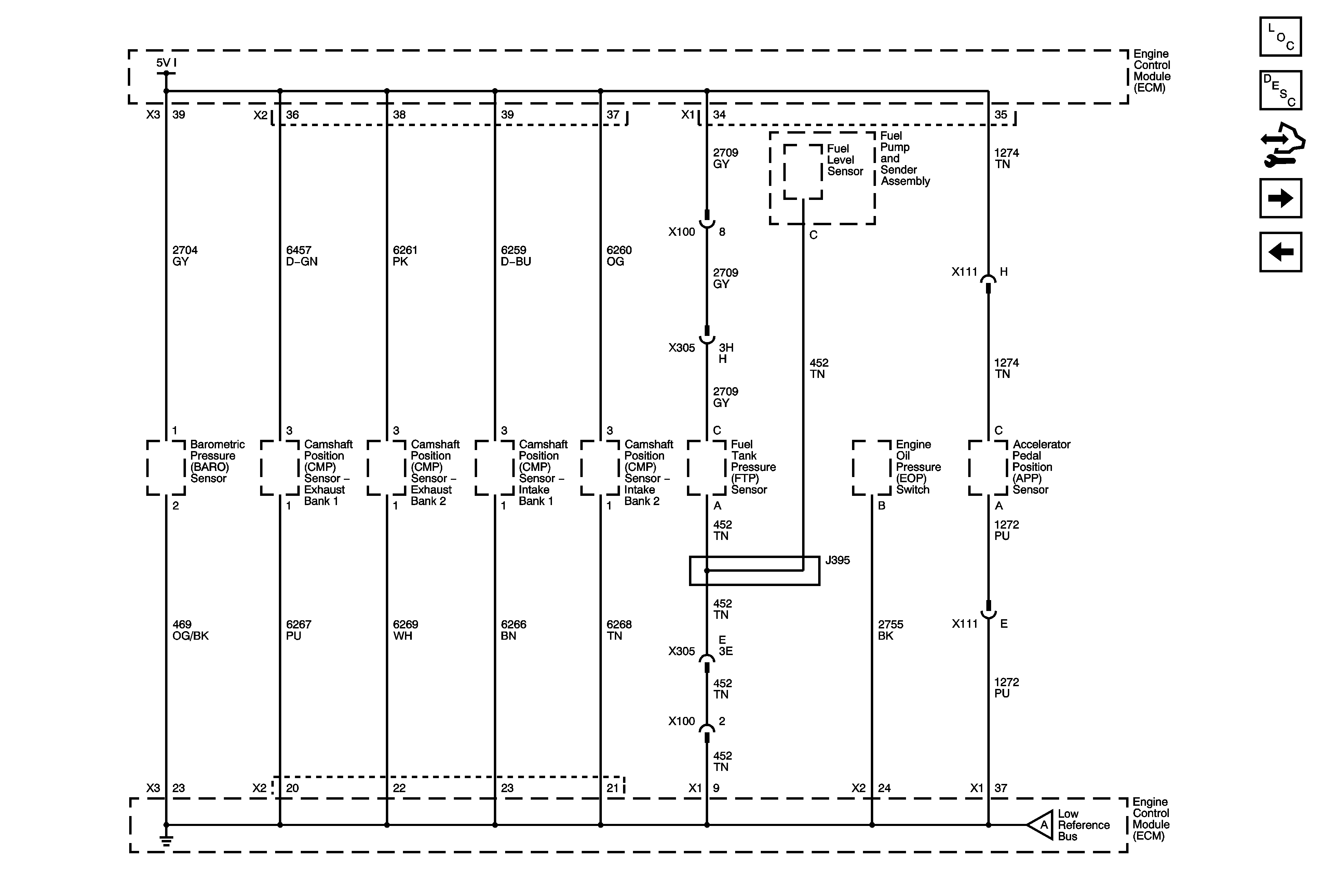
🢒 5V1 and Low Reference Bus
5V1 and Low Reference Bus
5-Volt Reference 1 and Low Reference Bus
Master Electrical Component List
Engine Control Module Description
Control Module References
5V2 and Low Reference Bus
Module Power, Ground, Serial Data, and MIL
5V2 and Low Reference Bus