All Door Lock Circuit High
Circuit Description
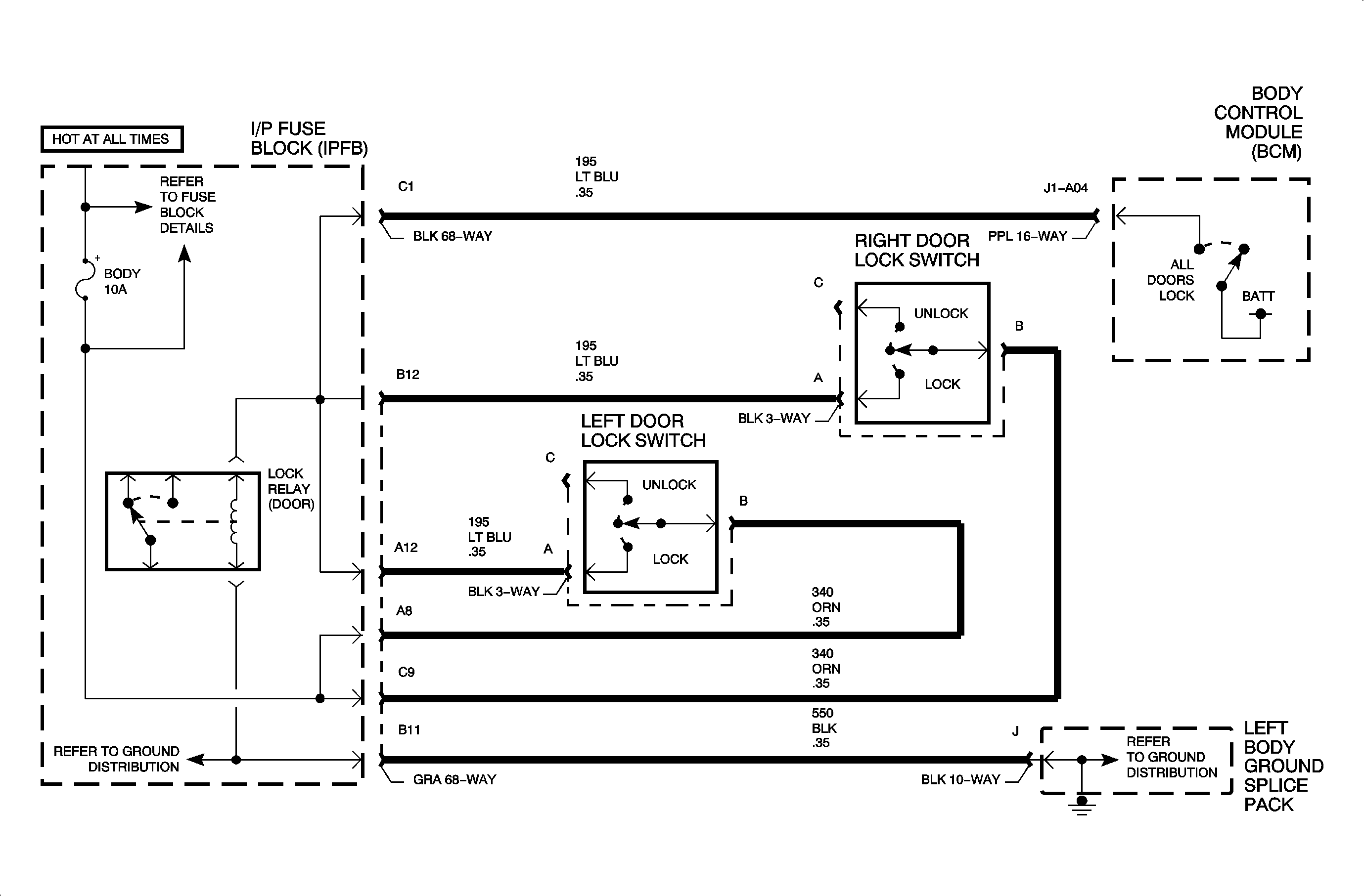
The door locking/unlocking, by remote keyless entry (RKE) or driver/all door
lock switches, is controlled through the body control module (BCM).
When an all door lock has been requested, the BCM switches circuit 195,
BCM cavity J1 - A4 to battery voltage. This energizes the all door lock relay which
supplies power to all door lock motors. Grounding is achieved through the closed contacts
of the unlock relay and through the driver door unlock cavity J1 - A6 of the BCM.
The lock/unlock power application is limited by the BCM to 0.375 seconds
to protect the lock motors.
Conditions for Setting the DTC
| • | All door lock is requested. |
| • | Circuit 195 is shorted to battery voltage. |
| • | Condition exists for 30 seconds. |
Diagnostic Aids
| • | Inspect the wiring harness for damage. Check for broken or chafed insulation. |
| • | If a fault is suspected to be intermittent, wiggling the harness wiring
may help in locating the fault. |