GM Service Manual Online
For 1990-2009 cars only
Makes
🢒
Saturn
🢒
1998
🢒
SL2/SC2/SW2
🢒
Body and Accessories
🢒
Entertainment
🢒 Radio/Audio System Schematics
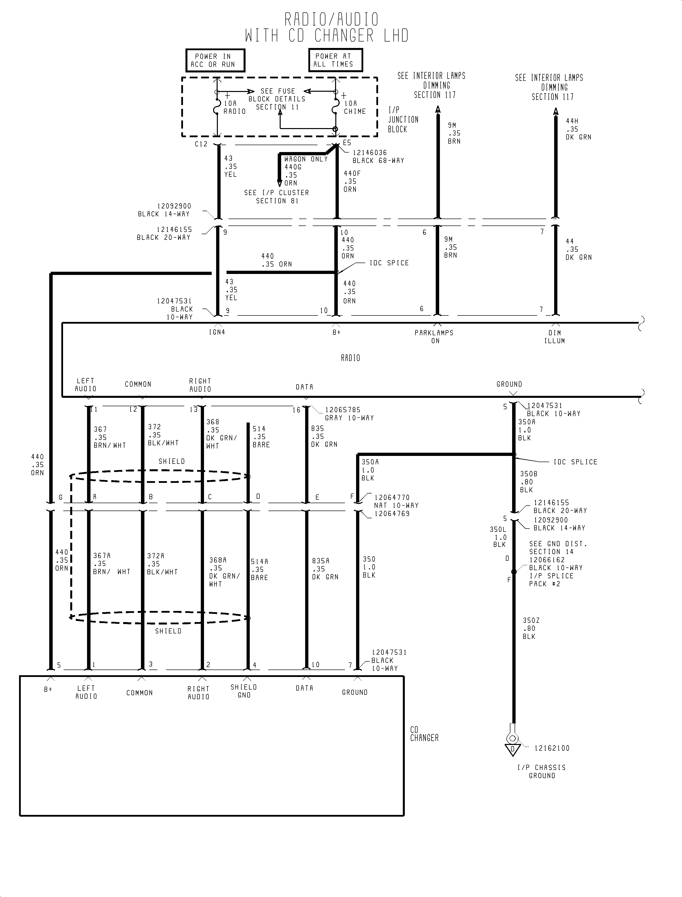
Figure
1:
Radio (Audio) System-with CD Changer
Figure
2:
Radio (Audio) System-with CD Changer Cont'd
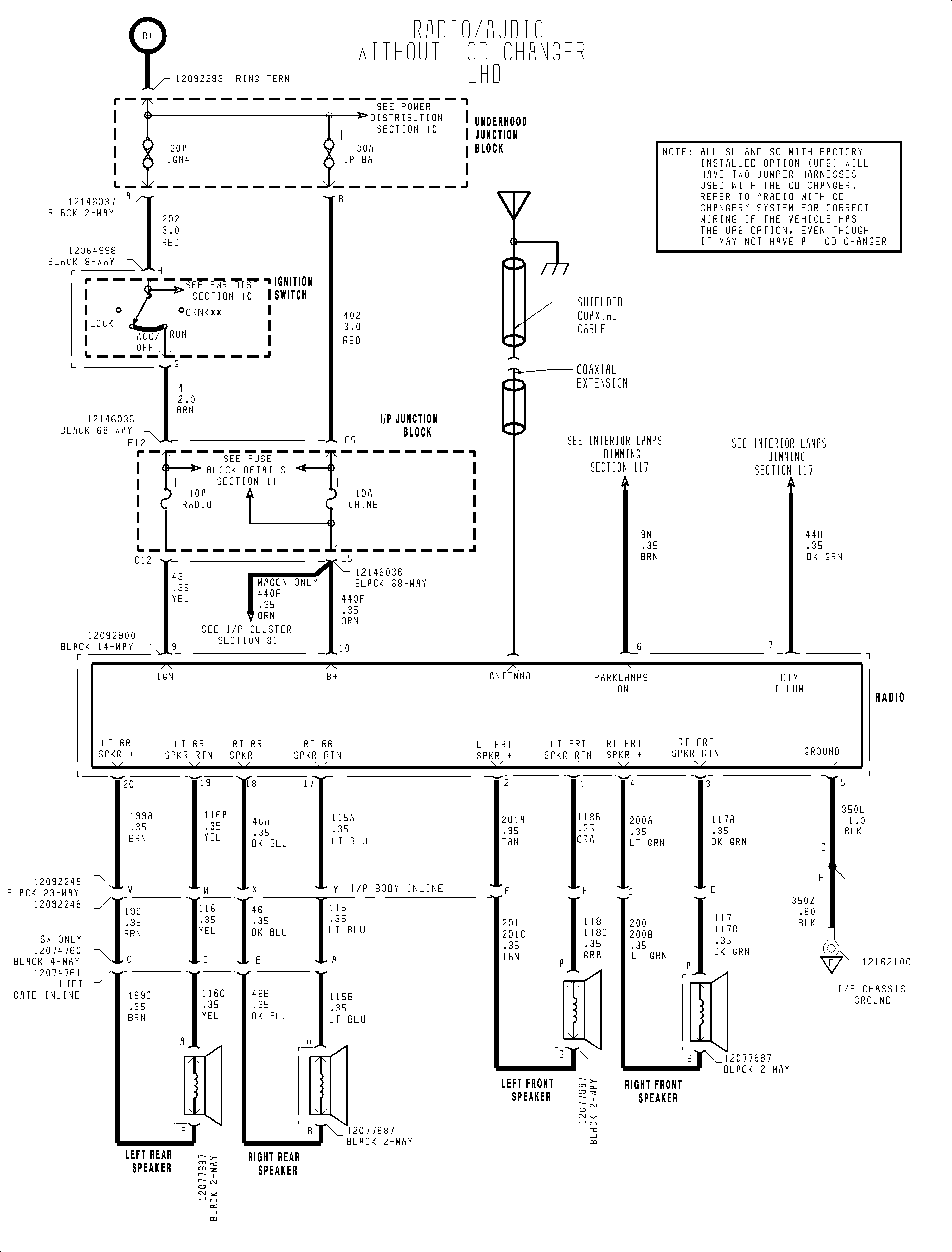
Figure
3:
Radio (Audio) System-without CD Changer